概念:传统与现代的并存
这家供应光化门海鲜的餐厅始建于1940年。我们希望光华门海鲜餐厅可以成为 Jeong-dong 区的一张名片,在这里,现代与传统共存;同时我们认为海鲜餐厅在20世纪40年代既是现代的也是当代的。所以在我们开始打造传统的空间形式之前, 我们首先融合木制的天花板、内部和外部使用的金属结构材料以及其他现代设计元素。
为了提高顾客的可达性,设计师还在餐厅与停车场相连的后部开辟了一个入口,立面上较为自由的小窗提供白天充足光线的同时在夜晚发出昏暗的灯光。建筑的后部营造了砖砌的外观,仅仅通过清理与展示老结构来呈现这片防水区域。
外观设计
餐厅入口处被设计成一栋两层楼高的建筑形式,以弥补店面与整间餐厅大小相比显得过于狭窄的缺点,二楼悬挂的鱼群向顾客渲染着海鲜餐厅的氛围。
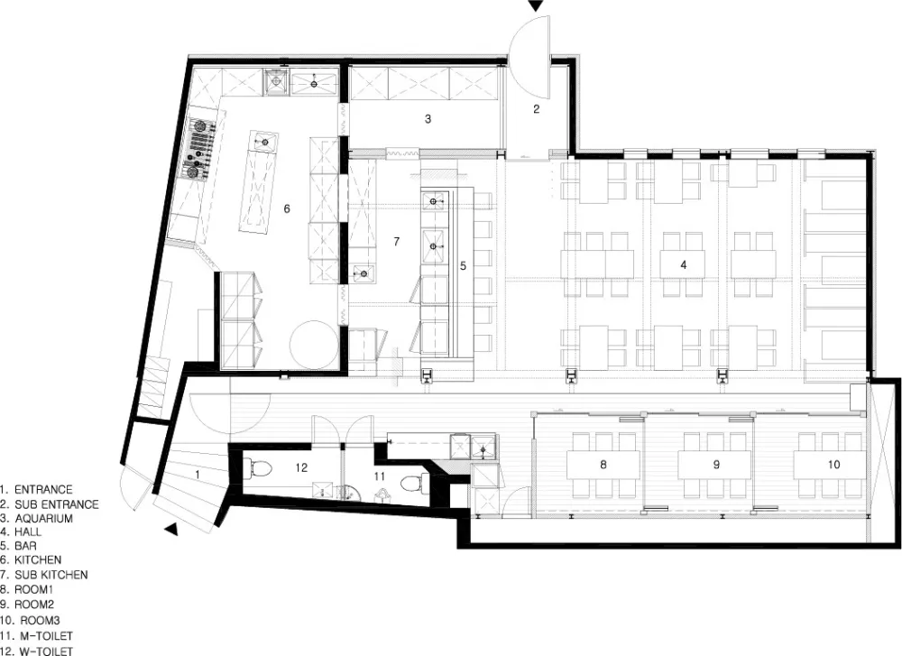
室内设计
考虑到有两个入口,餐厅被划分为用餐大厅、厨房、包间和布置在顾客流线中央的柜台。包间可以作为独立使用的六人间,包间之间的墙体可以移动以供18人的聚会使用,用餐大厅与包间的边界与包间的分隔方式不同。用餐大厅还沿着侧墙设置了固定分隔的座椅,柜台旁边的空间给一条单座桌子使用,为顾客提供了更广泛的选择。
从斑驳的旧木屋架上悬垂下来的金属材料也是现代性的一部分表达。用餐大厅和包间之间的边界使用金属和玻璃组合成的滑动门来增添精致感;为突出用餐大厅的天花板,包间降低了内部天花板的高度,为顾客创造出舒适的空间氛围
从斑驳的旧木屋架上悬垂下来的金属材料也是现代性的一部分表达。用餐大厅和包间之间的边界使用金属和玻璃组合成的滑动门来增添精致感;为突出用餐大厅的天花板,包间降低了内部天花板的高度,为顾客创造出舒适的空间氛围。





建筑师 gongsangplanet
地址 65 Sejong-daero 21-gil, Jeong-dong, Jung-gu, 首尔, 韩国
类别 改造项目
主创建筑师 Kim Kyoung Mok
建筑面积 182.0 平方米
项目年份 2018
摄影师 Choi Yong Jun

