Serie Architects和Multiply建筑事务所在新加坡建造了一所零能耗的设计学校,其特色是轻松的露天学习空间。新加坡设计与环境学院(SDE4)号称是新加坡第一座净零能耗的新建筑。建筑师将其描述为“可持续设计的原型”,将其净零目标与“重新验证的热带建筑语法”结合起来。
SDE4提供超过1500平方米的设计工作室空间,以及一个开放的广场,各种公共空间,工作室,研究中心,咖啡馆和图书馆。2013年,总部位于伦敦的Serie Architects和当地的Multiply建筑事务所赢得了一项国际竞赛,设计了这个设施,这是该大学在新加坡南部海岸线附近的克莱门蒂路(Clementi Road)校园更广泛重建项目的一部分。
新加坡设计与环境学院与新加坡政府拥有的基础设施和城市发展咨询公司Surbana Jurong共同开发了这座8500平方米的六层建筑。其绿色设计旨在反映学校在促进东南亚设计、可持续发展和教育方面的职责。
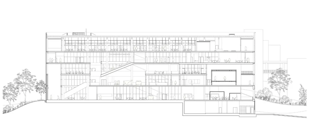
一系列灵活的教学空间促进了多种用途,而与校园其他部分增强的互动是由一个开放的建筑促进的,它创造了与户外的视觉和空间联系。意利建筑师事务所(Serie Architects)负责人克里斯托弗•李(Christopher Lee)解释称:“当我们开始这个项目时,我们的雄心之一是挑战高能效建筑必须非常不透明的概念。”“完工的建筑非常开放。”
SDE4由一组体量和露台组成,项目团队将其描述为“平台和盒子”,定义和表达建筑的规划安排。楼梯和走廊通过平台延伸,连接不同的盒子,创造了围绕建筑的流动,促进了合作。
“SDE4的大型平台的配置方式促进了交互和可视化连接,”Lee补充说。“我们设想了一个非常透明的体量,其中的外部空间和内部空间是模糊的;在这里,自然和景观扮演着重要的角色,作为建筑的背景。
这种开放还借鉴了热带地区当地建筑的可持续性原则。一个例子是阳台,露台和阳台,促进自然通风,促进穿堂风通过房间流动。
各种各样的露天空间可以用于非正式学习。东、西立面内外表皮间质区域为研究区域。
这些研究区域设置在一个波浪状的穿孔铝板屏幕后面,允许光线和空气渗透。铝立面的部分可以拆卸和更换,以试验新的系统和绿色建筑技术。南立面的特点是一个巨大的过度倾斜的屋顶,创造了一个遮蔽的门廊,延伸到建筑的整个一侧。
屋顶下的室外空间的整合强调了建筑与周围自然的紧密关系,同时也为花园和成熟的树木提供了庇护。花园是SDE4生态和教学经验的重要组成部分。景观有助于净化屋顶和硬质景观的水径流,提供学习水管理的机会,同时引入本地植物可作为环境教育的基础。
建筑的特点是混凝土、钢铁和玻璃的材料面板,它们在原始状态下被用来强调对亲生物设计原则的追求。混凝土尤其表现出不同的表面处理,赋予表面触感和自然变化。SDE4致力于实现净零能耗的其他关键特征包括在屋顶集成了1200多个光伏板。
Serie Architects和Multiply建筑事务所已经在新加坡合作了几个项目,包括一个由露台花园环绕的terracotta覆盖的法庭和一个围绕公共露台花园的社区中心。
设计:Serie Architects & Multiply
面积:8500平方米
摄影:Rory Gardiner

