建筑立面的现代肌理,在自然的木材、石料的映衬下展开。两个简单的体块互相穿插咬合下,开放出入口和内部空间的玄关转折。
从玻璃幕墙中看到通透而绿意盎然的室内如一幅水平画卷,纯净的妆点由内而外地散发,使得室内变建筑立面的一部分,呈现出双表皮的空间层次。
前厅圆木饰面和光影的设计巧思,见光不见灯的泛光设计,隐匿极简的圆形象征着萌芽待发种子,
勾勒出现代都市的张力与生活情趣。
横向木头向内流动,上窄下宽的斜面天花挑高配合动态艺术投影让沙盘区端庄大气。自然光顺着流畅的直线被引入室内,在缝隙间延展。光影推移下展现出精致的细节处理。
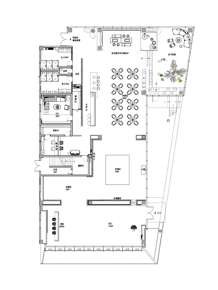
进入主空间,洽谈区与书吧依次排列,远景的绿植和绿色天花形成视觉呼应,相互关联不割裂,以青春活力延续交流的连续性。
壁画中立体唯美的水滴浪涌似动非动、似静非静的形态以及栩栩如生的充满活力的水流形态,与白色格栅的水流形成呼应。汇聚成流如空中繁星点点,以星云的形象和项目命名云尚“平步青云”的寓意呼应。
水吧区背景墙横向纹理变成贯穿天花横墙的白色格栅,纵向纹理带来水平隐秘渐变。
横竖交替,绿意在此,人们既能体会自然的静谥,又被波纹生长的力量、空间的情绪所感染,形成深刻的空间体验。
一面春色满园,一面天伦之乐
亮色与天花绿波圆形浮顶点缀延续突出反差的活力,呈现野趣自然的艺术空间中年轻时尚的趣味之心。
空间依颜色而变换节奏,在休闲区达到高潮。
明亮橙黄的远端阅读区内置书架、茶台,布置紧凑的多功能共享空间提供温馨实用的包裹和庇护。
下沉儿童区专为亲子互动打造,以圆形鹅卵石装饰的精致区域,水景的瞩目亮色跳脱出室外的绿色景观。抽象的卡通熊玩偶和公仔生动活泼,和画作中的绿色生机联动,二者丰富了景观的多元化,吸引大人小孩一起进入轻松的童真世界。
栖息在大地上的城市,饱含生命澎湃的能量,见证着人类历史的持续生长。易和设计表达的‘生长’之意,包含时代的力量,引领生活的蝶变与文化的革新,继而引领整座城市前进的方向。
项目名称:金地·奥园格林云尚售楼处
硬装团队:EH DESIGN GROUP-易和室内设计团队
软装团队:EH DESIGN GROUP-棣赞软装陈设团队

