地址:成都市大华水印岛 面积126平米 设计机构:喜屋设计 那对夫妇告诉我,他们有两只猫,一只加雪球一只叫冰棍,想要个单独养猫和平时猫咪能够玩耍的地方。
那么我们假想一只猫的生活环境。 既有足够隐私感干净的空间,能享受阳光的地方,趣致的动线,又需要能够到处躺下来。 而实际情况是,餐厅里有一根柱子,没有单独的生活阳台,当时我们准备开始设计的时候还没有准备要小孩,在装修期间正好怀孕了,就为宝宝准备了一间房间,在色彩方面喜欢淡雅一点的,温馨一点的,所以我们根据他们的需求把整个房子做了一个调整,于是就有了专门撸猫的空间,有了生活阳台的区域,还有一个长排书桌,让客餐厅空间既连接又开放,每个卧室保证了独立的功能性,又能够相互有照应。 在颜色上我们用了最近流行的莫兰迪色,展现了一种宁静、舒缓之美,一如凉风伊始的秋天。 关于猫与秋,其实是我们对于当代生活关于温暖设计的一次总结。在喜屋看来,当我们处于真正享受生活的阶段,自然向往的是清雅带来的静寂感,以及爽利色彩的明媚。


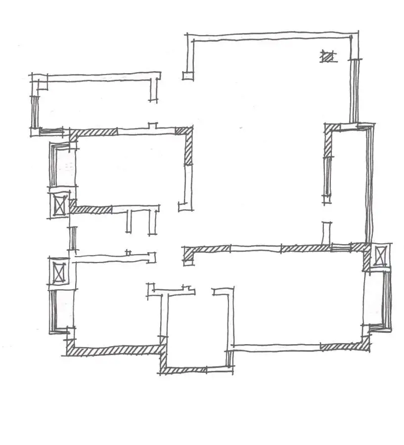
平面布局图:1:把原来餐厅柱子的位置做成了储藏柜和飘窗台,飘窗台的下面可以储物。2:把原来客厅通往阳台的小门改大了,做成了大扇的推拉门,增大了采光和进出更方便。3:客厅到餐厅增加了书房空间,并且自然形成了隔断。4:主卧室做了一大面的衣柜并且留有放电视的位置。


客餐厅是横厅,进深7990mm,所以我们就刚好把书桌的位置放在了沙发后面,高度是1米,正好也相当于了沙发背靠柜的功能。和餐厅有个遮挡。

书桌长度做了3.5m,考虑到比较长的原因,所以我们在边上设计了一个弧形的储物柜,一个是避免了怕有小孩的碰撞,也增加了稳定性和储物功能。

把以前客厅通往阳台的小门敲掉,总共3160mm长度,做了四扇透明的黑色推拉门,做成了采光变得更好了。正好这里可以放一台洗衣机和种植物。

这里是原来柱子的位置,我们把这里和墙体连成了一体,做成了飘窗台,下面可以储物,上面可以躺着撸猫,早晨的阳光可以直接照进来。

因为他们有时候不在家里,怕猫咪捣乱,所以我们还是封了最外面的阳台,可以在阳台上晒太阳,种植物。

阳台外的小景。地面是做的仿木纹的砖,怕不好打扫。有了一篇单独的阳台空间。

原来客厅顶上的梁横在中间高度350mm因为不准备安装中央,所以这根横梁就干脆不过于做掩饰,我们就做了叠级吊顶,让这里自然形成了一个分区。

我们把原来的卫生间做了干湿分区,墙面刷了白色乳胶漆,正好可以挂一个眼睛挂钟。

电视墙做了文化石,因为客户特意要求考虑文化石的元素,我们就设计在了电视墙这里。因为电视墙不居中,所以旁边用的是做家具的板子来封的。

书桌的旁边做了一个可以活动的台灯,方便阅读。

在楼下随意取的干树枝插在花瓶里,旁边的餐边柜可以放很多零零散散的东西,比如杯子,纸巾,茶叶等等的小东西,很方便。


主卧室床头两个小吊灯,晚上看书方便,分别控制开关,看电视灯光也比较偏柔和。背后的淡绿色是客户喜欢的。

原主卧室的衣柜在床的侧面,阳台通往卧室有一扇窗户,我们封掉了这扇窗户,把这一面做成了衣柜。

主卧室床头柜旁边的梳妆台,很实用。

主卫,他们希望有浴缸和淋浴房,所以两个功能都具备才使用,好在卫生间的空间足够,所以都能满足。

次卧室主要是留给以后小朋友用的,所以放了一个小的书桌。也是淘宝上买的实木,没什么味道。

次卫生间,用了一块玻璃做隔断,这样也挺方便的,还节约造价。

次卫干区位置,做了镜柜,里面可以装很多的洗漱用品,半高的台面也可以随手放一些东西。

厨房以实用为主,简单色调。


