Evgenii Kravchenko新作,该项目面积174m²,为有两个孩子的家庭开发的,位于白俄罗斯明斯克地区Papyernyansky的一个小镇。
设计师的主要任务是为日常生活创造一个舒适、现代、明亮和功能性的室内空间。风格非常简约,色彩简单,实现了一种平衡的氛围,这是将居住在此公寓中的家庭的特征。
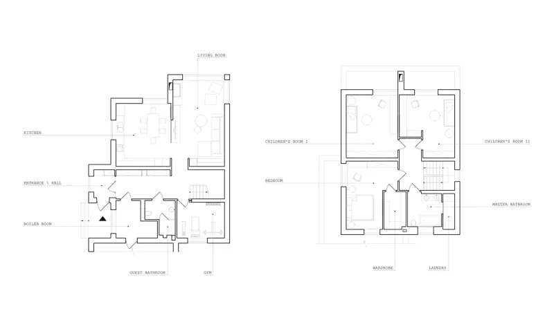
客厅配有舒适的沙发和转角壁炉,从房间的任何角度都可以看到。引入自然的光照与灵气,当阳光倾泻而下,穿过透明的落地窗,洒落在地毯上。
设计不仅要满足人们的视觉审美,更要完善使用者对于居家享受的追求。
起居室和厨房的分隔带有一个装饰性的隔板,厨房配备了一个长台面,运用一些天然材质,
可以同时使用多种厨房用具,互不干扰。
厨房里还有餐桌和电视,供家庭聚会使用,让每次就餐成为空间画面中美好的情绪所在。
特别值得注意的是楼梯,它是由玻璃制成,
带有led条纹的楼梯踏板。因此,楼梯看起来很轻巧,台阶似乎悬挂在空中。由于具有透明性,白天会有更多的自然光进入走廊,而到了晚上,楼梯则营造出舒适宜人的氛围,并充当夜灯。
在卧室里设计了一个衣柜,这对女主人来说是一个非常重要的房间。以简约线条勾勒出极致舒适的当代生活哲学,散发出舒适优雅的情调。


?