人们因建筑而有了居所,因打开门窗才看见了世界。CIVRO形象展厅位于上海越界旧厂房,CROX闊合为其打造了一个充满无限框景的概念空间。
 
 
设计的目的是在旧的建筑空间植入展示功能,建筑师希望介入最少的设计来提升原始空间迷人的特色,利用最简单线条,赋予其生命的意义。这些线条如同人生道路上所走过的足迹,在不同空间内贯穿,延伸出无限的框景。CIVRO展厅里,“线”穿梭里外,没有界限,蔓延出无数种空间构成的方式,形成一种自由开放的格局,并结合不同的使用情境,使空间属性充满弹性。
 
 
CIVRO旗舰店是在绿地上的一栋红砖仓库,灵动的白色框条,勾勒出优雅与个性,游走的线条在庭院内构成不同的休息区域,也组成了主要建筑的入口结构体。这些线条再往内部连接,构建出大小不同的空间,建筑、室内与景观也因此融合成一个完整的空间序列。本次改造的方式带有创新意识,重新定义了上海旧建筑再利用的逻辑。将CIVRO铝框产品变为主要的建筑材料,结构型态本身形成了空间,同时也完成了展示需求,兼顾功能与美观。
 
 
顺着线条进入内部展厅,白色铝框架构的接待区如被切开的白色盒子,成为视觉的交点。内部被划分出两种不同的空间性质——建筑的东面为主要的产品展示厅,白色框架组建成不同的墙体,形成大小不同的展间。西面为会议交谊厅,框架式的天花可因集会、展览、发布……等不同空间的利用方式而作出变化。设计整体呈现出白色基调,配合光影弥散了一种神秘宽广的框景感,借由原始的柱体、墙壁衍生出互动的交错关系,跳脱常规的展厅模式,唤醒整个人与空间的交互情绪。
 
 
一幅画面就是一道风光,在生活中我们走动着,用眼来定格,而门与窗是建筑用来交流的眼,闊合CROX便以无限框架创造出万千无一的景。
 
 
 
 
 
 
 
 
 
 
 
 
 
 
 
 
 
 
 
 
 
 
 
 
 
 
 
 
 
 
 
 
▼轴测爆炸图与室内局部透视
 
 
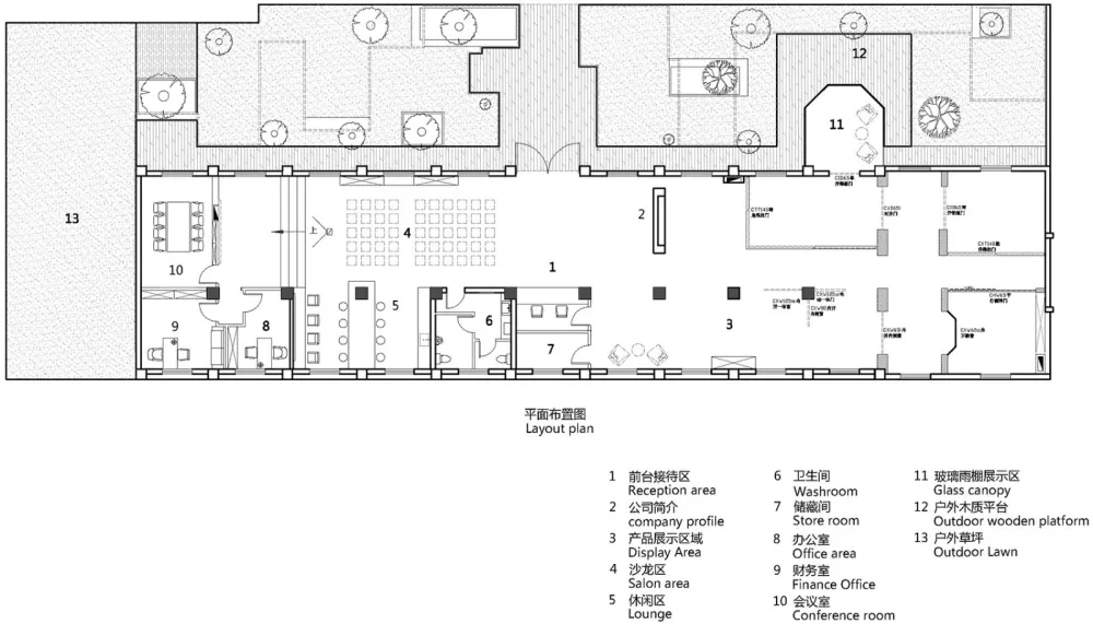
▼平面布置图
 
 
▼立面图
 
 
项目名称:无限框景 – CIVRO旗舰店
设计单位:CROX闊合
设计团队:林琮然、李本涛、周颖、黄培耿
项目地点:中国上海SVA越界创意园徐汇区田林路140号
完成时间:2018.12
建筑材料:石材,铝方管
建筑面积:423平方米 
景观面积:427平方米
型材:希洛 CIVRO
客户:希洛CIVRO系统铝门窗
摄影:王基守(BLAKE)、金刚


