云屋是位于邦迪海滩的私人住宅。这个概念最大限度地增加了光线与房屋表面的互动,就像云彩的各个面一样。两个相互连接的体量被一个中央庭院和选定的孔洞穿透,在空气和光线上建立了一个游戏。
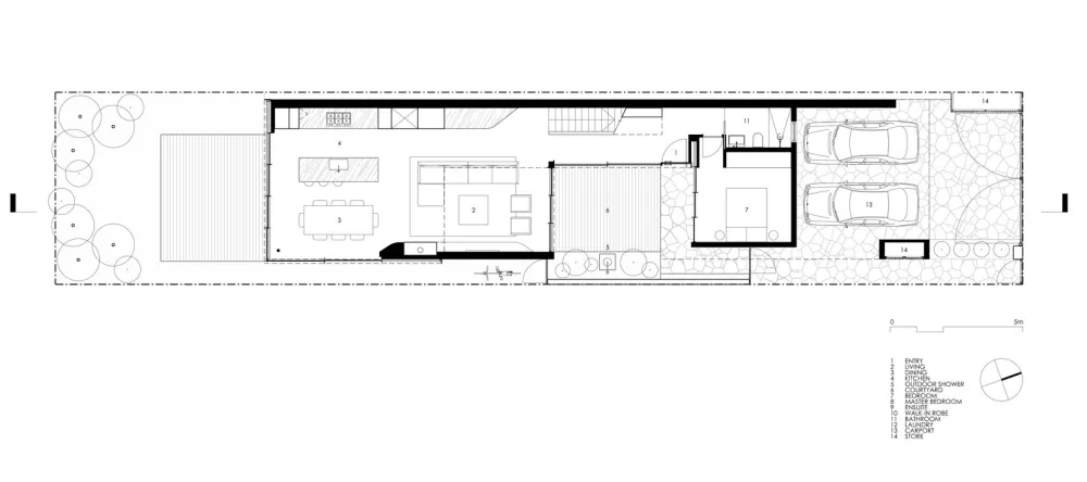
住宅被设计成两个结构,一层的内部庭院和上层的开放人行道相互连接。直线体块被穿孔的孔洞处理方案和环境,每个孔洞在光线上提供不同的效果。住宅的规划划分为一楼灵活的生活空间、上层的私人卧室和次要生活空间;与中央庭院两侧的循环系统相连的楼层。
在住宅内部,通过内部元素中微妙的曲线韵律,外部的直线几何形状被软化;旋转的圆形窗口;一个弯曲的混凝土基座和定制的细木工细工,细木工细工细工逐渐变细,与墙壁相接。暖色调的木材、白色和灰色形成了与邦迪海岸环境的联系,而墙壁饰面,如轻袋砖,捕捉了一天中不断变化的光线。
场地的东北方向形成了一个建筑体量,将光线深入到细长的场地中。从街道上看,一楼体量悬挑在铺有路面的车库之上,通过精心挑选的、有趣的孔洞与邦迪街景融为一体。它为住宅创造了一个缓冲区,关键的生活空间被私人定位,并固定在内部庭院和后方景观花园之间。东立面包含开口,捕捉早晨的阳光,通过滑动木屏风过滤,以保护与相邻邻居的隐私。
景观设计是整体设计的一部分,从概念到与丹加尔·巴林·史密斯(Dangar Barin Smith)的合作,允许户外空间,如后花园、户外淋浴和木材庭院无缝地整合到整个一楼,而一楼的种植床则软化了主卧室的边缘。
该项目是一个简单的,并通过严格的设计细节和建筑团队的工艺相结合实现。与专业承包商的合作见证了定制元素的实现,如弯曲的混凝土基座、旋转的圆形钢窗和可操作的木材隐私屏幕。





项目位置:Bondi Beach, 澳大利亚
设计团队:Kelvin Ho, Georgia McGrowan, Linda Tjaturono
设计面积:196.0 m2
项目年份:2018
摄影师:Murray Fredericks

