SSENSE成立于2003年,是一家加拿大的线上时尚平台和电子零售商,业务遍布全球。该公司由线上商店起家,如今决定开设一系列线下实体商店网点。蒙特利尔空间是该公司于2015年设计的概念试点,由此产生的商店项目在零售行业中创立了一个全新的范本。它不是传统意义上的商店,而是一个集文化、社交和零售为一体的场所,以实体店的形式体现了该公司品牌以数字化为基础的多样性。顾客们可以在商店中体验空间、聚会、试穿他们在网上看到的心仪的衣服,甚至参与到与时尚和艺术相关的文化节目中去。
该项目是一个改造项目,原址是一座建于19世纪中期的废弃建筑,位于蒙特利尔最古老的区域Vieux-Montréal的Rue Saint-Sulpice街上。建筑师保留并翻修了历史悠久的砖石外墙,将内部改造为了一座五层高的新建筑。这种处理提高了原建筑外壳的结构稳定性。将混凝土核心筒结构最小化,从而在每层楼创建两个主要房间,以便于为一系列策划的活动提供简单的场地。建筑底层设有双层通高的入口大堂,顶层则设有玻璃屋顶的咖啡厅。
该项目是一个改造项目,原址是一座建于19世纪中期的废弃建筑,位于蒙特利尔最古老的区域Vieux-Montréal的Rue Saint-Sulpice街上。建筑师保留并翻修了历史悠久的砖石外墙,将内部改造为了一座五层高的新建筑。这种处理提高了原建筑外壳的结构稳定性。将混凝土核心筒结构最小化,从而在每层楼创建两个主要房间,以便于为一系列策划的活动提供简单的场地。建筑底层设有双层通高的入口大堂,顶层则设有玻璃屋顶的咖啡厅。

▼总平面图
▼剖面图
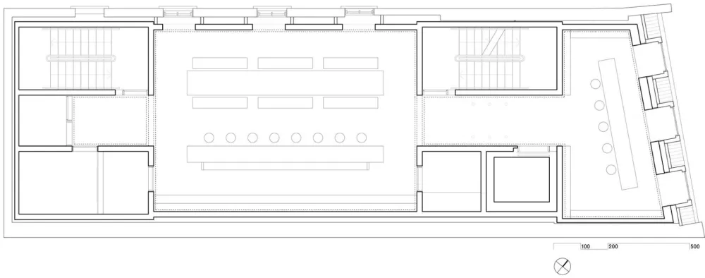
▼首层平面图
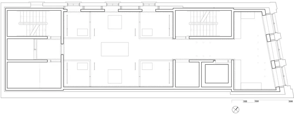
▼五层平面图
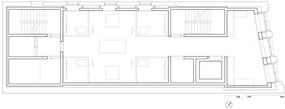
▼三层平面图
▼侧立面图
▼正立面图
设计公司:大卫·奇普菲尔德建筑事务所
位置:加拿大
类型:建筑
材料:石材 钢 砖石 混凝土 玻璃
标签:Interior design Montreal Québec renovation 室内设计 改造 蒙特利尔 魁北克

