闹市空中的桃花源
 
 
“屋上三间”作为一处小型会务接待空间,是为一家金融科技企业位于某科技园区的总部办公楼所做的屋顶花园设计的一部分。整个屋顶花园分布在有退台的三个不同楼层的屋顶上,而“屋上三间”所在的这层屋顶直接与北侧的高管办公区相连,并有机会在这层屋顶上创造一处与花园融为一体的景观建筑。
 
 
我们在设计中借鉴的是唐代诗人白居易在《庐山草堂记》中所描述的“三间两柱,二室四牖”的草堂原型。这样的草堂原型在中国文人山水画传统中具有重要地位,其简朴而又融入山水的品格气质十分符合本项目的内在述求。我们希望以此在闹市的空中营造一处“隐于市”的桃花源。
 
 
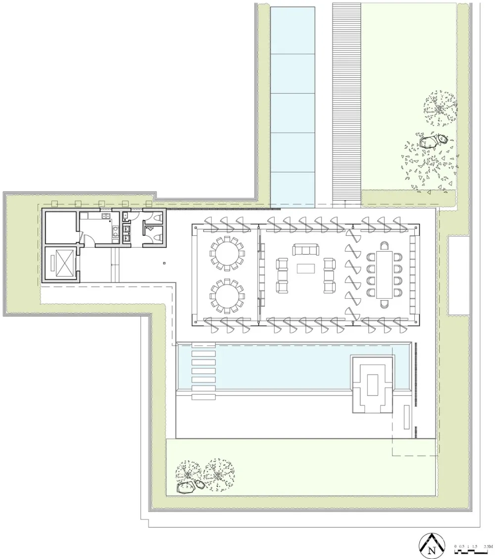
我们把三开间的建筑主体在这层屋顶居中稍抬高布置,正中较大的开间是接待室,东西两侧较小的开间分别是会议室和餐室,其中会议室和接待室之间以一排中轴旋开门作分隔,需要时可以连成一体使用。
 
 
由于本层屋顶呈不规则L形,在建筑南北自然形成面阔和进深不同的两个庭院;北庭纵长,基本面对东侧的两开间,是从高管办公区过来的入口庭院,由一条甬道引向接待室,其东侧为微起伏的舒朗树石草坪,而西侧是层层跌水;南庭阔长,以一个与建筑主体等宽的横向无边方池与南侧檐廊接平,水池西端的汀步跨越过去是一个下沉的活动空间,并有室外茶座伸入池中,而整个南庭的外周都以修竹掩映以营造隔而又透、水天一色的视景。
 
 
建筑的重檐形式很好地控制了尺度感,出挑的下层屋檐正好是环绕四周的檐廊,同时下层屋檐向西一直延伸至原有出屋面电梯处,成为一个宽大的开敞边厅,并覆盖住西北角的卫生间和小厨房等服务空间;而东侧檐廊向南延伸再折返成一段复廊,正好作为南庭水池的东侧端景。建筑南北两面都是连续的中轴旋开落地玻璃门,在合适的天气可以全部打开,这时“三间”于是南北通透,采阴纳阳,与庭园真正融为一体。
 
 
建筑抬高的架空平台下正好容纳空调地送风系统,而建筑主体采用纤细的轻钢结构,辅以温暖沉着的木质内外饰面。极致化处理的轻盈重檐屋顶让尺度宜人的建筑又具有了一种自由感。上层檐配有大天窗的钛锌版屋面和下层檐的阳光板屋面相配合弱化了建筑的体量,而其下统一的实木格栅平顶让建筑内外覆盖下都光线自然柔和。
 
 
 
 
 
 
 
 
 
 
 
 
 
 
 
 
 
 
 
 
 
 
 
 
 
 
 
 
 
 
 
 
 
 
 
 
 
 
 
 
 
 
 
 
 
 
 
 
 
 
 
 
 
 
 
 
 
 
 
 
 
 
 
 
 
 
 
 
 
 
 
 
 
 
 
 
 
 
 
 
 
 
 
 
 
 
 
 
 
 
 
 
 
 
 
 
 
 
 
 
 
 
 
 
 
 
 
 
 
 
 
 
 
 
 
 
场地平面图
 
 
一层平面图
 
 
 
 
 
 
 
 
 
 
 
 
 
 
 
 
 
 
轴测爆炸图
 
 
 
 
项目名称:屋上三间
建筑师:周蔚+张斌 / 致正建筑工作室
主持建筑师: 张斌
项目建筑师:金燕琳(建筑)、何茜(景观)
设计团队:李姿娜、徐跃、李金武、查东尼、隋璐(实习)
结构设计:和作结构建筑研究所
设计时间:2016.07-2016.11
建造时间:2016.11- 2017.11
基地面积:3115 m2
占地面积:275 m2
建筑面积:244 m2
结构形式:轻钢结构
建筑层数:1层
主要用途:会晤
主要用材:型钢、铝材、钛锌板、阳光板、平板玻璃、实木板及实木贴面板、火山岩板、花岗岩板、瓷砖
造价:建筑200万,景观311万
摄影师:CreatAR Images


