晓 面馆,邻家小馆,一碗小面。原本狭长型的店面进行了区块的划分,将使用区间控制在视线范围之内。采用一贯的设计理念,不受时间限制,晓面馆其实是一家开了十几年的小店,这次换了店面之后也一改之前的形象,将复古的元素和色调融入到店铺的设计当中。设计选择了比较复古的造型门窗,让开门开窗充满了仪式感。等候桌是一块翻盖的台板,不用的时候翻面增加木材的铺面。
吧台选择用了小砖片铺面。墨绿色的墙面,用作隔断,其实也是一扇移门,遮挡后部通道。

调料台选择同样的配色和材料,呼应吧台。




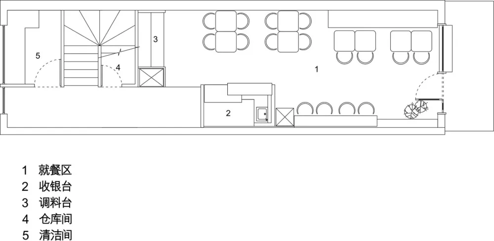
▼平面图
项目名称:晓 面馆
设计:维乐邸设计工作室
联系邮箱:380738@qq.com
完成年份:2018.12
设计团队:唐炜&童33
项目地址:金华万达
建筑面积:100㎡
摄影版权:宣子


谢谢分享