当九华山第一次映入眼帘时,我们可以看到它清晰的形状。峰峦叠嶂,堪称“东南第一名山”。
克孜提迦巴菩萨的铜像静静地矗立在山峰下,与这里的山、水和村庄一起经受住了时间的考验。唐代开元末年,晋文公来到九华;在接下来的1600年里,西提迦巴菩提曼陀已经广为人知。九华山的山峰和山脉与佛教文化融为一体,呈现出独特的风格。
莲花镇就在铜像旁边。事实上,这个小镇更像是一个村庄,有着天然的脉络和成群的建筑,是游客登山后休息、拜佛和朋友聚在一起喝茶的理想场所。
MOMA Lotus Resort是第一个建筑,位于城镇的入口处。“树、井、鸡”是中国人心目中“村口”的形象,也是一种强烈的乡愁。我们为小镇设计的是一个宽阔的广场,水元素,一个铃铛和树。
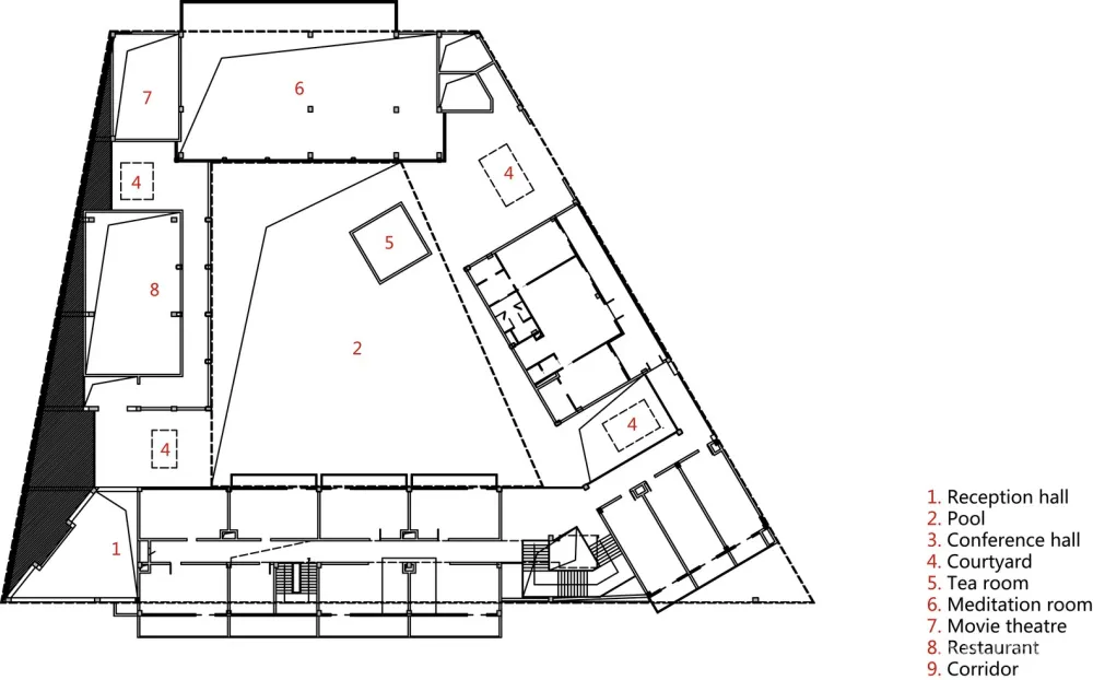
建筑不会以碎片的形式消失在大自然中;它被放置在水面上,形成一个完整的形态,仿佛把四季的景色融入庭院,或者让建筑与景观、天地融为一体,感受四季的变化。空间是人类创造的,世界是你如何感知的。
建筑以这样一种谦卑的方式展现出来,然后随着时间的推移而完善。例如,村落和佛像的出现是人类在不同时期在自然中活动和行为的结果,最终必然与自然融为一体。
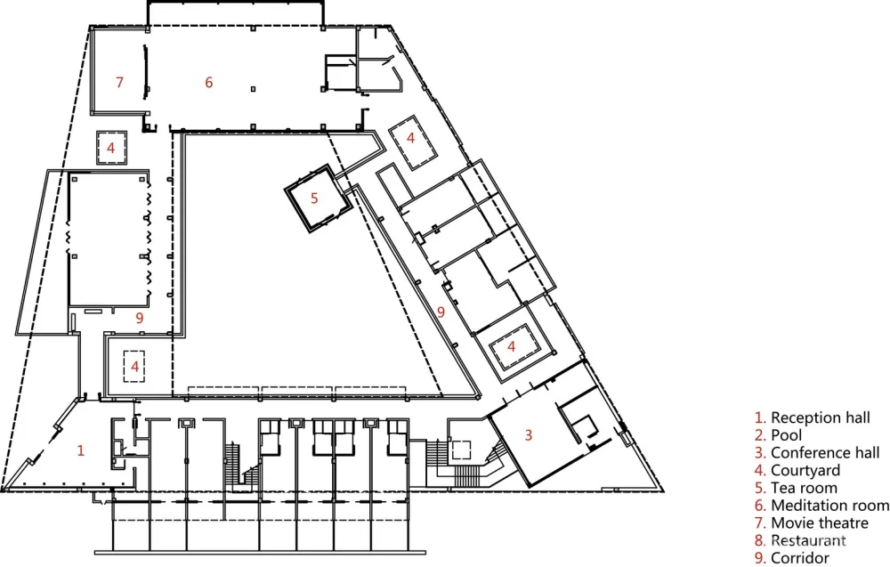
建筑的屋顶是一个向上倾斜的屋顶,最高点在场地的东南角,这也解决了局部两层的功能设置。
在完整的屋顶下,功能被完全分割,庭院被嵌入,模糊了内外边界。院落内外都设计了水元素,通过水的倒影,人们可以从外面品味禅意花园的生活,从里面欣赏不同的风景和山的气候。
建筑以两种颜色装饰,灰色外墙和木质内墙。挂毯砖以空心砖墙的形式拼贴而成,上面覆盖着灰绿色的小瓦片,在乡村的背景下呈现出一种谦逊、平静的氛围。
内庭院的材料采用了大量的木质彩色铝板和玻璃,在阳光下显得温暖。室内和室外的材料在檐口下过渡,吊顶的木质颜色向外延伸,在水中反射,走廊和庭院周围使用灰色砖。流动和延伸是空间的主题。
陡峭的屋顶可以创造更好的光影,但修复灰绿色的小瓷砖并不是一个小挑战。天井采用进口merbau原木,营造出安徽民居典型的“雨水四通八达”的风格。建筑过程就像古代与现代的对话。
游客们可以欣赏到山景,房间布置在南面和东面,在那里可以供奉佛像。建筑二层的房间水平排列,形成内部走道,天窗自然出现。顶部的光线延伸到楼梯的位置,形成几个矩形的窗户,随着光线的变化,一个意想不到的生动空间出现了。
总之,建筑的功能必须由它所处的环境和使用者来定义。建筑融合了中国禅宗和茶文化,在高度和宽度上给予足够尺度的空间创造,并将自然景观和文化元素融入建筑设计中。让不同的用户体验生活状态的放松或禅意的升华,这也是小镇的意义所在。
Architects Lacime Architects
Location Jiuhua Mountain, Chizhou, Anhui, China
Category Hotels
Lead Architects Zhaoqing Song, Xing Xiong
Design Team Qionghua Lin, Yiming Wei, Jun Wang, Zhiwu Zhang
Area 2850.0 m2
Project Year 2019
Photographs Schran Images, Qilin Zhang
Manufacturers Shanghai yaju stone, France Titanium-zinc Panel, Shanghai HAojing Glass

