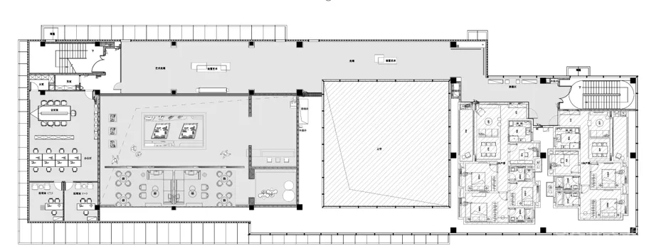
Sales Office
南京一座文化底蕴浓厚之地,设计师团队将对地域文化的理解融入到本次设计当中,结合大华的鲲鹏精神符号,用艺术的表达方式打造出具有艺术馆格调的售楼空间。
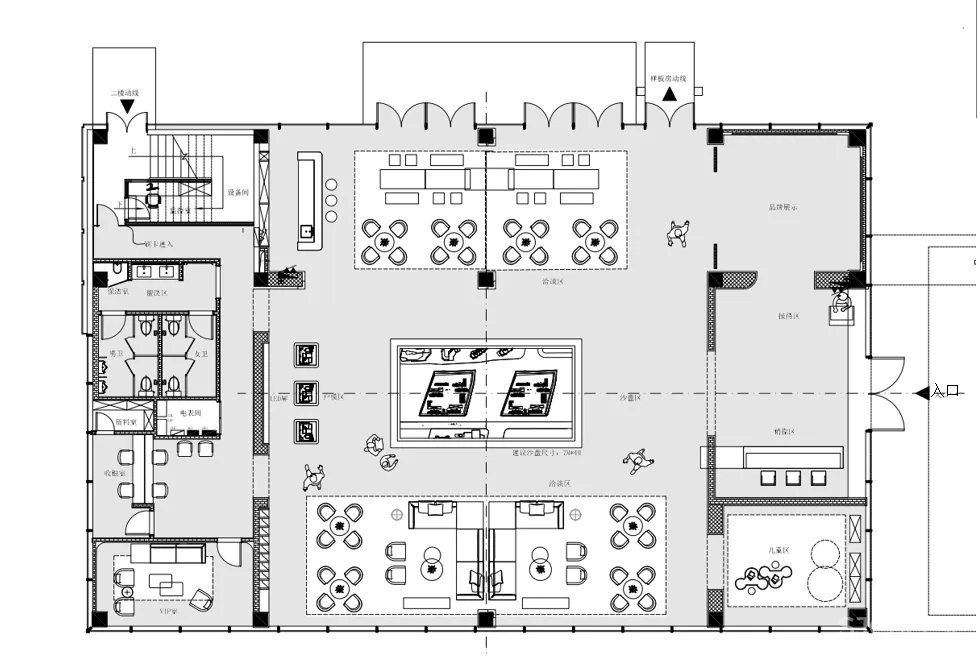
步入门厅,浅色肌理的大理石墙与金属格栅相接,运用了国际化的设计语言和风格,简洁明了的线条将人们的视线引入接待台边的艺术装置。
设计师从金陵山水中提取出元素,将抽象结构转译至简单震撼的几何形态,拆解、错置,提炼、堆叠。将山的具像赋予了新的现代艺术表现形式,展现于人们的眼前。
艺术品装置,是空间的点缀、是文化的提升。欣赏它的过程,亦是设计者与观者互相认同的过程。传统的美学元素,正在以新的视觉感亮相新生。
沙盘区是整个空间的焦点。天花的金属波纹板,水波粼粼。黄铜与亚克力打造的艺术灯具穿梭舞动于空间之中。这种律动与飞舞感,打破了格局上的规整,为空间安静平和的力量来源,成为空间矛盾的平衡点。
洽谈区空间的弧形吊顶打破传统,软装家具采用对称手法,使空间端庄有序,而蓝色沙发在整体浅色系的氛围中,又不失轻松。
水吧台的背景书架点亮墙面,增强雅致与文化感。设计师请当代艺术家秦川为项目专门题写了描绘金陵的诗歌《入朝曲》。
柱角上的摆件,同样延续了这一文化符号,艺术家潇洒不羁的用笔将金陵的气质展现的淋漓尽致,言有尽而意无穷,营造出一方悠闲、自然的
黑白有韵的现代摆件小品、繁盛灿烂但不凌乱的艺术花艺……在洁白简约的空间中,点染了空间高雅出尘的气质,在满足阅读交流体验之外,让人的思绪沉浸于博大悠远的文化氛围之中,还原一种雅静淡泊的精神境界。
VIP室整体氛围稳重大气,延续了洽谈区的灰色调。蓝色装饰画加以点缀,使整体空间更为灵动。
儿童活动空间沿用鲲鹏主题,原木家具、圆型软包,在自然光的全局照耀下,给儿童带贴近大自然的感受和安全的体验!
好的设计需要同时满足人们物质和精神生活的需要。二层的艺术长廊中,设计师以艺术家大段的艺术衍生品打造的艺术画廊增强用户的记忆度,大段的作品配色干净、温柔又治愈,夸张的配色和来自大自然的主题将当代艺术表情显露在几何块的表象之上,空间在新旧合鸣的节奏中完成。呈现出人与人、人与艺术、商业与人文和谐共生的可能性。
– 当下流行的生活家 –
当我们在说「流行」的时候,我们在指什么?
现在的年轻人似乎都趋向“网红”、“INS风”等热门 词汇,外国审美堪称飓风,席卷了20代年轻人的眼球, 粉色再也不是女性的专利,为粉色买单的包含了所有肤色,所有语种的人类,几乎成为了现代商业不会出错的基础色。
当个性和色彩结合,设计师用现代的设计风格描绘出一个艺术又灵动的住宅空间。
艺术家Jakup Auce说:“我觉得与所有的艺术史有着密切的关系,因此有着广泛的灵感来源。我的想法似乎特别是在我忙着做笔记的时候。把不同的元素组合在一起,互相成就。”
餐厅区域以白色为主色调加以点缀些红色,运用球形元素丰富空间层次。
充满想象圆弧、球形等几何元素从地面贯穿整个空间,让步入场所的方式形成丰富的递进、延伸,使一个不大的空间充满层次变化,有着流动、变幻的美感
温暖的灰色阶中富有童真的变幻,星星点点的装饰和星星的靠垫带来宇宙的幻想。花瓣的吊灯下,小木屋的造型将沙发与床有机结合一体,有限的空间构建无限的想象。
– 文艺行动家的生活方式 –
包豪斯一直被称为20世纪最具影响力也最具有争议的艺术院 校,它创建了现代设计的教育理念,取得了在艺术教育理论和实践中无可辩驳的卓越成就。
包豪斯的风格若是用一个词语来概括的话,那就是国际主义风格。即设计概念趋向一种抽象的美学追求。
设计师提取了包豪斯的设计理念,以人为主体设计空间,在风格调性趋向国际化的同时,将舒适的居住体验赋予空间。
餐厅的空间与客厅融为一体,视觉上更加开阔,餐桌边上是艺术家余友涵先生的作品,律动的色彩,将宁静的空间带着炫动起来:红色、橙色、绿色、蓝色强烈的对比又完美的统一起来,如流动的星辰,遵守着特定的宇宙秩序。
两个空间的画作与家具从色彩和理念相互呼应、烘托,让生活与艺术融为一体,空间精致的装饰,彰显了对艺术与优雅生活的追求。
主卧延续包豪斯的几何元素,精简的线条和绿色系的搭配,传递空间的宁静与自然的气息,在自由生长的时光中,让家的故事在此延续。
老人房中以橙黄和金色打破灰色的视觉统一,运用抽象的线条打破物像意义的羁绊,以简洁、干净回应现代人的理性、克制,于纯粹的空间中渐入佳境,在充满温情的时空中升华。
儿童房与书房,将几何型抽象运用的巧妙别致,以趣味性的表达,形成对美好生活的向往,构建出人与空间的自由交互与情感的叠加。感受平静,享受生活!
项目名称:大华锦绣和樾售楼处及样板间项目
竣工时间:2020年7月
特别支持:大华集团(南京公司)
南京大华滨江置业有限公司
甲方团队:沙海波、沈磊、陈吉国、宋晓珉、
张洵 、张有良、 吴襄
软装设计:上海大朴室内设计有限公司
硬装设计:上海大朴室内设计有限公司
艺 术 品 :上海勿量艺术设计有限公司
艺术指导:潘映烁 卞国俊
软装设计团队:孟莉 、任蕾、肖佳皓、
硬装设计团队:魏旭良、李卫国
艺术品鸣谢:余友涵、秦川、大段、苏冰、李鑫春
“上海Dop大朴室内设计”成立十年,旗下四个品牌:“大朴设计”专注于商业地产设计专业品牌;“WIANG ART 勿量艺术”专注于艺术品、艺术家、艺术灯具、家具高定软装艺术品牌;“DOP深化”国内酒店深化第一;“设计得到”室内设计分享平台。
公司在室内设计、软装设计、艺术品设计上秉持以创新、品质为理念,将愿景通过设计手法得到激发和培育,新颖的设计手法、精致的细节、独具一格,得到业内认可。斩获各种国际国内设计大奖,包括设计界“奥斯卡”之称“Adesign Award”设计大奖;美国IDA国际设计大奖;英国SBID国际设计大奖;CREDAWARD地产设计大奖;金盘奖年度最佳软装空间奖,2020亚太空间设计十大地产空间设计机构等。

