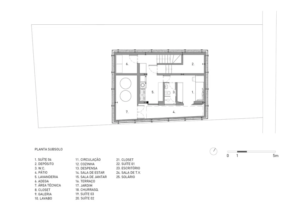
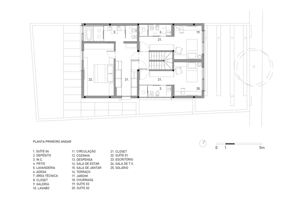
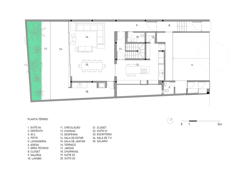
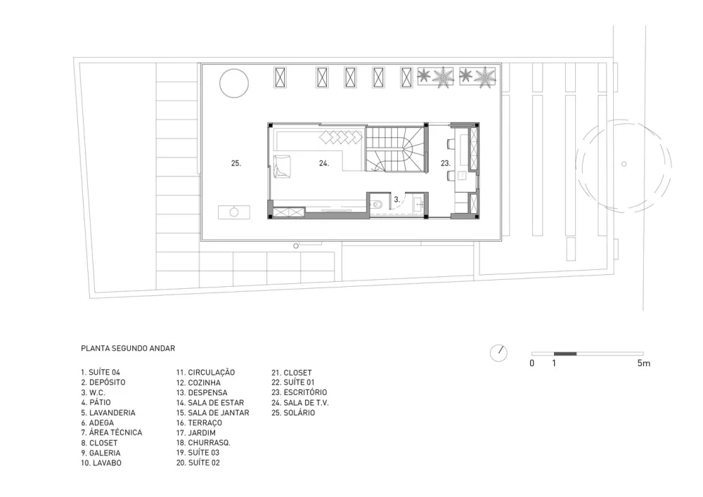
由于项目庞大,MMS住宅是通过混合结构系统(钢筋混凝土和金属结构)建造的,客户来找我们的目的是实现一个解决方案简单、执行速度快的住宅。为此,我们将上述项目分为四层,与住宅的划分相一致:底层被配置为服务部门,底层和最后一层作为社会和共存部门,一层作为亲密部门。
从地形的集中植入和垂直交通中轴线的确定,我们以整合的方式构思空间,以激发居民的社会互动。

为了达到更好的舒适性,我们在所有环境中最大化地采光、通风和户外接触,有时在树梢高处面向街道,有时面向带有热带花园的户外区域。
一个ludic的特征,砖立面似乎根据建筑的末端分解,与砖的朴素形成对比的是,通过使用彩色钢板框架很好地定义了入口和开口。



位置:巴西 圣保罗
日期:2018
摄影师:Ricardo Bassetti

