奇客巴士是一家定位为拉近科技与生活的距离,让科技把生活变得更美好的“高颜值”黑科技集合店。作为奇客巴士的品牌升级,零壹城市建筑事务所为其打造了全新的店面空间设计产品。这次品牌提升被首先应用在了位于杭州西溪银泰店的奇客巴士支付宝旗舰店中,设计受“划分东经与西经的格林威治线”启发,采用充满未来感的科幻空间以及对于传统的人文情怀的区域对比,来描绘技术发展的过程中未来与传统、冰冷的科技科技与温暖的生活之间的对撞,以此营造出贴近品牌定位的高科技零售店。
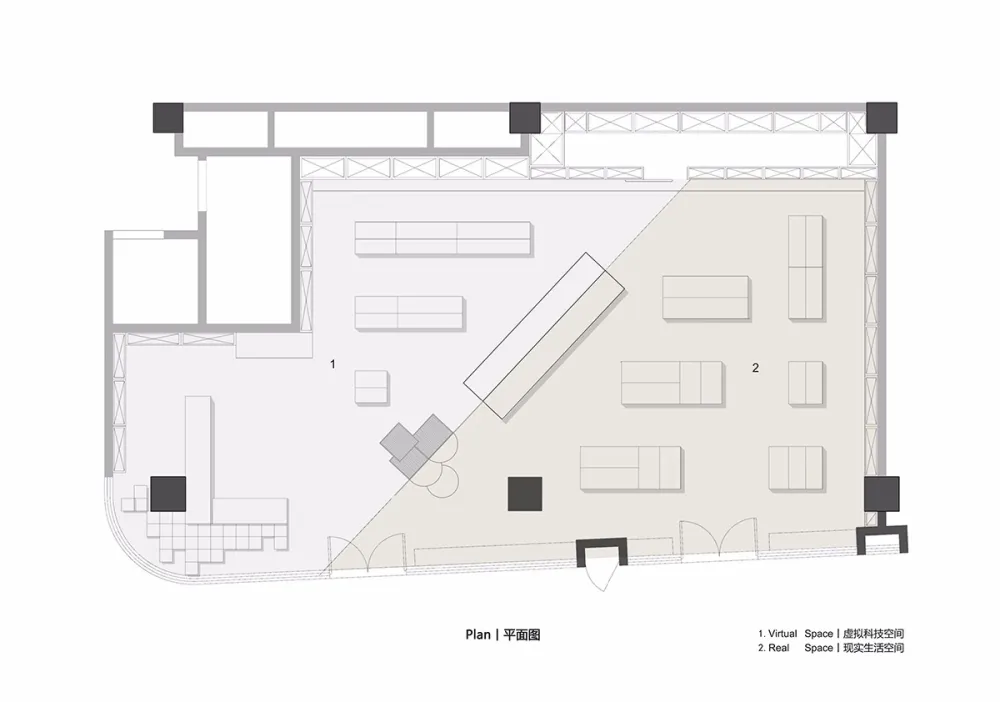
在设计中,奇客巴士以“虚拟与现实的连接者”的角色出现:将规矩的方形场地进行斜向划分,而划分的0度交接线如“格林威治子午线”般作为空间的主轴线,将整个空间分割成强烈对比的两部分,分别定为“虚拟科技空间”和“现实生活空间”,于180度相遇。“格林威治子午线”使虚拟和现实在最大界面上相互对撞,也对空间形成了导向性,将客流引入空间内部。人们在购物的同时,还可以同时脚跨“虚拟”和“现实”两个空间摄影留念。
以一条从地面延伸到天花板的无形分割墙为界,两侧空间的差异为顾客提供了“虚拟”与“现实”截然不同的空间体验。明暗分明的两侧空间是针对不同性质产品打造而成的,一边摆酷酷的、年轻化的高科技产品,一边放潮潮的、生活化的传统产品。明亮的“虚拟空间”与深色的“现实空间”之间,虽形式不一而泾渭分明,但其展柜布置与空间材质的统一规划加强了整个设计的完整性。
由浅色矩阵构成的高科技产品区域里,透光的“能量盒”展柜和通透光滑的表面为“虚拟空间”营造出如履梦境的未来感。大面积铺设深色木板的传统产品区域,搭配金属质感的黄铜,形成质感粗野的工业气息浓厚的“现实空间”。
室内灯光为营造不同的空间氛围而采用特定的照明手法。“虚拟空间”的照明设置在顶面矩阵的相交节点,以此强化空间的矩阵关系,并且从整体上塑造出明亮的“虚拟空间”;而亮度骤降的“现实空间”,则采用金属质感的吊灯与暗藏灯带的组合照明,在深色木材烘托的氛围中,形成传统人文情怀交融的空间体验。



建筑师 零壹城市建筑事务所 地址 杭州, 浙江, 中国 建筑面积 160.0 平方米 项目年份 2017
版权声明:本文内容由用户自行发布上传或投稿由设计芝士代为发布,版权归原作者所有,设计芝士不拥有其著作权,亦不承担相应法律责任。如果您发现本站中有涉嫌抄袭或侵权的内容,请点此提交工单进行举报,一经查实,本站将立刻删除涉嫌侵权内容。

