这套公寓是德黑兰众多公寓之一,深受富裕社会中产阶级的欢迎。然而,随着年轻人的角色扮演以及这种风格固有的冗长所导致的无意义,这种受欢迎程度已经开始下降。破碎的墙壁、缩小的空间、大块形式的天花板、不相称的装饰、材料和颜色的多样性、完全的无序、混乱和冗长是这种熟悉的风格在我们生活空间的重要组成部分的特征。
另一方面,公寓的位置、采光和景观、人均服务和通讯空间的显著性、良好的施工质量、设施等,使我们不能轻易忽视这类公寓的建筑风格的弱点。合理的解决方案是利用这些能力,恢复这些空间,就像世界上其他大城市一样。根据居民的现状和需要,进行良好的改造,创造理想的居住条件,似乎是一种切实可行的方法,可以视为设计目标。
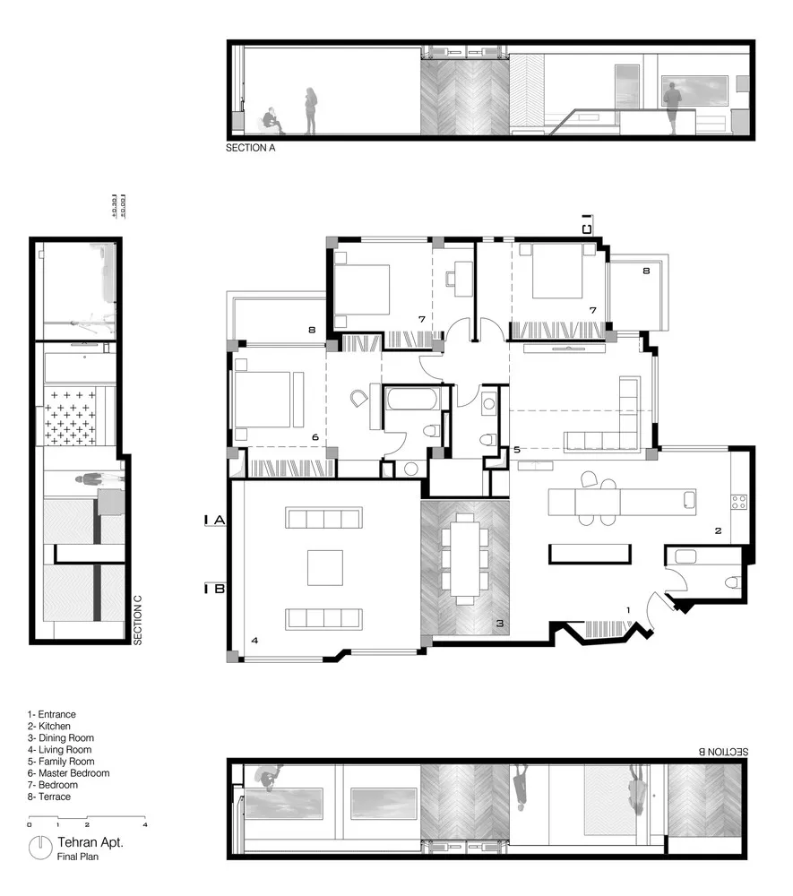
这个公寓就是其中之一;一套位于220平方米基础设施上的11层建筑四层的公寓。这应该是一个商人和他的家人的公寓。在过去的14年里,这间公寓一直是他们的永久住所,现在应该是他们四口之家的聚会地点。一个家庭,每个人都在世界的不同角落继续他们的生活和事业,有时应该聚集在那里。因此,一项任务是将新古典主义公寓改造成现代空间。

“光、空间、秩序”成为我们建筑的模式!为了实现这个想法,为了一种新的生活方式和合适的尺度,绘制了一个简单的空间组织图。为了拥有一种不同但明亮易读的空间体验,一系列开放的关系被定义在一起。
因为这个公寓的出现应该是这四个人而不是建筑,所以这个空间被定义的简单而朴素,在某种程度上,人的存在就是这个项目的装饰和空间的悬挂!因此,让它适应新的生活方式,使象征性的价值与目前对舒适和灵活性的要求相协调,体现在生活空间的“排空”中。
我们的职责不仅仅是为公寓的内部创造一个现代化的涂层。我们试图通过恢复平面几何和空间比例来修改操作,创造家庭生活的空间流动性来增强他们的互动,同时通过消除不必要的墙壁和天花板来增强室内的自然采光。为了达到这个效果,我们推倒了墙壁,重新配置了布局,使想法有更好的流程。
公寓位于住宅建筑的中层,这一事实造成了很多限制,比如固定的结构元素和点,对安装的限制,以及天窗。尽管如此,它还是试图以最好的方式回答秩序、比例和流动性的概念,在艺术、工程和管理方面进行尽可能多的修改,如固定的安装元素,如客人的卫生间。























位置:伊朗 年份:2015 摄影师:Arash Ashornia
版权声明:本文内容由用户自行发布上传或投稿由设计芝士代为发布,版权归原作者所有,设计芝士不拥有其著作权,亦不承担相应法律责任。如果您发现本站中有涉嫌抄袭或侵权的内容,请点此提交工单进行举报,一经查实,本站将立刻删除涉嫌侵权内容。

