这座室内面积为99.5平米的住宅,位于俄罗斯的新西伯利亚地区,屋主购买下这里的最大原因是:住宅拥有一个29.7平米的露台!虽然对于有些人来说这有些奢侈,但是对于独自居住的屋主来说,她更需要的是居住时的舒适感,这样的露台会让她感觉更加的惬意。
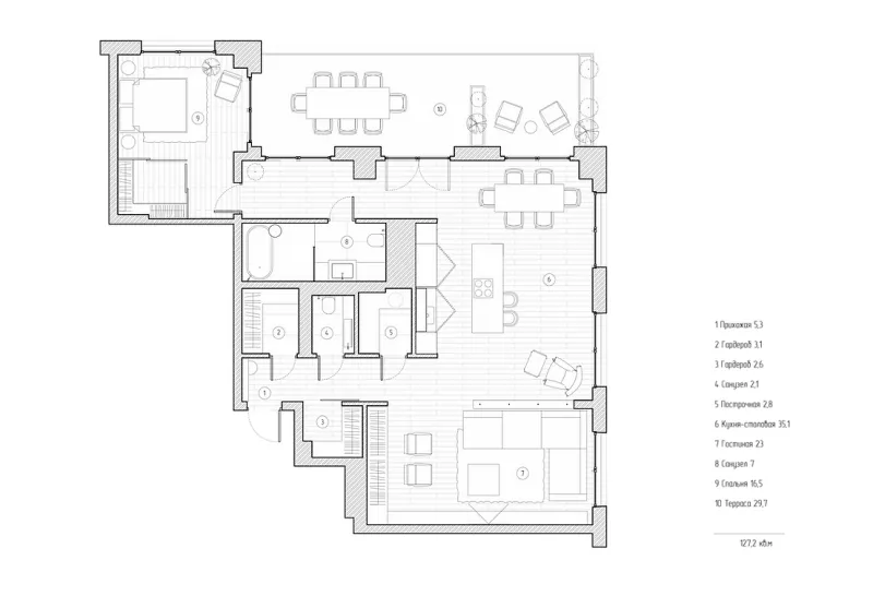
▲自入口开始,整个空间的功能区便随着U型的动线展开,从进门过道的储物间、洗手间、洗衣房到客餐厅以及厨房,再到贴着阳台的过道洗手间、主卧,区域间的联系流畅而紧密。
▲入户过道狭长且无采光点,设计师利用镜面反射出东侧墙面的自然光线,搭配顶部的射灯、杂物的收纳,带来清爽视觉感受。
▲入口过道共有四处功能区,两间储藏室同时作为进出门的衣帽区使用,而这间洗浴室,窄边的洗手池尽量减少空间的占用,这样镂空的台盆简约又具有个性。
▲入口的第四间功能区为洗衣房。
▲客厅以灰色的水泥粉刷墙面,搭配纹理清晰的木质地板,塑造出简约自然的空间氛围,两把瓦西里椅的后方其实是一整面的储物柜,高达天花板的柜体选择了水泥色的壁纸进行铺贴,营造出空间的统一感。
▲模块式的沙发拼接灵活,根据场合改变形态满足需求,虽然室内选择了开放式的布局,但是设计师依旧利用金属与木板搭配的展示架进行了区域的划分,不仅让功能区之间保持了适当的距离,也增添了物品的收纳功能。
▲黑色皮革的巴塞罗那椅在这样的氛围中,更显质感与沉稳的魅力。
▲在U型动线的转弯处,设计师贴边定制了厨房区,高达天花板的木质橱柜将所有电器隐藏,甚至是洗菜池也被收纳在柜体里,中岛吧台增添料理区域,让做饭也成为一种享受。
▲餐厅贴着窗户摆放,深棕色的绒面单人椅,在这一片素雅的色彩中显得尤为温暖。
▲实木餐桌粗壮的桌腿与餐椅利落的线条显得对比鲜明,让视线极具层次感。
▲U型动线的另一条过道包含了一间完整的洗浴室,深色的大理石与胡桃木的搭配显得更加质感华丽,并利用有色玻璃划分出独立的浴缸区。
▲空间的西北角为主卧,与公共区域保留距离让睡眠区更加的安静,由于主卧空间宽敞,设计师利用玻璃格栅的移门划分出衣帽间。
睡眠区延续了灰色调的使用,并加入了清新淡雅的绿色,有一些的时髦,有一些的温暖,在整个中性色的空间里,拥有了女性的柔美气息。
▲经典的单人椅搭配十分常见的干草,瞬间提升空间的质感。
▲这个接近30平米的露台是屋主购买下这里的原因之一,摆放一些专门的室外桌椅,便是惬意又悠闲的放松地。
Elia shubojin, Dennis grachanin

