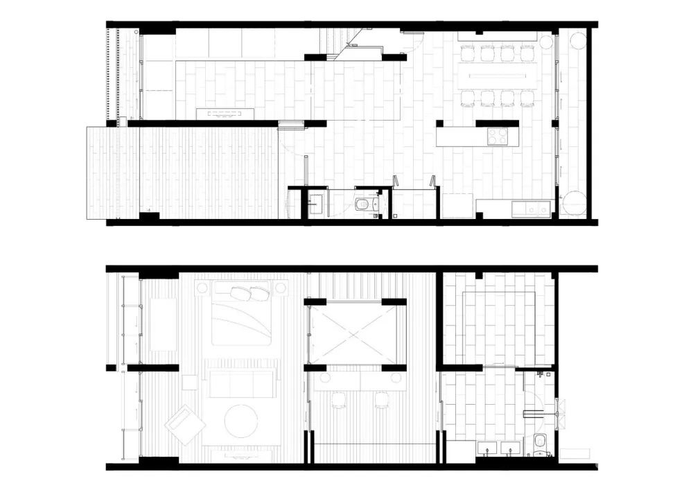
这个改造项目是一个废弃的30年的联排别墅,现有的元素都是破旧的。现有的墙壁过去被用来定义以前的房子功能,现在已经不符合一个小家庭的单卧室单元的新要求。此外,倒塌的屋顶和楼梯导致了对现有元素的重新建模,同时只保留现有的结构框架。

项目的核心要求是“轻”。由于业主更喜欢现有的窄而深,两层,联排别墅刷新,宽敞和明亮。
在现有结构网格的中间部分引入了一个光井,通过新放置的金属板屋顶进行切割。该体量形成了内部庭院,成为住宅的关键元素,用于定义、分离和连接住宅的所有功能。这个庭院还引入自然光渗透到室内空间,贯穿整个建筑,将原有昏暗的室内完全改造。

所有的房间都通过光线很好地连接起来。钢楼梯垂直连接室内空间,不会给现有的结构带来太多负担,同时也允许设计采用轻质细线处理。封闭的房间,如储藏室、化妆室,被放置在围墙旁边。这促进了室内空间从前到后、从下到上的无缝连接。
隐藏的口袋门和卷帘在需要的时候为每个房间提供了隐私,并消失,让每个房间连接成一个。室内空间用元素层隔开。透过层层的篱笆、多孔的灌木和一系列的框架,可以看到房子内部,创造了视觉联系,同时保持了与私人空间的私密性。
从现有的结构网格中细分出来,绘制建筑对齐,以模块化材料构建,所有节点和框架元素对齐,从地板、墙壁、天花板、所有格架、结构元素连接到精致的家具模块。一个干净的白色室内与木材元素的接触和整齐地放置线连接在一个统一的空间拥抱自然采光的内部庭院周围的一切。









































地址:泰国 年份:2018 名称:Transparent Townhome 摄影师:Spaceshift Studio
版权声明:本文内容由用户自行发布上传或投稿由设计芝士代为发布,版权归原作者所有,设计芝士不拥有其著作权,亦不承担相应法律责任。如果您发现本站中有涉嫌抄袭或侵权的内容,请点此提交工单进行举报,一经查实,本站将立刻删除涉嫌侵权内容。

