对于项目的发展来说,最重要的一点是:陡峭的斜坡,美丽的地平线,以及客户有限的预算。由于需要挡土墙,通常带有陡坡的地形在施工中会产生较高的成本,但由于我们有预算限制,我们试图充分利用自然地形剖面,以避免产生高成本的大型结构加固。因此,住宅有一个倒置的概念,主要的入口是通过住宅的上层,其中分布在一个完全整合的社会环境和服务区,这一层被一个浅黑色金属覆盖。
 
 
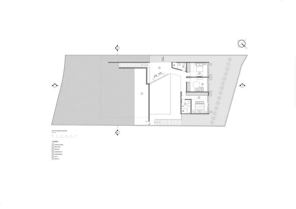
从客厅的滑动玻璃门出去,居民可以进入平台,平台上可以看到美丽的地平线,从那里他们可以欣赏日落。下行的中间楼层住宅,在楼梯的尽头是图书馆,在这一层,我们创建了一个高原冬季花园,还可以欣赏来自房间的地板和作为入口照明和通风的环境包围。穿过图书馆后不久,你就可以进入私密走廊,这里有三间宿舍,都是朝西的。再往下一层,还有一层较低的楼层,上面覆盖着宿舍的投影,住户们用玻璃音乐和花园的另一部分组成了一个房间。

 
 
建筑材料都是自然可见的。该住宅采用混合结构,由结构块、战略点的一些梁和柱以及覆盖层的金属结构组成。所有这些材料在住宅内外都很明显。在一层,我们使用了烧水泥的瓷砖地板,Cumaru木甲板,水疗中心的陶瓷pastille,厨房和美食区的六角形液压瓷砖,cedrinho木衬里。在中间的楼层,我们在房间里使用瓷砖木地板。整个住宅采用黑色铝框架和大量玻璃,与混凝土元素形成明暗对比。尽管更具工业风格,木材的触感和装饰给环境带来了必要的温暖。






















 
 
地址:巴西 年份:2017 设计:Belluzzo Martinhão Arquitetos 摄影师:Mariana Orsi
版权声明:本文内容由用户自行发布上传或投稿由设计芝士代为发布,版权归原作者所有,设计芝士不拥有其著作权,亦不承担相应法律责任。如果您发现本站中有涉嫌抄袭或侵权的内容,请点此提交工单进行举报,一经查实,本站将立刻删除涉嫌侵权内容。
    

