Stoned 重建位于圣奇里诺历史中心的地区。从恢复到拆除和重建的各种干预措施调查了材料在意大利小镇历史城市核心改造中的作用。对传统石墙使用的重新解释必须处理它们的脆弱性,在一个被认为是高度危险的地震地区。
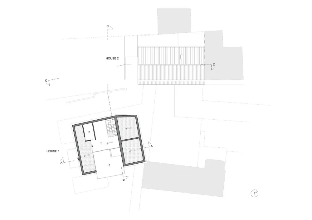
综合体(住宅1)的主楼经过改造,创建了一个单一的家庭住宅,保留了一些具有建筑意义的特征:石墙、拱形门廊和主立面,在主立面中,粗糙的材料与开口的和谐分布相结合。
另一幢建筑(2号楼)是拆除和重建谷仓的结果,谷仓的结构处于危急状态,并转换为马车房。

整个项目以一种讽刺的方式重新创造了建筑元素,发挥了建筑传统、材料的作用和曾经建立的等级制度。

在住宅1中,原始结构被视为一个外壳,在其中创造了一个新的生物体,通过在不同层次上滑动盒子形状的体块来创建复杂的空间。这些裸露的钢筋混凝土盒子以不同的方式从建筑的外部显露出来:在某些地方,它们通过原有的墙壁突出,在其他地方,它们与石墙平齐,或者占据门廊的一部分。

2号楼的重建必须遵循建筑规范的规则,该规则要求所有对历史中心的干预都必须使用传统形状和形式的石头,以防止乡村小中心的身份丧失。虽然房子的形状是由钢筋混凝土板定义的,传统的石头在“装饰”的使用中被重新诠释,以这种方式颠覆了主楼的层次结构。

这两座房子都是混凝土结构(第一个是加固旧石墙),这是为了应对高风险地震地区的需求。

建筑的特点是高度绝缘的外壳和低能耗的系统(热泵)。绝缘层放置在内表面,用干墙或木板完成,与混凝土和石墙的冷外观交替出现。
光线是这些建筑的基本元素:在主楼中,大型开口、小的原始窗户和入口上方的天窗之间的平衡,增强了室内空间和双层高度的感觉。
在马车房中,朝南和朝西的大开口被“帘子石”遮挡着,在太阳下山时产生特殊的照明效果。




位置:意大利 年份:2018 摄影师:Elisabetta Crovato, Mattia Balsamini
版权声明:本文内容由用户自行发布上传或投稿由设计芝士代为发布,版权归原作者所有,设计芝士不拥有其著作权,亦不承担相应法律责任。如果您发现本站中有涉嫌抄袭或侵权的内容,请点此提交工单进行举报,一经查实,本站将立刻删除涉嫌侵权内容。

