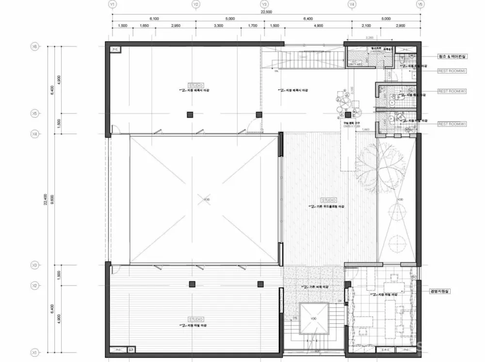
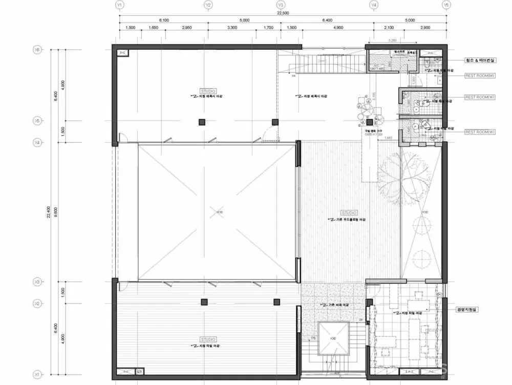
在江南古镇农贤洞,有一幢大型建筑足以覆盖住宅区的一侧。然而,不知何故,似乎没有任何迹象或通知满足的眼睛。在沿着通往的楼梯移动之后,先知们被一种神秘的气氛所吸引,仿佛他们偷瞄了一眼隐藏的花园。在花园中,净化心灵的宁静与热带丛林的动感并存。“ㄷ”形的大型室内空间让我们的眼睛忙。人们享受食物和茶,新鲜的水果和有机饮料放在他们旁边开胃,绿色植物和独特的日常用品…虽然很多元素过于复杂,无法归类为一个特定的空间,但它给人的感觉是舒适和放松的细腻。这正是莫斯花园给人的第一印象。
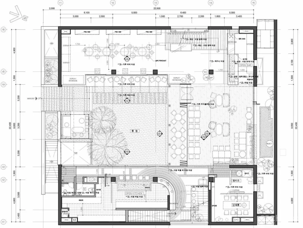
苔藓花园是一个以慢生活为目标的各种内容汇聚的地方;一家花店Zinna James ' atelier和陈列室' Zinna James美丽',农场制作的咖啡馆' St。“Lukemari”,农家厨房“好Samarian食谱”,导演So Sun Lee的“Sosun最爱”,以及栩栩如生的商店“Moss Garden Market”。这是一个集花店、B&F店、多店、画廊于一体的复杂空间,但设计师将这个空间的概念用“秘密花园”这个词进行了明确的阐释。
“我想最大化地利用低矮的天花板和迷宫般的人行线所带来的神秘趣味。”因为多年来我和客户之间有一种特殊的联系,我很了解他对这栋建筑的感情。他想把老木头留在现存的建筑中,让花园的自然环境保持原样。所以我尝试着用生物和谐地创造新事物,而不是在空间中添加人造的东西。我把后花园弄得既粗糙又原始,就像电影《阿提拉·马塞尔》(Attila Marcel)和《远大前程》(Great Expectations)里的场景。
保留建筑的痕迹和优雅,并不意味着不改变空间的感觉。可以说,通过混合适合青苔花园口味的材料来产生效果的方式接近于一种造型。客户优秀的审美观,几位CF总监和一名平面设计师也功不可没。他们坚定的品味和Studiovase的经验丰富的感性将一个粗糙的空间变成了一个高品质CF的场景。当空间像一个序列一样流畅流动时,各种戏剧性的装置在合适的地方展现出来。
也许是因为他没有拘泥于不必要的设计,Moss Garden充满了活力,就像一个好厨师用好材料做的好菜,在生与新之间的过渡地带,营造出独特的场景。“好撒玛利亚食谱”不仅指圣经中记载的好撒玛利亚人,也指由健康材料制成,不加任何添加剂的食物。最终,在这个有点复杂的“秘密花园”中所表现出来的缓慢美学,秘密地揭示了良好空间的本质。

























位置:韩国 年份:2017 摄影师:Woo-Jin Park
版权声明:本文内容由用户自行发布上传或投稿由设计芝士代为发布,版权归原作者所有,设计芝士不拥有其著作权,亦不承担相应法律责任。如果您发现本站中有涉嫌抄袭或侵权的内容,请点此提交工单进行举报,一经查实,本站将立刻删除涉嫌侵权内容。

