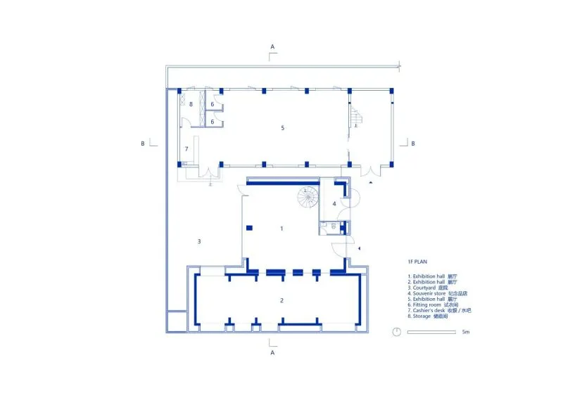
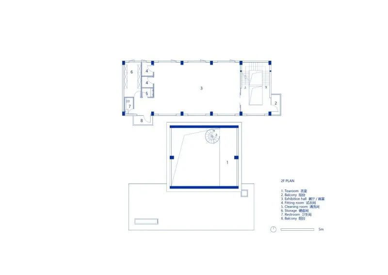
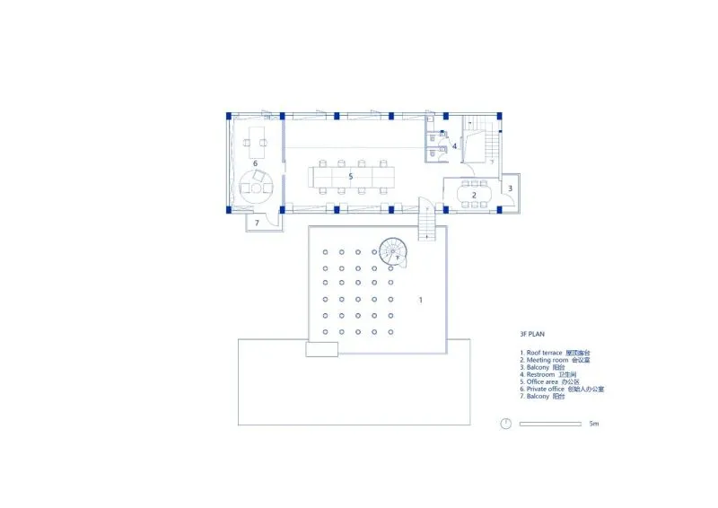
Team BLDG transforms factory bathhouse into skylit art gallery 住宅 21年3月7日 编辑 何以顾人心 取消关注 关注 私信 版权声明:本文内容由用户自行发布上传或投稿由设计芝士代为发布,版权归原作者所有,设计芝士不拥有其著作权,亦不承担相应法律责任。如果您发现本站中有涉嫌抄袭或侵权的内容,请点此提交工单进行举报,一经查实,本站将立刻删除涉嫌侵权内容。
?