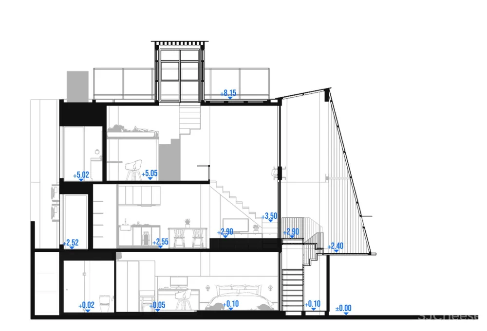
3500毫米的房子宽3.5米(3500毫米),长17米,住着一个年轻的建筑师家庭,他的妻子和儿子。包含的程序是建筑师和他的妻子讨论的结果,他们质疑的是他们真正需要的东西,而不是他们想要的。由此产生了一个100平方米的住宅,为用户提供基本的功能,35平方米的主卧室占据一层,生活-餐饮-厨房(LDK) +洗衣房在二楼,一个床-玩-学习空间的儿子,和一个屋顶上的城市景观。
住宅是一种意想不到的、令人兴奋的空间体验,它超越了我们日常生活空间的限制。密集区域的三层窄屋重新评估了狭窄场地内的功能安排,同时创造了明亮和通风的空间。可承受性和紧凑性是建筑通过在设计过程中整合良好的空间体验、存储系统和低成本策略而成功拥有的价值;从选择3500毫米宽的狭长地块到选择可持续的、低成本的材料和建筑系统,以及存储-活动-气候响应一体化。

其中一个主要的关注点是通过创造一个没有墙壁的空间,提供不同的楼层和天花板高度,并将每一层与不同类型的楼梯-家具-立面结合起来,创造出紧凑的、体验丰富的生活空间。
家具模块与楼梯、活动等功能的集成创造了紧凑的住宅体验,使住宅摆脱杂乱,创造了创新的插件系统。狭窄的住宅基地使房子朝西朝向,我们选择穿孔钢和聚碳酸酯立面作为外部表皮,过滤直射到室内的阳光,天窗位于每一层,创造了从上到下的戏剧性的自然阳光体验。

一种结构绝缘的超级泡沫板,用于墙体,减少热量,噪音,降低成本,提高施工速度。3500毫米的住宅是对紧凑的生活方式的一种渴望的探索,提供自由和空间的适应性,以满足用户当前和未来的需求。许多对空间和建筑的新诠释都是对如何在城市中生活的挑战和努力的反击。






















位置:印尼 年份:2018 摄影师:Kafin Noe’man
版权声明:本文内容由用户自行发布上传或投稿由设计芝士代为发布,版权归原作者所有,设计芝士不拥有其著作权,亦不承担相应法律责任。如果您发现本站中有涉嫌抄袭或侵权的内容,请点此提交工单进行举报,一经查实,本站将立刻删除涉嫌侵权内容。

