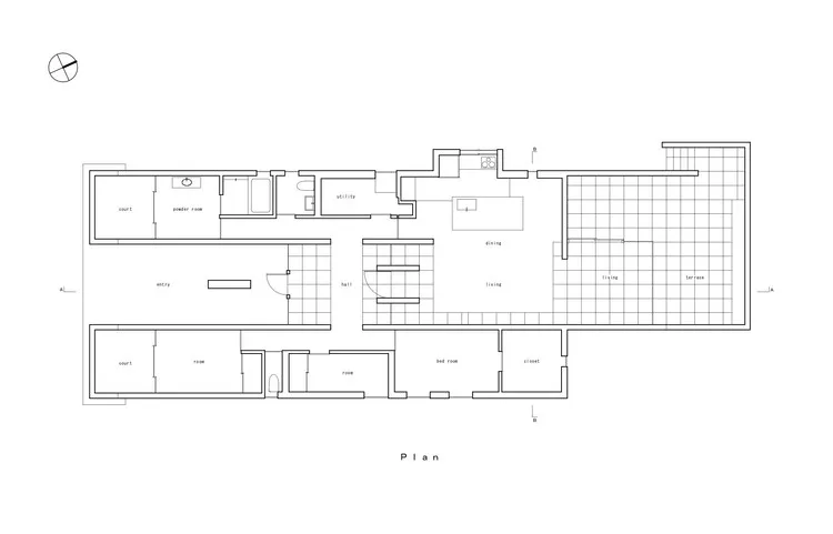
架构师提供的文本描述。该地点位于一条公路沿线,交通流量很大。在客户经营的水泥厂附近,以及父母居住的传统日式房屋周围,有一片土地在扩大。由于环境给人某种混乱的印象,人们寻找一所房子,它会在挡住周围环境的同时,产生视觉上的扩展。因此,我计划了一所房子,它的轴线与北侧对齐,在那里你可以获得最宽的视野,同时从入口到最后面的露台布置出自己的空间。由卷组成的对称立面的凹槽被制成入口处。位于中心的厚厚的墙壁增加了更多的深度感。它还起到了“停眼”的作用,使眼睛不容易通过。
Text description provided by the architects. The site is located along a highway with a large volume of traffic. A field expands around the site that is adjacent to the concrete factory run by the client, and a traditional Japanese house where the parents reside. Because the environment gives a somewhat mixed-up impssion, a house was sought that would produce visual expansion while blocking eyes from surroundings. Thus, I planned a house that aligns its axis with the north side where you can obtain the widest view while laying out the spaces that have their own extensity from the entrance through the backmost terrace. The recess of the symmetric façade composed of the volumes is made into the entrance. The thick and heavy wall positioned at the center adds more sense of depth. It also plays a role of “Eye Stop” that keeps eyes outside from easily coming through.
© Yoshihiro Asada
c.Yoshihiro ASADA
© Norihito Yamauchi
(Norihito Yamauchi)
当进入大厅时,由高容量创造的空间欢迎来自顶部灯光的水光的客人。空间被无缝玻璃侧壁隔开,这给空间的可见性提供了一种透视效果。这两个粗糙的结构墙提供了特殊的方向和沉重的印象,以及在两者之间的空间作为通往客厅的通道。在通道中,可以灵活地打开/关闭一扇门,以发展不同的空间体验。
When entering the hall, the space created by the tall volumes welcomes guests with watery light from the top light. The space is divided by seamless glass sidewalls, which give a perspective effect to the visibility of the space beyond. The two rough-textured walls have been provided to give special direction and weighty impssion, as well as to make the space in between as a passage to the living room. In the passage, a door has been positioned that can be flexibly opened/closed to develop diverse space experiences.
© Yoshihiro Asada
c.Yoshihiro ASADA
彼此连接的生活和用餐空间包含在由空间包围的大体积内。已经尝试通过区分天花板高度和地面水平来对空间进行分段。同时,来自精心规划的洞口的光线产生了变化的阴影和纹理,并创造了一个深刻的空间。
The living and dining spaces that are connected with each other are encompassed within a large volume embraced by the space. An attempt has been made to segment the space by differentiating ceiling height and floor level. At the same time, the light from a carefully-planned opening has produced changing shadow and texture and created a deep space.
© Norihito Yamauchi
(Norihito Yamauchi)
© Norihito Yamauchi
(Norihito Yamauchi)
在这片区域的尽头,从入口继续,我想要实现一个开放的空间,其中包括场景或灯光。因此,我布置了一个房间,可以作为一个客厅的延伸,并提供了一个平台,围绕着这个房间。
At the end of the area continued from the entrance, I wanted to realize an open space that incorporates scenes or lights. Therefore, I laid out a room that can be used as an extension of a living room and provided a terrace that surrounds the room.
© Norihito Yamauchi
(Norihito Yamauchi)
用于房间的瓷砖也用于露台,以产生膨胀感觉,同时增强房间内部和外部之间的连续性。通过北侧的玻璃墙,您可以欣赏到墙的水平线剪裁的视图,使房屋的印象更加丰富。沿轴线展开的空间序列产生舒适的宁静,为日常生活提供了精致的美学。
The tiles that are used for the room are also used for the terrace to produce expanding feel while enhancing continuity between inside and outside of the room. Through the glass wall at the north side, you can enjoy the view clipped out by the horizontal line of the wall, making the house impssion far richer. The sequence of spaces, which are unrolled along the axis, generates comfortable tranquility that gives exquisite aesthetics to daily life.
© Yoshihiro Asada
c.Yoshihiro ASADA

