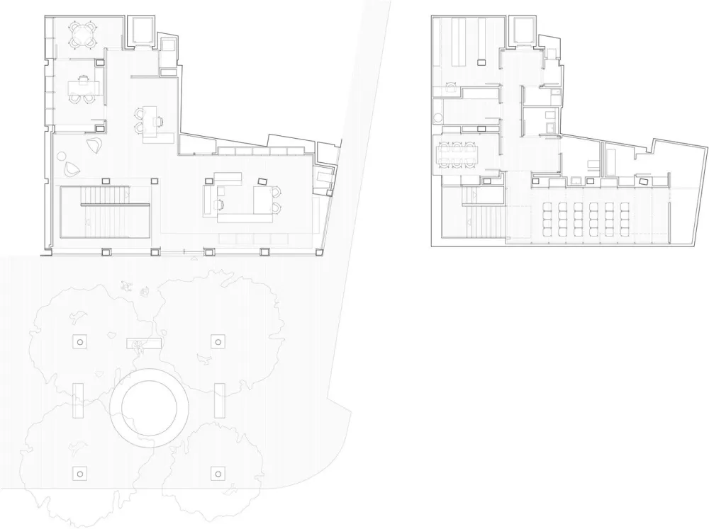
这个空间是一个整体翻新,容纳了在马略卡岛帕尔马市的Arquia Banca品牌参考办公室。它位于住宅用途的一个已经存在的角落建筑内,占据了一层和地下室,其几何形状和面积都相当不规则。暴露在外的前立面很长,有由结构构件决定的开口,并与宽阔的林荫道相互作用,起到广场的作用。
这个新办公室被视为公共空间的延伸和增强。它是一个开放的、可访问的、具有直接的内部和外部关系的大型展览,展示了银行本身的体验。暴露的内部活动在一个由不同的区域组成的空间内进行,这些区域根据各自需要的隐私和关注程度相互关联。
除了其他方面,建筑结构上也进行了调整,使街道能够通行,并引入了连接两层的空间。开放的空间连接了分支的不同区域,邀请自然光进入地下室,并在两层之间容纳了新增加的楼梯。
空间布局利用了物业的l形,并由公共空间向私人空间的过渡决定,公共空间位于前面,私人空间在平面和剖面上都更远。最后,机密和存储设施位于靠墙的后面。
使用了少量的材料,全部来自当地。该项目的重要性补充了空间方案。松木拱顶的序列覆盖了与客户交互的区域。这个新的天花板平滑地融合了原有的柱状网格,旨在创造一种温暖、友好的氛围,伴随着银行体验。垂直墙壁除了涂漆的中密度纤维板外,还使用松木。最后,地面饰面采用抛光水工地砖和水泥,分别针对客户所占区域和剩余区域。






















位置:西班牙 年份:2018 摄影师:José Hevia
版权声明:本文内容由用户自行发布上传或投稿由设计芝士代为发布,版权归原作者所有,设计芝士不拥有其著作权,亦不承担相应法律责任。如果您发现本站中有涉嫌抄袭或侵权的内容,请点此提交工单进行举报,一经查实,本站将立刻删除涉嫌侵权内容。

