而当下的我们也就有了新的思索,抽象的事物是可以让我们感知,当然实体的事物也能转眼化为无形。 将东方回归作为视角和出发点,以当代的形式,来解答传承于东方的意境,营建属于当代中国的「东方美学」……
因此企图摆脱传统东方的繁琐和沉闷,剔除纯粹的传统元素的堆砌。 借由当代东方气质来呼唤当代人心中,对传统和文化自觉的情怀感。 这就是我们对于当代东方的理解,也是我们为雅山 1391 交出的一份答卷——议题·东方美学。
浓烈的色彩加入水墨画中,就犹如现代与古典的激烈碰撞,空间散发着亦古亦今的层次之美。 大堂的第一视觉借由整面山水底色铺垫整体设计,透过金属网状屏风,承托空间的东方意境之美,隐喻内敛中蓄势待发的生命力。 销控台配以特色石材点缀其中,展现空间的简洁与精致,同时结合点状、情境光源,凸显山水屏风、以当代的审美需求来打造东方韵味,呈现出一种令人舒心的美。


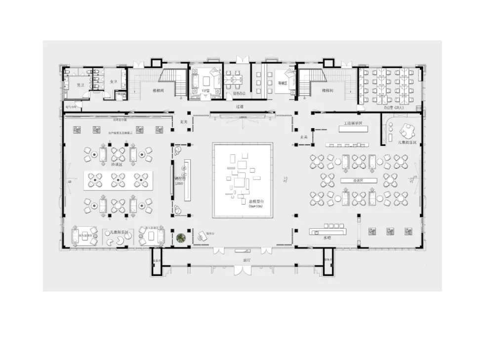
以模型为界,将洽谈分为左右两区,设计最初的意图是打造销售功能的递进关系。 用横向 6 米长水吧台,化解了墙面「高岩耸立」的压迫感,右侧洽谈以散座、沙发组合,结合模型展示的形式,很大程度缓解销售上的压迫感,给人以舒适、尊贵的消费体验。 墙面书架上严谨的架构,神合中国传统的榫卯技艺。 功能区界线的模糊处理降低了块区的割裂感,空间与时间的界线消弭无踪,一场关乎人文的穿越之旅拉开序幕......




「逻辑会使你从 A 到 B,想象力会把你带到任何地方」。这是爱因斯坦的哲学,相较于设计似乎同样适合。 比起用手法去营造形式美,用金属屏风镂空凿刻形成的横竖垂直的线条,自上而下贯穿整个洽谈大厅。 错落有致垂下的吊灯如花瓣、似流云,一颗颗小小的灵魂在空中旋转、飞舞......使空间显得格外优雅娴静。

位于左侧的是深入洽谈区,再以纯铜锻造的金属屏风,与米色温润大理石墙面,透过灯光的洗礼,肌理的疏密以及颜色的渐变,构成「生机」渗透的意象,虚与实,刚与柔,静默交融。 材料表情、手法都十分简洁,而呈现的效果却十分素雅,从未意图沟通东方文化,不经意间它已是东方的、当代的。




「光引发空间的节奏感,室内空间随着外部环境的变化而产生丰富的表情。」 VIP 等辅助空间中,连续的软饰在灯光铺陈下传递复古情怀,烘托出高旷疏朗的空间廓形。 在楼梯前拾级而上,踏着天花板上吊灯投射下来的星光,循着两侧游走的木质扶手,导引至二层,凭栏处俯视空间的构成穿插。
其实我们无时无刻不在面对边界,除了可见的物理边界,更多的是不可见的心理边界,一个好的设计需要去触及边界,不论是建立、跨越、还是打破……
项目名称丨红星·雅山1391 项目地址丨中国·乌鲁木齐 室内设计丨大森设计
版权声明:本文内容由用户自行发布上传或投稿由设计芝士代为发布,版权归原作者所有,设计芝士不拥有其著作权,亦不承担相应法律责任。如果您发现本站中有涉嫌抄袭或侵权的内容,请点此提交工单进行举报,一经查实,本站将立刻删除涉嫌侵权内容。

