该住宅由Galvez & Marton Arquitetura设计,位于一个宽敞的场地,有一个广泛的休闲项目,如游泳池,游戏室,桑拿,休息室,水疗中心和美食区。
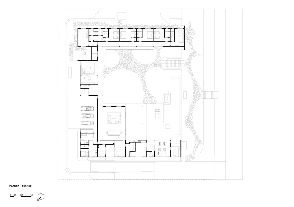
拥有6间套房、生活区、用餐区、美食区、廊道、健身房、桑拿、带spa的游泳池、家庭影院、大型服务区、4个车库、看门人房。近似面积1200 m²,包括池面积和温泉。
这是一幢地面升高的房子,有宽大的屋檐,以防止高太阳入射。起居和用餐区域与有盖的门廊和美食区相结合,允许宽敞的空间来接待朋友和家人。健身房、游泳池、spa、桑拿浴、综合按摩室,景观尽收眼底。
房子的大部分结构是混凝土,客厅和阳台的金属覆盖率很高。石材、石灰华大理石地板、铸铝元素、板条木条衬砌、私密区域拆除地板、铝框架等材料占主导地位。
客户要求在街道上建造带有大花园的凸起住宅,为家庭提供更大的私密性,独立的房间,与客厅和外部区域相结合的阳台。根据建筑师Marton Gyuricza的说法,客户的要求之一是拥有一个综合健身房和桑拿浴室,以及一个可以俯瞰花园、游泳池和景观的按摩室。
该住宅位于圣保罗州的内部,拥有炎热的夏季气候和温和的冬季气候。该共管公寓位于植被繁茂的地区,有大面积的保护区。基于这些特点,景观设计师吉尔伯托埃尔基斯(Gilberto Elkis)提出了一个项目,该项目包含了该地区非常丰富的本地物种多样性。景观具有将住宅与外部环境融为一体的功能,带来热舒适,保护家庭隐私。



































位置:巴西 年份:2017 摄影师:Paula Monroy
版权声明:本文内容由用户自行发布上传或投稿由设计芝士代为发布,版权归原作者所有,设计芝士不拥有其著作权,亦不承担相应法律责任。如果您发现本站中有涉嫌抄袭或侵权的内容,请点此提交工单进行举报,一经查实,本站将立刻删除涉嫌侵权内容。

