比尔国王King Bill 是写给菲茨罗伊的情书。《比尔国王》是菲茨罗伊创作的历史拼贴画,描绘了它的结构、形式、秩序和混乱。
一个四口之家请奥斯汀梅纳德建筑师为他们设计“永远的房子”。他们要求对他们的两层露台住宅进行改造,将东面的空花园场地和后方的旧马厩建筑进行再利用。长期以来,菲茨罗伊当地的客户选择不利用他们的街区开发空置的土地。他们想要更多的居住空间,但他们无意通过建造一个巨大的住宅来最大化经济收益。相反,他们想通过一个富饶大方的花园,回报他们所热爱的郊区。
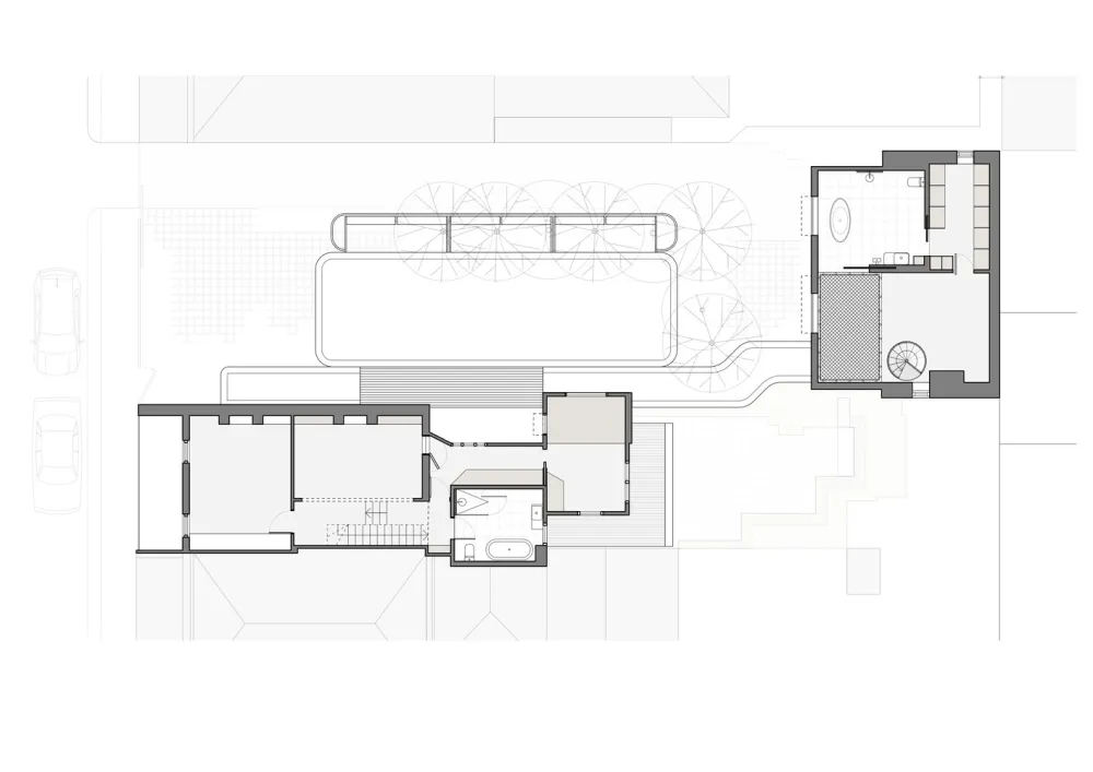
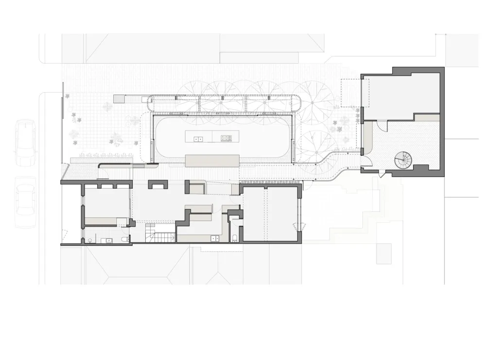
King Bill位于菲茨罗伊(Fitzroy)充满活力的后街,是一座双层露台住宅和邻近花园的翻新和扩建项目。这栋房子(建于1850年左右的5个梯田之一)和它的东部花园最初是分开的地块,最近合并成了一个单独的地块。认识到该地区的重要性和遗产意义,以及丰富的折衷性质的位置,露台立面保持不变。现在,一条玻璃走廊沿着原有平台的东侧外墙延伸,将旧房子与马厩(车库和父母休养所)和新玻璃亭连接起来,新玻璃亭容纳了厨房、起居室和餐厅。
在比尔国王学院,我们开始彻底重新思考这栋排屋,以及它的建造原则。通常情况下,你穿过一个露台的前门,经过两间卧室到厨房/客厅和一个小后院,这通常被房子本身所掩盖。我们把这些原则放在一边,把房子看作是需要新的用途的空旷空间。东边的边墙被打了孔,入口被移到了一边,成为连接旧房子和马厩和亭子的光线充足的走廊。随着入口的移动,原来的露台入口门廊变成了花园,入口走廊变成了浴室。
玻璃亭子被成熟的花园包围,与两边坚固的两层露台的深色砖墙形成鲜明对比。与许多Austin Maynard建筑事务所的项目一样,所创造的空间在性质上有很大的不同,从而使用户能够在任何特定的时间占据最适合他们心情的空间。内向的人想躲起来,在黑暗的空间里看书,而内向的人则想溜出墙壁,躲进花园。


保留现有的树木是创造各种空间的基础。房子和结构经过精心设计,以确保现有的树木在整个建设过程中保持完整。


















































位置:澳大利亚 年份:2018 摄影师:Derek Swalwell
版权声明:本文内容由用户自行发布上传或投稿由设计芝士代为发布,版权归原作者所有,设计芝士不拥有其著作权,亦不承担相应法律责任。如果您发现本站中有涉嫌抄袭或侵权的内容,请点此提交工单进行举报,一经查实,本站将立刻删除涉嫌侵权内容。

