建筑事务所Dan Brunn Architecture通过有趣的现代设计手法,将一个前身为艺术画廊的空间变成了首家大脚怪咖啡厅。 这家位于洛杉矶梅尔罗斯大道(Melrose Avenue)的大脚怪咖啡厅创造了一个神秘的空间环境,给人一种仿佛置身于森林中般的切身体验。
咖啡厅的入口处有一个大脚怪的卡通大模型,它的轮廓由真实的绿植搭建而成的,为空间增添了深度和质感。 山毛榉木材饰面的服务台从这一簇绿植中延伸出来,象征着森林中不断生长的树枝。
▼森林主题的咖啡厅空间全景
▼咖啡厅室内,中轴线的设计加大了空间的纵深感,天花板与墙壁夹角处的葡萄藤创造出无限高度的视觉感受
▼绿植墙对面休息区细节 山毛榉木材打造而成的服务台代表着森林中的树枝,通过一系列商品和食品陈列柜无缝延伸至一个完整的长凳处,以供咖啡供应商们在等待他们的订单时放松身心。 建筑事务所Dan Brunn Architecture设计了这个长凳和吧台区域,以便促进员工与员工、员工与顾客之间的交流和互动。

▼水磨石打造的具有曲线轮廓的固定座椅区
▼平面尺寸详图
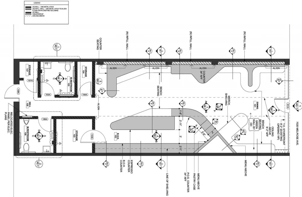
▼咖啡厅平面图
项目类型:咖啡厅 项目设计:Dan Brunn Architecture
版权声明:本文内容由用户自行发布上传或投稿由设计芝士代为发布,版权归原作者所有,设计芝士不拥有其著作权,亦不承担相应法律责任。如果您发现本站中有涉嫌抄袭或侵权的内容,请点此提交工单进行举报,一经查实,本站将立刻删除涉嫌侵权内容。


😊