在Saint-Clair-de-la-Tour “ Le Cap”商务孵化基地是一个为经济发展服务的构造工具。这个拥有1000平米办公室的项目主要针对青年企业家,致力于给公司提供共享办公区域和工作室。
建筑师Reach & Scharff Architectsand Hors les Murs Architecture在专业工程师团队的协助下完成需求和想法革新上的挑战,设计出土木结合的建筑作为新型公司的试验。
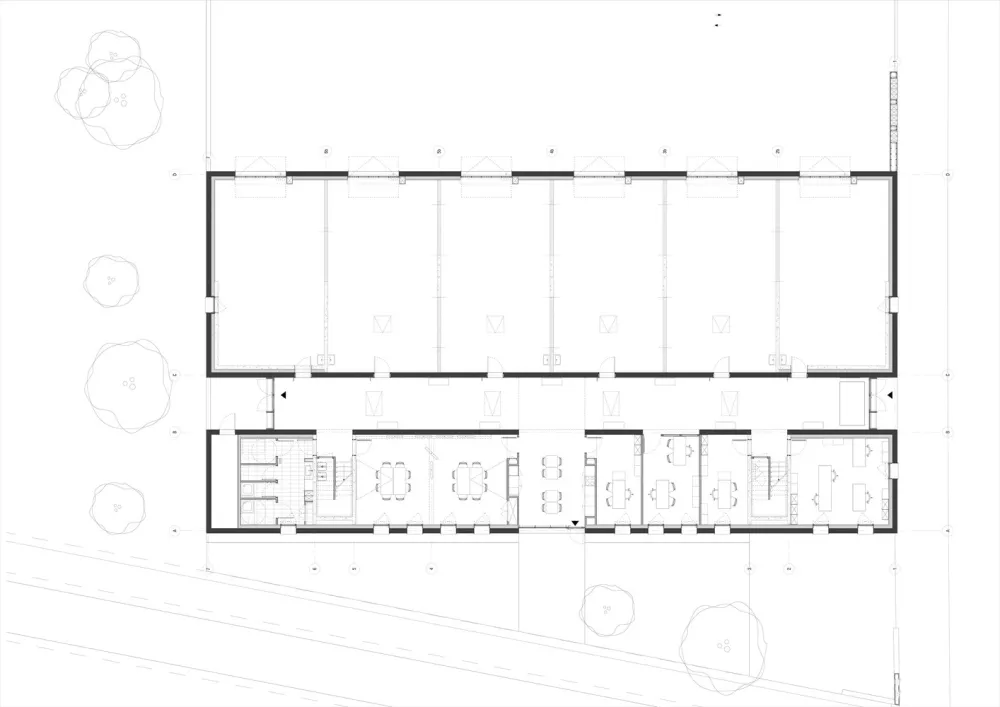
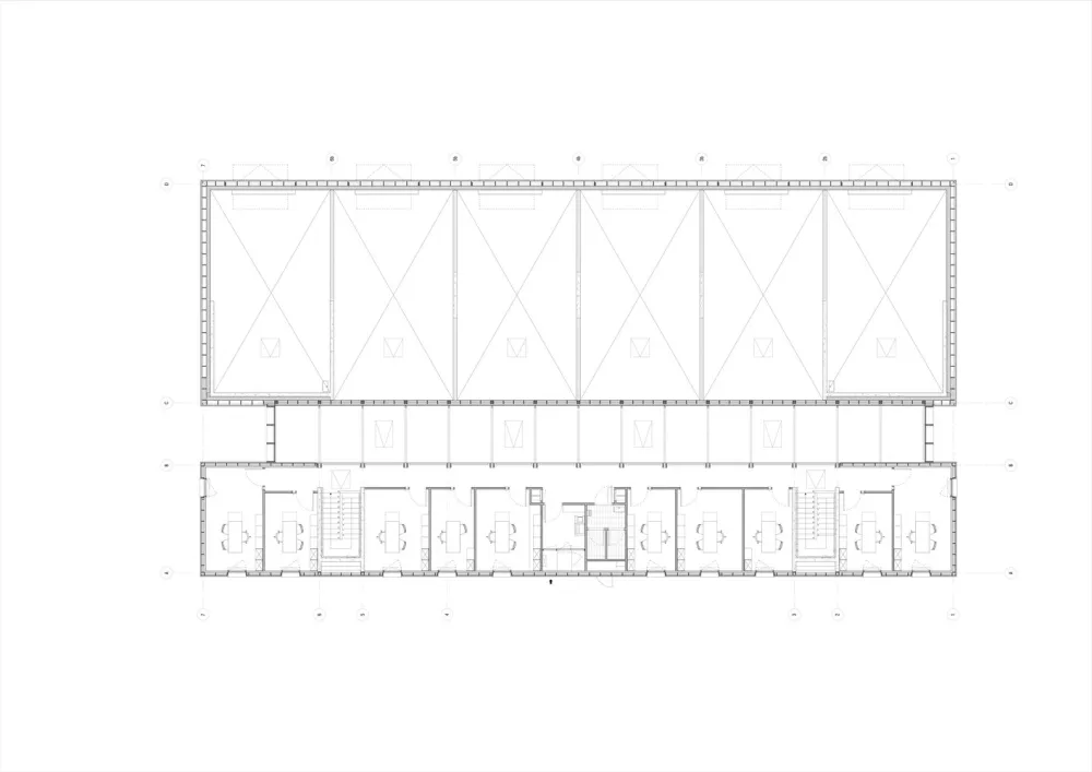
在这种情况下,Le Cap, 紧凑整齐的建筑起到了与周围环境鲜明的划分作用。两栋独立的建筑体量(一个作为办公使用,另一个作为工坊使用)在一个开阔的公园中,由一条中心街道相连接,注定会形成一个活动空间。每一个青年工作者都可以在这个空间里展示他们的作品或者提高工作能力。

Le Cap中多种不同功能的空间(共享办公室)帮助增进了年轻企业家之间的交流以及打破了每个人之间的孤立状态。这里不仅仅只是一个住所,更是一个可以信息工具和支持创造企业,在Dauphiné地区展现企业雄心抱负的地方。
我们团队使用了当时的土和木材来作为项目的建筑材料。铸造土基础支撑起一个架子和木地板。所有的材料都来自于距离场地半径小于30千米范围内。

项目应用土作为材料灵感来源于法国本土的夯土建筑在这个区域众多。用浇筑粘土的方式可以使得场地上原有的材料通过现代的版筑在一起,这种手法非常接近于传统的混凝土浇灌方式,同时,这种方式相较于夯土来说更加快捷和便宜。
粘土材料来自于场地本身(30%),然后在材料中再添加沙石。墙体中倒入了植物油,然后在等待土里的水分慢慢蒸发。

应用版筑技术能使得材料本身色泽鲜明,且在空间上具有更加柔和的质感。成品上有一些褶皱和不规则的部分,这些裂缝是由于在粘土风干的过程中收缩产生的。墙体从内部保温隔热,从而可以在中心街道上看到外墙面的纹理。
二层是预制木架,木墙和羊毛隔热层还有预制的道格拉斯瓷砖护墙板。

这个项目将会成为未来该区域的一个信号,将会给领企业活力带来一种新型的审美。























建筑师 Hors les Murs Architecture, Reach & Scharff Architectes 地址 38110 Saint-Clair-de-la-Tour, 法国 主创建筑师 Philippe Reach, Nicolas Scharff, Joseph Rigot, Timothée Dietz 建筑面积 1008.0 平方米 项目年份 2018 摄影师 Kevin Dolmaire
版权声明:本文内容由用户自行发布上传或投稿由设计芝士代为发布,版权归原作者所有,设计芝士不拥有其著作权,亦不承担相应法律责任。如果您发现本站中有涉嫌抄袭或侵权的内容,请点此提交工单进行举报,一经查实,本站将立刻删除涉嫌侵权内容。

