我们是一家带餐厅的「 厨房 」 而不仅仅是带厨房的「 餐厅」
1.Cocina Hermanos Torres是位于西班牙著名城市巴塞罗那的米其林二星餐厅,由双胞胎兄弟Sergio & Javier Torres 创办。“以前,我们经常遇到无法在厨房内大展身手的情况,Cocina Hermanos Torres是一个很棒的厨房,而非传统的餐厅,在这里,厨师、服务员与顾客之间的互动令人异常兴奋,为顾客创造非凡的烹饪体验。”——Sergio Torres

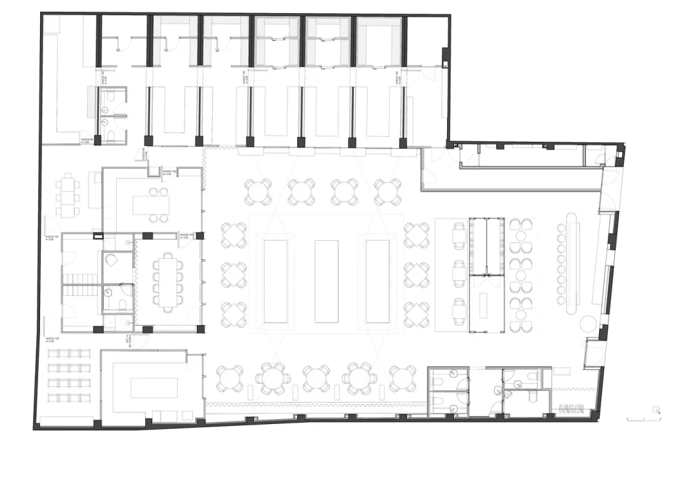
Cocina Hermanos Torres的大胆尝试在欧洲广受好评,餐厅以中央区的开放式厨房为中心,打造一种全新的以互动为中心的烹饪体验与美食享受。
2.OAB 餐厅的设计由巴塞罗那著名的本土建筑事务所OAB操刀,OAB由著名建筑师Carlos Ferrater 于1971年创办,近些年的建筑作品偏向于白色极简,于本土的建筑风格之上,寻找一种自然的诗意与文化追溯。









餐厅所在的位置,曾是一个简陋的废弃工棚,经过OAB的改造设计后,秒变一座清新自然房子,外观的手绘作品由著名艺术家贾纳绍拉创作。
4. “我们收购这个工棚的第一个想法,就是要打造一家消除顾客与厨房的分界线的餐厅,让享受美食成为一种快乐!” ——Javier Torres
餐厅的改造设计,保留了原有工棚的天窗结构,以开放式厨房为中心,四周是散座及包房,突出了厨房的重要性,追求厨房与顾客互动的最大化。 Cocina Hermanos Torres从设计到运营,均以空间互动为先,体现服务的重要性。也许,这才是真正的“客户至上”。









餐厅的卫浴产品采用全球领先的顶级品牌Roca乐家,Roca乐家始创于1917年,总部位于西班牙巴塞罗那,经历100多年的发展,业务涉及五大洲的170多个市场,并始终致力于为消费者打造更高品质的卫浴体验。


Roca乐家注重与最负盛名的建筑师和设计师开发产品合作,Roca乐家伦敦艺术廊就曾邀请了已逝建筑师Zaha Hadid打造。

品牌:Cocina Hermanos Torres餐厅
版权声明:本文内容由用户自行发布上传或投稿由设计芝士代为发布,版权归原作者所有,设计芝士不拥有其著作权,亦不承担相应法律责任。如果您发现本站中有涉嫌抄袭或侵权的内容,请点此提交工单进行举报,一经查实,本站将立刻删除涉嫌侵权内容。

