在上个世纪的大部分时间里,士兵们都住在军事医院里,这是一座新古典主义的纪念碑,这是一座位于安特卫普19世纪杂乱无序之中的新古典主义纪念碑。这座美丽的建筑现在已经恢复并重新开发成一个宁静的城市天堂。
During most of the pvious century, soldiers were looked after in the military hospital, a neoclassical monument situated amid Antwerp’s 19th-century sprawl. This beautiful complex has now been restored and redeveloped into a serene urban haven.
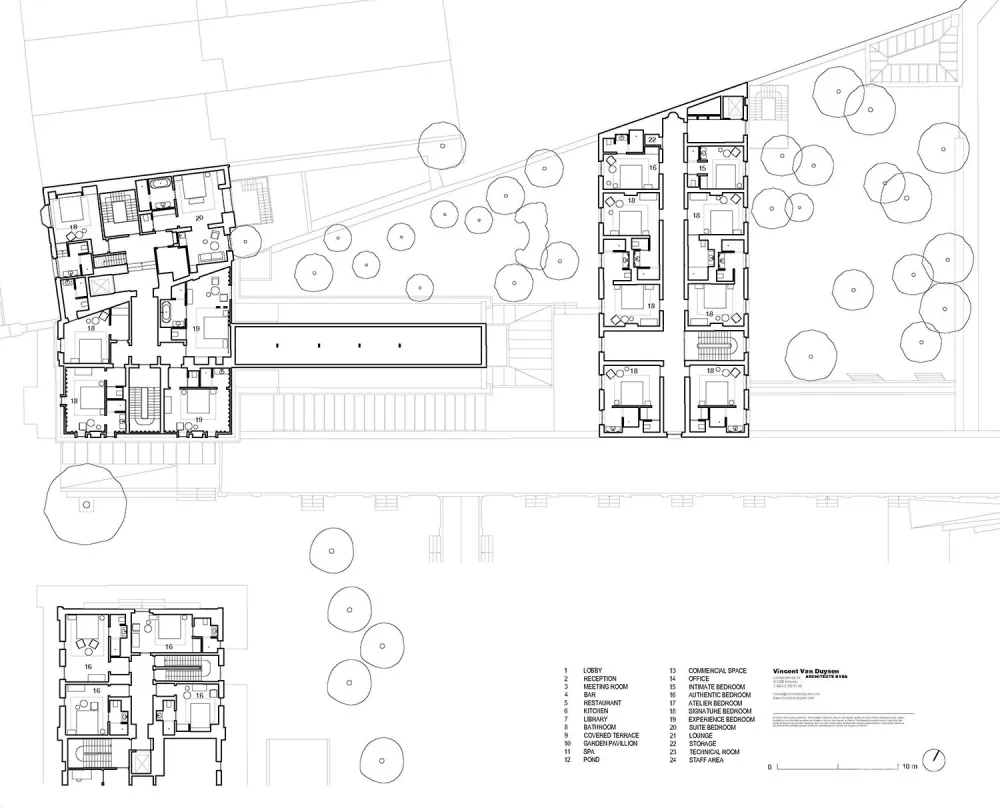
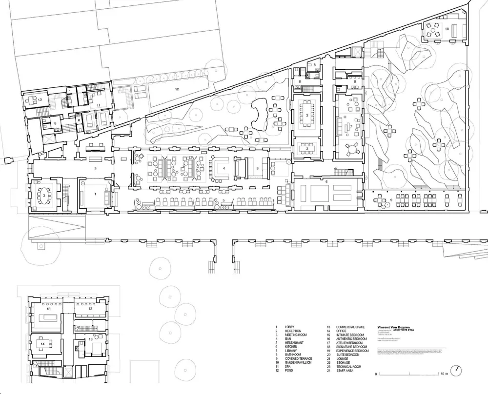
原来的建筑群中有一个女修道院,其各种各样的建筑物是照顾士兵的修女们的家,她们可以在这里逃避协助病人和伤员的艰巨任务。前面的建筑为游客和客人提供了一个接待区,而一个更精致的、位于中心的小教堂则方便了礼拜。主住宅楼和它的花园与其他建筑稍微分开——事实上,大多数路人甚至没有注意到医院的这部分存在;然而,由于它的功能,它形成了宏伟的纪念碑不可分割的一部分。
Contained within the original complex was a convent, whose diverse typology of buildings served as home to the nuns who looked after the soldiers, a place in which they could withdraw from the demanding task of assisting the ill and wounded. The front building housed a reception area for visitors and guests, while a more elaborate, centrally located chapel facilitated worship. The main residential building and its gardens are slightly separated from the others – in fact, most passers-by hadn’t even noticed that this part of the hospital existed; yet, by way of its function, it forms an inseparable part of the magnificent monument.
Vincent Van Duysen将隐藏的宝石和花园变成AUGust的策略,首先是尊重场地及其周围环境的历史DNA,并遵循重新开发上市建筑的一般原则。这是通过小心翼翼地恢复其新古典主义的辉煌(与Wouter Callebaut Architecten合作),并通过添加当代建筑元素,适当地将建筑升级为现代酒店的新功能来实现的。
Vincent Van Duysen Architects’strategy in turning the hidden gem and its gardens into AUGust was first and foremost to respect the historical DNA of the site and its surroundings and to align with the general principles governing the redevelopment of listed buildings. This was achieved through the careful restoration of its neoclassical splendour (in collaboration with Wouter Callebaut Architecten), and through the addition of contemporary architectural elements, suitably upgrading the pmises to its new function as a modern hotel.
该项目由三座花园和五座公共建筑组成,全部采用新古典主义精神。人们仍然可以感受到修道院修女们那种低调、朴素的生活。教堂和公共入口比其他地方都要精致得多,这符合它们的重要目的。利用新技术——在安特卫普港口的造船厂中广为人知——军方对当代钢结构进行了测试,以补充砖房的总体规划。所有的设计决策都是基于对现有架构的尊重,故意不让必要的结构工作造成任何视觉障碍。
The project consists of three gardens and five public buildings, all in the neoclassical spirit. One can still sense the sober, understated life of the convent nuns. The chapel and public entrance are much more elaborate than the rest, in keeping with their important purpose. Utilising new technology – well known in the shipyards of Antwerp’s harbour – the military performed tests on the contemporary steel structure that complements the master plan of brick buildings. All design decisions have been guided by a respect for the existing architecture, with the wilful intent not to let the necessary structural works create any visual impediments.
酒店的主入口上方悬挂着黑色的遮阳篷,再加上一棵新栽的树,这是客人们第一次看到的。这些是指覆盖在医院楼阁前露台上的玻璃遮阳篷,同时也起到了吸引游客的作用。就像邻近Cogels-Osylei的装饰艺术天篷一样,入口象征着安特卫普的一个新的城市实体:AUGust。
Black awnings hover above AUGust’s main entrance and, along with a newly planted tree, serve to ‘identify’ the project – this is what guests will first encounter. These refer to the glass awnings covering the former terraces of the hospital pavilions, while also functioning to beckon visitors. Like the Art Deco canopies in neighbouring Cogels-Osylei, the entrance signifies a new urban entity in Antwerp: AUGust.
室内方案滋养了现有的特色,突出了灰绿色的木镶板、白色的线条等等,重新整合了原有的元素,再现了其他被破坏或减少的元素,同时选择性地引入黑色元素,以区分现代和经典。这种设计方法在整个项目中得到了有意识的应用,为新公众带来了经典的感觉。
The interior scheme nourishes the existing features, highlighting the grey-green timber panelling, the white mouldings, and so forth, reintegrating original elements and reproducing others that have been damaged or diminished, while selectively introducing black components to distinguish the contemporary from the classic. This design approach has been consciously applied throughout the project, reviving the classical feel for a new public.
坐落在冬季花园的是餐厅,其玻璃屋顶强调了其在综合体中的中心功能。精心修复的装饰型材和门,以及手绘瓷砖和白色大理石,正如在教堂中看到的,是这些内部空间中无可争议的主角,在这里,黑色元素再次代表了新的元素,提供了对比,轻轻地给酒店带来了当代生活。
Nestled in the winter garden is the restaurant, whose glass roof emphasises its central function within the complex. Carefully restored decorative profiles and doors, along with hand-painted tiles and white marble, as seen in the chapel, are the undisputed protagonists in these internal spaces, where again, black elements repsent the new, providing contrast and gently bringing contemporary life to the hotel.
AUGust,现在关心另一种客人,邀请游客聚集在前小教堂内的酒吧,并参与其各种服务,如在阳光照射的餐厅品尝美食,体验迷宫般的花园,并在其44间客房过夜。虽然这些活动与修道院生活的活动没有什么不同,但不同之处在于从私人隐居到公共场所的转变,以及过夜停留的可能性。酒店客人的目的是在愉快,好客的环境中感受到完全的放松和自在,获得前居民在敬拜上帝时所感受到的同样的快乐。
AUGust, which now cares for another kind of guest, invites visitors to gather at the bar inside the former chapel and to partake in its various offerings, such as savouring a fine meal in the sunlit restaurant, experiencing the maze of gardens, and spending the night in one of its 44 guest rooms. While these activities are not dissimilar to those of convent life, the difference lies in the shift from private seclusion to public access, and in the possibility of overnight stays. The aim is for hotel guests to feel completely welcome and at ease in a pleasant, hospitable environment; to derive the same kind of joy the former residents felt in worshipping God.
设计:Vincent Van Duysen


?