每年平均有220天多雨,加上台风频繁登陆,这是一个全新的改造区,结合了专为行人活动设计的小巷,满足了城市生活方式的居住需求,年龄范围广。依兰的房子反映了依兰的风土人情
在6*30m的场地内,我们提出了三种设计方法。首先,通过设置“开放式雨声庭院”作为空间核心。第二种方法是开发相对较低的乡村住宅的“相对高层”,每一层都规划有一个“三维生活天井”、盆栽和活动功能。最后,在一个缺乏开放空间的城市中,我们渴望将我们的屋顶花园提升为一个新的地面,适合在城市的孤寂中观赏星空,聆听海洋。“开放与连接”是回答这个命题的策略。

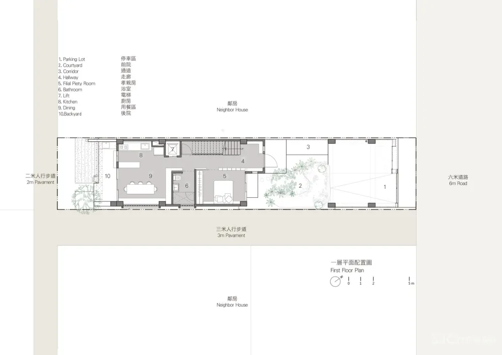
地面向街道开放:原来是车库,现在被重新分配为行人公共拱廊的一部分,也用于雨季的活动。
后街开放空间:厨房向后街或热闹的小巷开放,包括蔬菜花园和室外水池。死胡同成为邻里活动的社区空间。
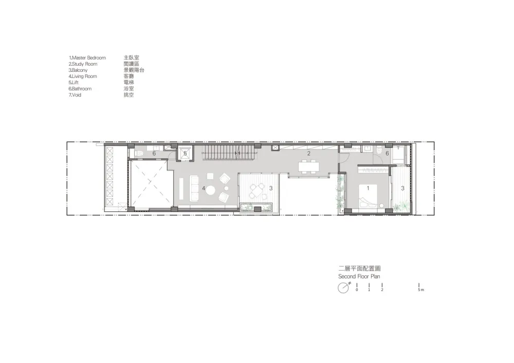
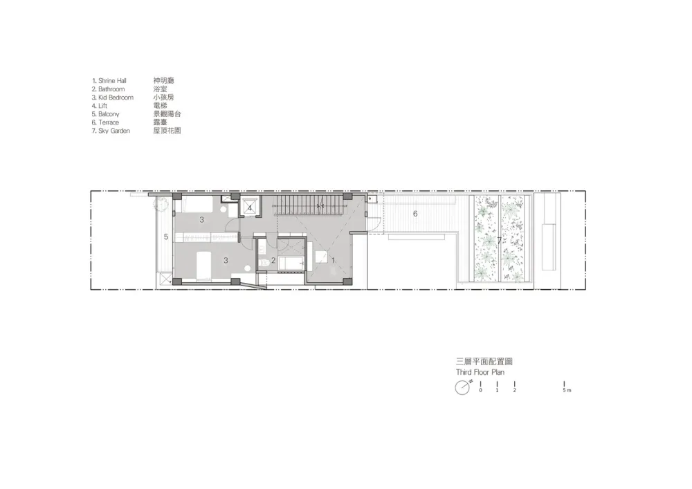
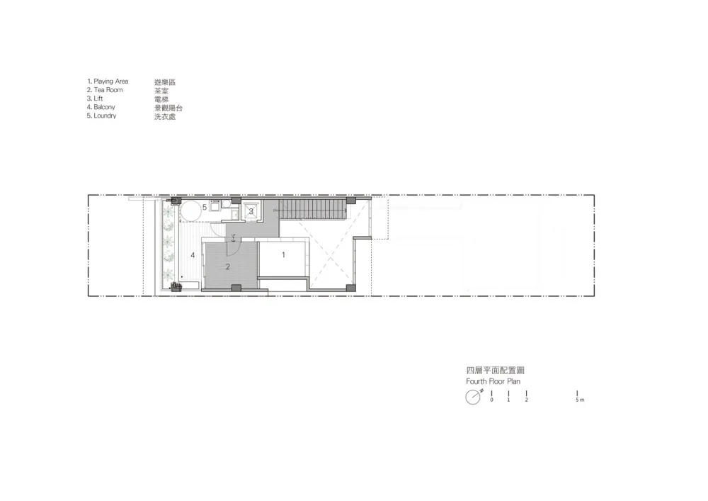
中庭连接空间和活动:连续弯曲的天花板、杉木板模压混凝土构成中庭。中庭连接一楼的厨房餐厅、客厅、走廊图书馆和二层3.5米深的半室外空间。通过连接空间,中庭也聚集了住宅中的活动。三楼的神社,两层高的书墙和四楼的茶室,另一个巨大的坡屋顶覆盖了所有。开放式的楼梯使房屋垂直通风,并将热量呼出。

面对道路[向外],空心砖立面给人一种模棱两可的感觉,并作为抵御台风的边界。面对庭院和后巷(向内),巨大的开口让人享受阳光和绿色植物。外隐内开,是一种新的城市生活态度。

生态池塘、后院的菜场和屋顶花园,都是城市生活中自然的元素。
依兰平原上的头城村呈现出乡土景观的特征:光滑的卵石滩、暗礁、古老的小巷、古老的拱廊、一望无际的稻田、坡屋顶、屋顶扩建、水洗的石器时代装修、红砖、走廊、住宅庭院、盆栽棚……所有这些都在建筑中重新塑造成新的形式。








地址:台湾 年份:2018 名称:Opening Row House 摄影师:Studio Millspace
版权声明:本文内容由用户自行发布上传或投稿由设计芝士代为发布,版权归原作者所有,设计芝士不拥有其著作权,亦不承担相应法律责任。如果您发现本站中有涉嫌抄袭或侵权的内容,请点此提交工单进行举报,一经查实,本站将立刻删除涉嫌侵权内容。

