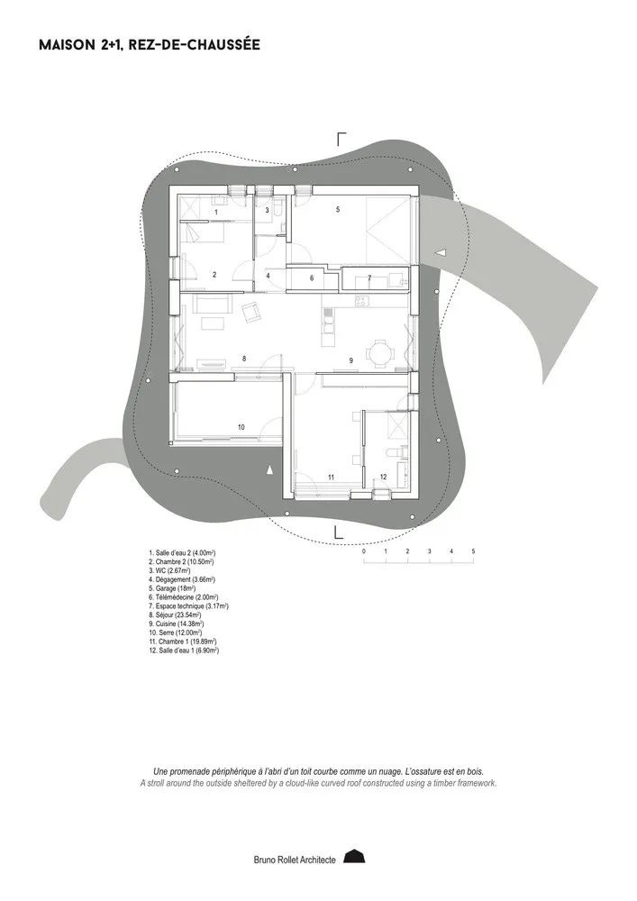
2+1 住宅有着可以遮蔽恶劣天气的环绕长廊。入口经由一个温室,作为一扇通向外面世界的窗。这条小路有屋顶遮蔽,通过温室可以看到风景,提供了与外部世界连接的方式。这是一个单层120 m²的房子,有种植屋顶。它受益于与家庭环境相关的最新自动化技术(家庭人体工程学、防摔系统等)。
该远程医疗设备与邻近的综合诊所的老年病学单元相连,避免了大量的医院就诊。住宅内还有一个23㎡的卧室适合工作的人居住。这样,就可以在那些根本不可能相遇的人们之间建立社会关系。很容易想象他们每天都能提供大量的服务,他们可以分享的时刻,这可能会导致一种新的合居的生活方式。
5+1住宅和香槟地区的粉笔一样白,外面覆盖着法国这个地区特有的瓷砖。建筑面积153平方米,是一个有孩子的家庭和一个年长的或工作的人居住的地方。通过倾斜的屋顶和整个体量上覆盖着珐琅瓷砖,这所房子显得格外突出。这是一个家庭住宅,通过整合一个工作室公寓,提供了居住在一起不同的方式生活,同时保持独立。



















翻译:如室网
版权声明:本文内容由用户自行发布上传或投稿由设计芝士代为发布,版权归原作者所有,设计芝士不拥有其著作权,亦不承担相应法律责任。如果您发现本站中有涉嫌抄袭或侵权的内容,请点此提交工单进行举报,一经查实,本站将立刻删除涉嫌侵权内容。

