就像房子Nº1,这所房子位于农村,郊区Curico面积的一半。这是为一位法官和她的两个女儿设计的。几个主题隐藏在对展馆的公式的明显陈腐的重复背后,这对现代主义经典来说是如此珍贵。首先,更私密的家庭生活空间在东翼通过走廊组织起来,由于走廊的大小,如果不是一个单独的房间的话,它已经成为一个前厅。
 
 
根据客户和女儿的要求,衣柜向这个房间倒过来,有时将服装变成一种常见的庆祝活动。因此有了宽大的凸窗和长凳,也就有了屋顶上连续不断的天窗。
 
 
两个浴室完成了元素的组合,这些元素将赋予这个空间足够的活动空间,使之成为住宅房间中的一个。相邻的卧室可以完全朝向屋顶露台,从而为布局增加了另一个宣传元素。主卧室加强了房间之间的相互作用,在查尔斯·摩尔(Charles Moore)自己的一些住宅中,引入了古老建筑的一个版本。
 
 
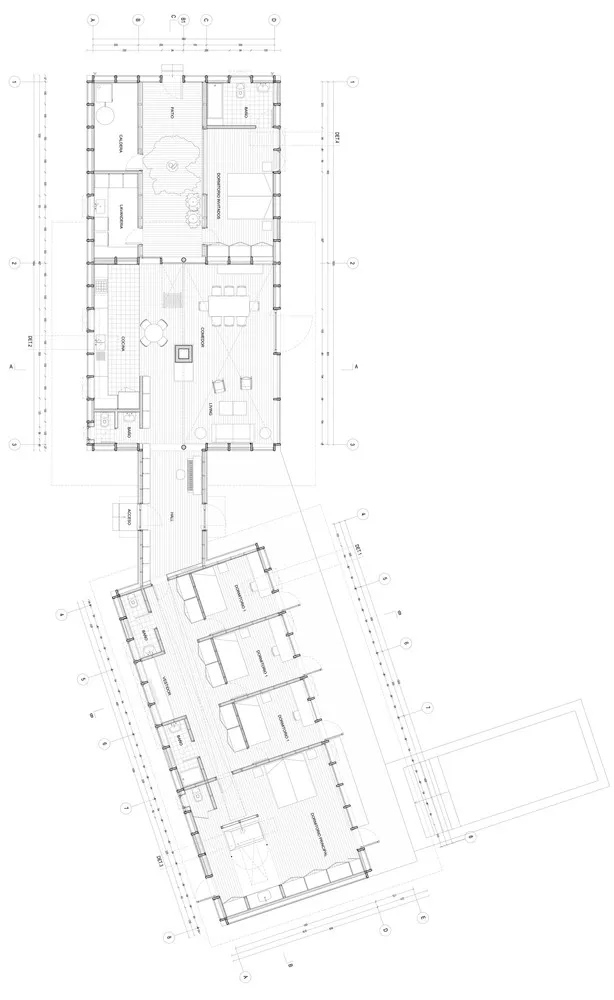
西馆是一个锻炼压缩和地理分布:客厅,餐厅,厨房,存储、洗衣和服务空间,也就是说两个相互依存的部分国内世界——铰接在一个封闭的庭院,坚持住的自治,尤其是在网站提供的背景下坚持。厨房、餐厅和客厅围绕着一个烟囱组织,烟囱同时是支撑金字塔屋顶的柱子——Kook bistro使用的结构的重复。天花板足够高,可以作为厨房顶部的空间——母亲/法官的工作场所。
 
 
在两个亭子之间,我们设计了一个小的关节器,在平面上看起来很笨拙,在挤压时更加亲切。至于屋顶,它们的外观反映了根本不同的问题,尽管它们都重现了相似的美学准则。在未来,我们希望增加第三个屋顶,使花园“房间”与泳池和花园活动相联系。我们决定采用预制构件,以方便施工过程,并为屋顶结构和立面的表达提供足够的规律性。








 
 
建筑设计:Amunátegui Valdés Architects 项目位置:Curicó, Chile 主创设计:Alejandro Valdés, Cristobal Amunátegui 设计团队:François Jullien, Sebastián Zarhi, Agustina Labarca 设计面积:365.0 m2 设计时间:2014 制造商:Arauco 施工方:JLP Construcciones 结构师:Juan Acevedo
版权声明:本文内容由用户自行发布上传或投稿由设计芝士代为发布,版权归原作者所有,设计芝士不拥有其著作权,亦不承担相应法律责任。如果您发现本站中有涉嫌抄袭或侵权的内容,请点此提交工单进行举报,一经查实,本站将立刻删除涉嫌侵权内容。
    

