ZGF Architects为Expensify科技公司设计了他们位于波特兰的总部。该公司成立于2008年,在波特兰以外的几个城市也设有办事处,包括旧金山和伦敦。
该公司于2017年将业务扩展到俄勒冈州波特兰,并决定租赁国家地标性建筑第一国民银行(First National Bank)作为他们的新总部,该银行始建于1916年,由Coolidge和Shattuck设计。经典的柱式和石头干挂定义了建筑的禁欲主义基调。
A swinging chaise and a hidden salon are among features in this tech company headquarters, housed inside a century-old bank in Portland, Oregon. For its Oregon location, the company decided to lease the National Landmark First National Bank, which dates to 1916 and was designed by Coolidge and Shattuck. Classical columns and stone cladding define the building’s stoic exterior.
对于内饰,ZGF与Expensify合作设计了一个反映公司标志精神“勇于自我开拓”的室内工作场所,致敬了该公司起初在咖啡厅办公,后来搬到旧金山一间公用座位办公室的创业历程。其中没有分配座位,员工可以在各种空间工作。
For the interior, ZGF worked with Expensify to create a space that reflects the company’s preference for a “choose-your-own-adventure” work environment, in which seating is not assigned and employees are able to work in a variety of spaces.
除了创造一个体现公司精神的办公室,设计团队还必须注意他们是在租用这个空间。“考虑到Expensify并不拥有该建筑,设计干预不仅要考虑到现有室内的持久宏伟,还要考虑有限租期的现实。”该公司说。因此,团队构想了一个开放的、动态的空间,将过去的遗迹与现代元素融合在一起。
In addition to creating an office that embodies the company spirit, the design team had to be mindful that they are renting the space. “Keeping in mind Expensify does not own the building, design interventions had to speak not only to the enduring grandeur of the existing interiors but also the realities of a finite lease term,” the firm said.The team therefore conceived an open, dynamic space that fuses remnants of the past with modern elements.
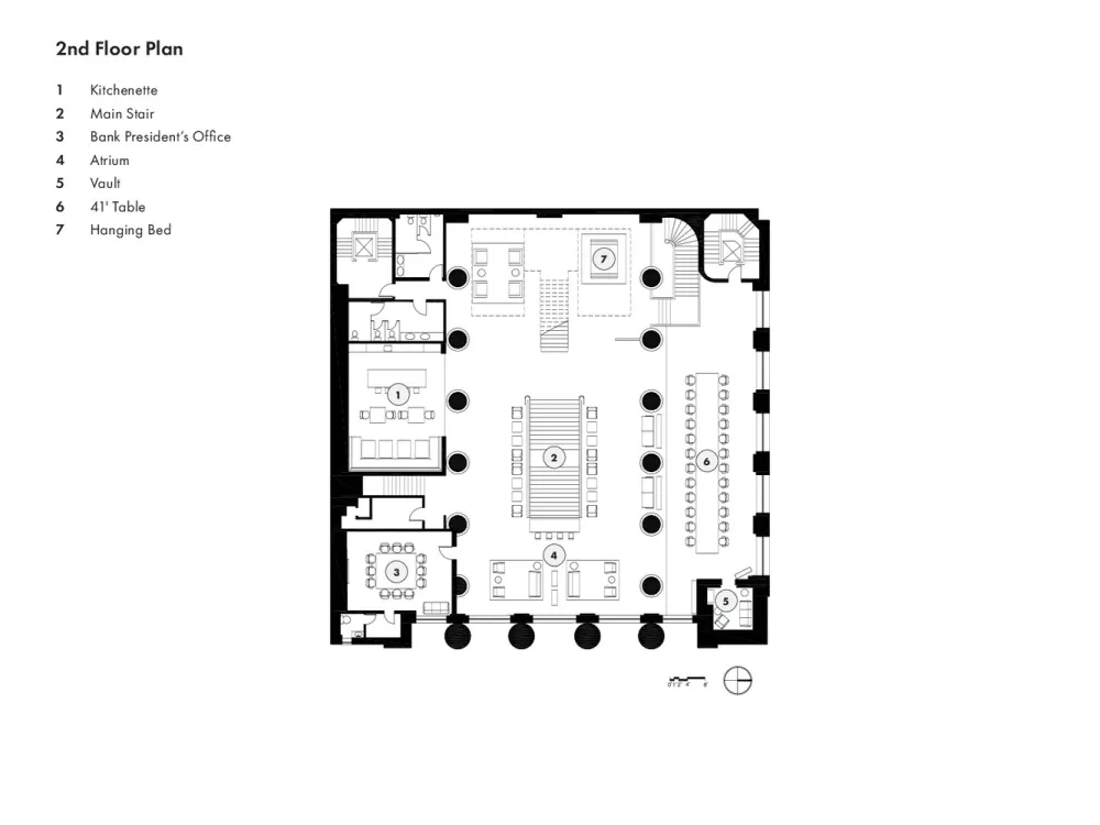
建筑的中心是一个巨大的天窗中庭,有着高耸的古典柱式、装饰艺术细节和巨大的银行拱顶。团队试图营造一种“让人想起中央车站或《了不起的盖茨比》的场景”的氛围。
At the centre of the building is a vast, skylit atrium with soaring classical columns, art-deco detailing and large bank vaults. The team sought to create an atmosphere that is “reminiscent of Grand Central Station or scenes from The Great Gatsby”.
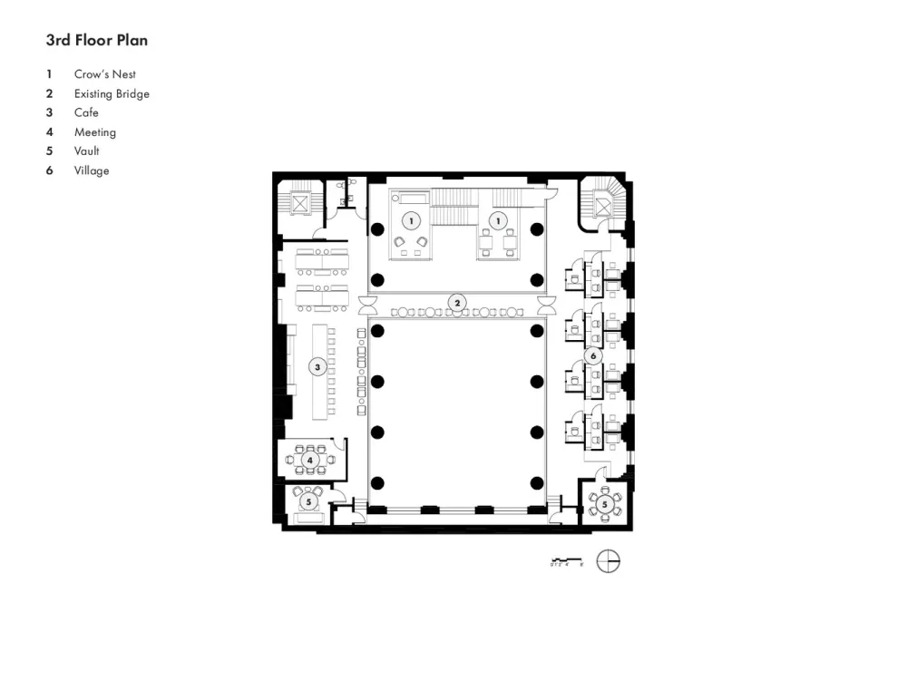
团队还插入了一系列连接不同楼层的楼梯。在一组楼梯的两侧是两个“浮动”玻璃盒子,里面装着会议室。盒子的比例和细节参考了建筑的历史特征。
The team inserted a series of staircases that connect the different levels. Flanking one set of stairs are two “floating” glazed boxes containing conference rooms. The boxes’ proportions and detailing are mean to reference the building’s historical character.
完整项目信息
项目名称:Expensify Offices
项目位置:美国波特兰
项目类型:办公空间/建筑改造
完成时间:2017
建筑面积:17312ft2(约1608㎡)
设计公司:ZGF Architects
摄影: Garrett Rowland
本文内容来源于:Loft中国















