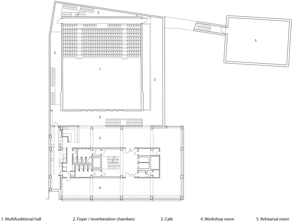
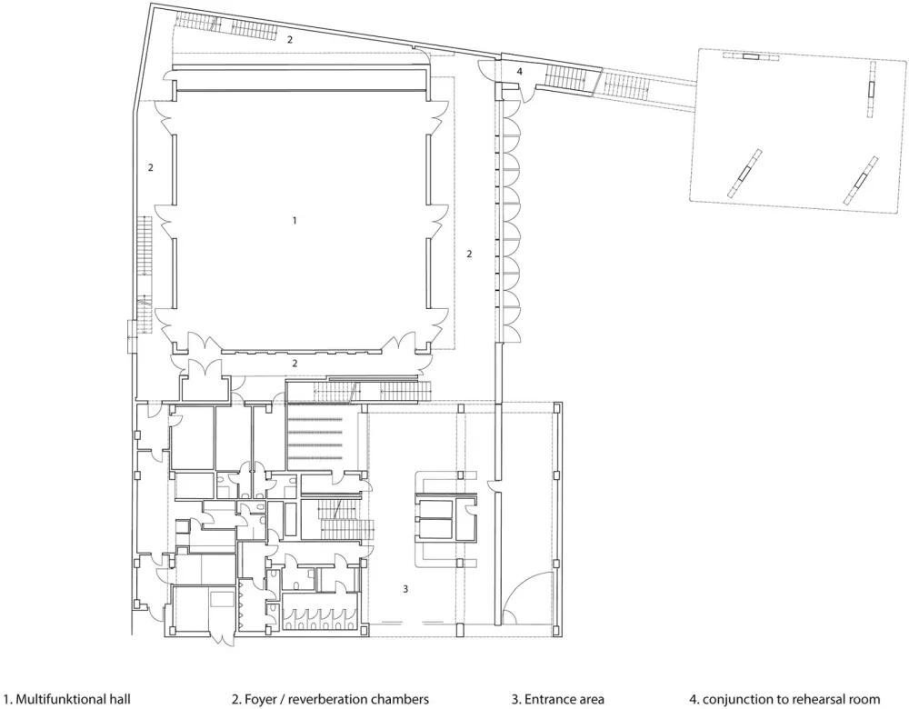
DOX+建筑群使捷克布拉格的DOX当代艺术中心得以扩张。原本以展览为主的建筑扩展为包含舞蹈、音乐、电影和建筑学校区域的建筑群。DOX+包含三栋建筑,建筑学院行政楼、音乐舞蹈实验厅和舞蹈排练室。从建筑的角度看,这是一个统一的集群。这一原则通过统一的灰色和各部分之间流畅的联系象征性地表达出来,这个综合体可以看做是一个整体的结构雕塑。
ARCHIP建筑学院由行政区、入口大厅、俱乐部和餐厅共同组成。这栋建筑来自于对1970年代原有建筑的更新改造,原有的内部核心类型布局和开放式布局被保留下来。内部翻新尊重原来建造时期使用材料(油毡、木饰门面、水磨石……)。实验音乐舞蹈厅和舞蹈排练室使用粗混凝土构造。钢筋混凝土建筑“穿”上了一层柔软的立面,使其免于过冷过热的温度变化。绝缘羊毛被柔性绝缘膜覆盖,以均匀网格形状锚固在混凝土上。立面吸收了从大厅溢出的残留噪音,减轻了住宅庭院的噪音负担。由于这种图案形状,这两个大厅让人联想到两个大沙发。选择这种软垫式的家具图案是因为它可以有效地沿着织物表面分布拉伸力并且它的延伸对结构性能没有负面影响。因此,塑料薄膜在极端严寒的天气中不会因收缩而撕裂,并且当阳光照射表面温度升高时,也不会失去张力。
多功能厅音响效果多变,像乐器一样可以根据具体表演需要进行调整。天花板下的三面可旋转面板和厅室就是这个用途。三角面板表面可以吸收、扩散和反射声音,并且可以通过旋转来改变天花板的声学特性从而改变整个大厅的声学效果。为了扩大衰减效果,主厅被一圈厅室包围,在特殊表演情况下,这些厅室可以作为衰减室。在主厅体量中增加这些区域使得衰减效果显著增强,尤其是较低频率的声音。方形的平面布置意味着墙壁不需要覆盖隔音板。多功能厅可以容纳550名客人,并且很快因其音响效果而闻名。目前它也用作参考录音棚。大厅的技术设备包括可伸缩式观众区,升降幕布舞台,激光投影仪等设备。

大厅屋顶是一片草地,用于休闲、户外设施或作为室外表演场地。听众席上方有一座吊桥供杂技舞蹈使用。舞蹈排练室平面尺度与主厅舞台相同,在内庭院里立在对角柱上“舞蹈”。这些柱子的形状不是随机的,它避免了干扰交通流线和在地板下安装技术设施。























▼模型
▼轴测
▼立面构造细部
▼一层平面
▼首层平面
▼场地平面图
▼草图
▼标准层平面
▼声学分析
▼剖面
设计公司:Petr Hajek Architekti 位置:捷克 类型:建筑 材料:木材 钢 混凝土 羊毛 纤维/塑料 标签: Prague 布拉格
版权声明:本文内容由用户自行发布上传或投稿由设计芝士代为发布,版权归原作者所有,设计芝士不拥有其著作权,亦不承担相应法律责任。如果您发现本站中有涉嫌抄袭或侵权的内容,请点此提交工单进行举报,一经查实,本站将立刻删除涉嫌侵权内容。


大气