美国运动时尚品牌STANCE以其不寻常线的品牌宣言为特色,旨在打造人们日常生活中最常见的物品——袜子excelsior。斯坦德的朋克与诗人文化吸引了大量的体育明星和时尚界的领军人物,其主要合作伙伴包括NBA、MLB(美国职业棒球大联盟)、NCAA(全美大学生体育协会)和迪斯尼。
 
 
新未来针具智能工厂位于浙江省海宁市经济开发区,于2018年10月12日竣工。占地26800平方米的现代化工厂是全球唯一的立姿专业生产基地,将辐射从袜子到各类运动相关产品。根据生产进度和物流需求,设计有一个独特的方案——它也是一个艺术画廊。
 
 
部分南立面,组织疏散楼梯、走道等辅助流通于车间功能街区外。由AZL建筑事务所提供的南立面部分,组织了辅助循环,如疏散楼梯和车间功能街区外的走廊。图片由AZL建筑事务所提供
泰勒希望智能工厂不仅仅是一个生产基地,还能配备与品牌灵感相匹配的建筑概念——不寻常的线索。他想象着一个富有创造力和艺术感的工厂,有着深深的归属感和自豪感。公司拥有大量的艺术品,丰富的运动场地和户外花园,为员工提供了充足的日常活动和体验空间。思腾思首席技术官阿维·科恩(Avi Cohen)是袜子领域的资深专家,非常注重技术细节。从一开始,Avi就有丰富的工艺流程和生产行业经验,明确了设备布局、空间尺度等具体设计条件。
 
 
设计理念及策略
楼梯的设计灵感来自中国甘肃麦积山石窟,始建于公元384-487年,蓬皮杜中心于1977年在巴黎完成。
 
 
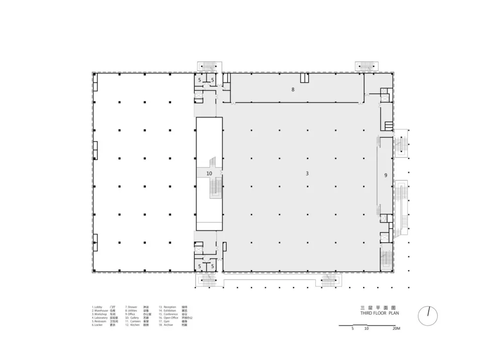
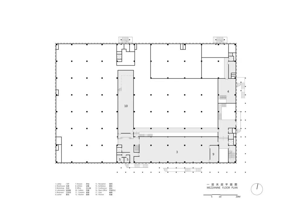
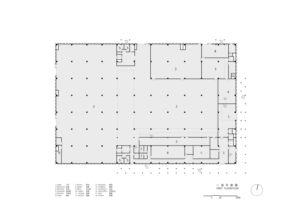
未来的缝合将在未来三年内增加500台袜机,每年生产6000万双袜子。企业的快速发展带来的变化空间需求和功能块的调整,这意味着组织疏散楼梯和走廊等辅助发行量在车间外的功能块,以确保生产车间的完整性,为品牌的进一步发展提供灵活的空间。走廊和楼梯成为工人们临时的户外活动场所。
 
 
建筑的东立面和南立面具有独特的室外楼梯和走廊循环系统。工厂内部空间有一个与制造过程相对应的特殊的参观循环,它独立于大堂运行,连接每一层的生产车间,展示从原材料储存到包装完成的现代制造和物流流程。参观流通停留在中央工厂的三层楼高的立场画廊一段时间,最后到达篮球场和屋顶花园。生产车间与公共艺术空间的有机结合,强调品牌推广的立场,欢迎大量的参观者。
 
 
 
 
 
 
 
 
 
 
 
 
 
 
 
 
 
 
 
 
 
 
 
 
 
 
 
 
 
 
 
 
 
 
 
 

 
 
 
 
 
 
 
 
 
 
 
 
 
 
 
 
 
 
 
 
 
 
 
 
 
 
 
 
 
 
位置:中国浙江省海宁市
建筑设计:刘君明,花瑞景室内设计岳杜,海怡马,平柳,季丽,文建朱,思瑞普
景观设计陈俊军,赵敏,江志源
施工图设计:合作者浙江华恒建筑设计有限公司
面积: 26800.0 m2
项目年份:2018
摄影师: Li Yao


