原始的安全感与金库容器:炼金术酒吧位于杭州黄龙体育中心附近的跑马场路,经营了四年之久,原本是一个美式风格的酒吧,过往的人们早已习惯了沉稳的空间体验。
炼金术是——早期科学的前身,是中世纪化学哲学,丰富的本意反而变成酒吧主题确立的难题。“原始的安全感”成为了酒吧和炼金术之间的灵感桥梁。“金库”因此作为容器,介入了这场空间的游戏中。与吧台台面一指相扣的厨房,扮演着更像室外建筑外立面的外立面,为余后的空间体验定下了基调。
狭长的通道让吧台、酒墙、沙发区紧密贴合,人与人的距离在空间的压缩中产生了期待已久的温度。
错落拼合的石材墙面为空间提供安全性,十指卷缩的酒墙设计轻易化解了老式居民楼复杂的梁柱结构,酒墙对面的镜子、壁灯为空间制造了横向的延伸。
上下楼深处狭小的空间中探寻出来的包厢设计,为空间保留了待被发现的秘密。
如同依依不舍的面对离别一般的空间设计,在进入时,就预示着不愿轻易离开的情绪一样,设计的价值就在于播撒了这颗种子,在过往的来客心中发芽延续。














立面

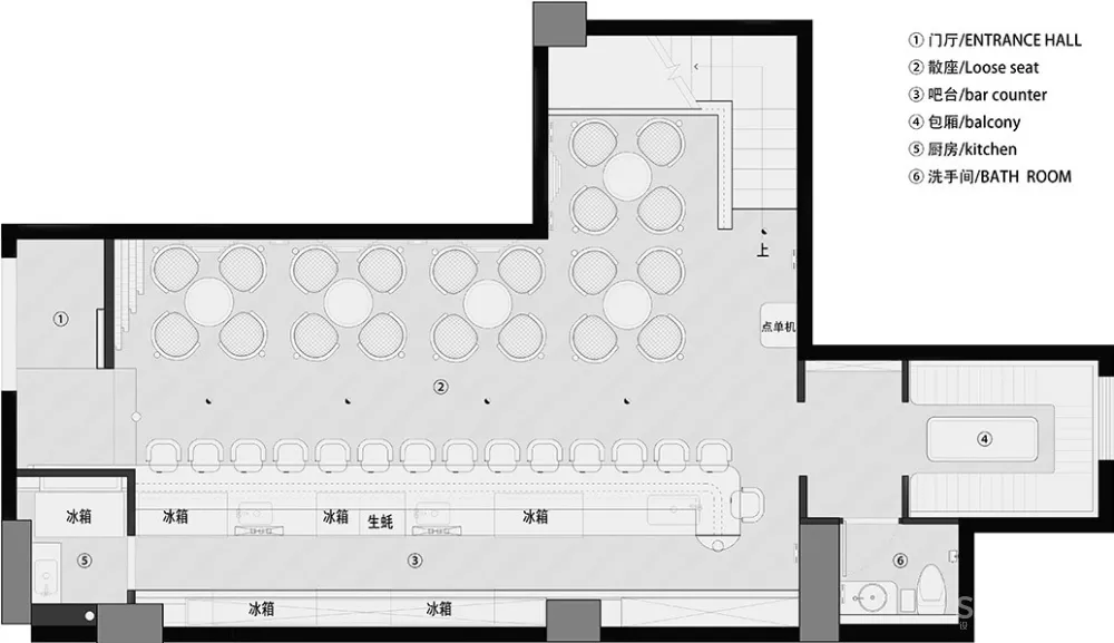
一层平面
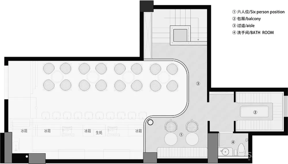
二层平面


项目名称:炼金术ALCHEMY 设计方:PIG DESIGN 皮爱吉设计 联系邮箱:lwq.4@163.com 项目设计 & 完成年份:2018.11月 主创:李文强 设计团队:朱义云 汪耀 陈芸芸 施工:杭州典昌装饰设计工程有限公司 灯光:杭州力诚照明工程有限公司 Logo:杭州放飞云朵设计有限公司 家具制作:杭州奥誉家私有限公司 文案:李文强 家具设计:李文强 灯具设计:李文强 项目地址:杭州市跑马场路7号 建筑面积:90平方 摄影版权:王飞 合作方:杭州典昌装饰工程有限公司 客户:炼金术
版权声明:本文内容由用户自行发布上传或投稿由设计芝士代为发布,版权归原作者所有,设计芝士不拥有其著作权,亦不承担相应法律责任。如果您发现本站中有涉嫌抄袭或侵权的内容,请点此提交工单进行举报,一经查实,本站将立刻删除涉嫌侵权内容。

