安静朴质:时代地产佛山狮山会所是一个从场地到建筑、景观,再延续到室内设计的极简作品。作为一个小型精品会所,强调建筑与自然的融合及空间的流动性,极致、安静、朴质、舒适,温馨又不失创新的设计感,为都市精英阶层的休闲会客首选。







整个项目以静谧为设计精神,勾勒建筑的静、形、色,极简的设计中寻找人与自然的动静交互及情感交流,渲染静谧唯美的极简意境,朴质的材质,温润而富有艺术质感,于开放的空间设计中,寄托当代艺术的前沿思潮。



光,是最神圣的设计。有了光,建筑才会有了灵魂,朴质肌理的表现也更纯粹。 在外立面的设计上,设计师格外注重立面构成及线条的关系,倾斜的光影,与倾斜的立面细部,形成了一纵一横的关系,如此巧妙的结构关系与温润柔和的艺术光感,让人想起了建筑大师路易斯·康关于“静谧与光明”的建筑哲学。 建筑设计的目的是通过灵感传达艺术之美,让不可度量的静谧走向可度量的光明,让设计达至浑然天成的完美境界。

室外前广场设计了一个平静的水景,借景成画,自然而然,成为了一个可供观赏、纳凉和休憩的空间。 从建筑到景观,再到室内的一体化极简设计,对建筑的形态与空间关系进行了有序而灵活的梳理,让空间的功能与气质浑然一体,呈现出静谧的灵感之光。


在场景体验的营造上,设计师着重表达了与自然和谐共生的观念。充满仪式感的框景角度与院落轴线,无不提醒使用者思考“人与自然”的帷幕关系。自然、在地的材料使用,木、石、铁、木色涂料及玻璃的糅合,也隐喻表达一种自然建造的乡野意境。



以简约的现代主义为主线,空简序列排列精巧,上错下合;墙身附着温润的质感,纯粹而自然,突出品质,象征自然,给人以简单而富有质量的空简感受。












空间设计除了考虑使用功能之外,更加入了光的考量,昼夜晨昏,阴晴雨雪,每一刻都有不同的光的变化。空间的转折迂回,起承转合,每一处都会有不期而遇的光影。



声、光、色等元素的完美融合,无不传达出空简的设计语境,看似无序实则有秩,立柱拔地而起,速同结横一起纳入表现元素,毫不隐晦,相得益彰,最终,空简序列得以自现。 远见得大,近看现小。点缀以佗寂之物,其形自现,建筑与室内完美融合。


极简,是当代最纯粹的建筑精神,富有灵感,艺术而静谧,朴质而低调,给人无限的幻想。 矩阵纵横通过建筑与自然的光合作用,寻找建筑设计的永恒与诗意,同时又融入自然的乡野,为时代地产佛山狮山会所融入了朴质奢华的艺术气息,创造了建筑精神的艺术升华。









极简,于此,以光为介质,传达建筑者之精神与灵魂,治愈心灵,让建筑之光得以完美呈现,这也是矩阵纵横一直所追求的设计本真。 设计效果图▽



建筑结构分解图▽
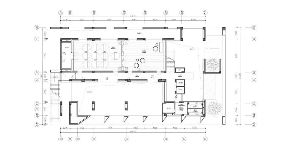
一层平面图▽
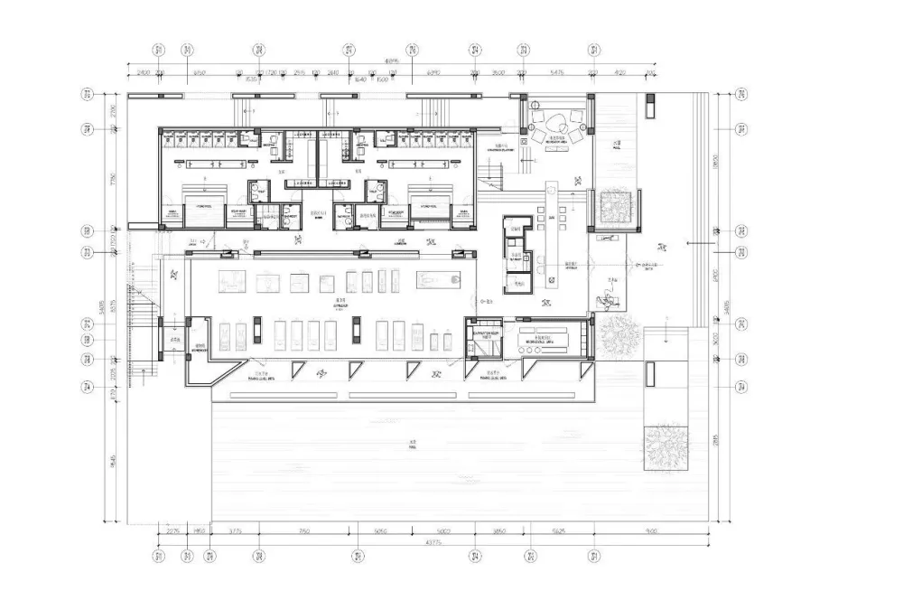
二层平面图▽
矩阵纵横(matrix design)成立于2010年,是一个以提供高端设计服务为目的的设计品牌,团队主创人员皆有多年服务于国内知名房产开发商的工作经验,并与客户建立了长期稳定、相互信任、共同发展的合作伙伴关系。 无规矩不成方圆,此为矩; 落笔成点,点通过‘矩’布成平面的‘阵’,‘阵’通过‘纵横’发展成为立体。从一点至立体,从一维空间至三维空间,由此,纵横天下。 2018年,矩阵纵横已成长为一个拥有纵横中国一二三线城市地产设计和项目管理经验、同时具备开阔国际视野的160人规模的设计机构品牌,除提供硬软装室内一体化设计以外,矩阵纵横也向着地产类建筑与景观设计、家居产品设计生产、新材料研发与生产制造、设计专案落地拍摄宣传推广服务等产业纵向一体化发展。
项目名称:时代地产佛山狮山会所 建筑设计:矩阵纵横Matrix Design 室内设计:矩阵纵横Matrix Design 软装设计及执行:矩阵鸣翠 项目类型:会所 设计面积:1000m² 项目摄影:释象万合 主要材料:白喜雀大理石、灰色洞石、卡拉拉白大理石、金摩卡大理石、木饰面、木纹铝板、黑色拉丝不锈钢
版权声明:本文内容由用户自行发布上传或投稿由设计芝士代为发布,版权归原作者所有,设计芝士不拥有其著作权,亦不承担相应法律责任。如果您发现本站中有涉嫌抄袭或侵权的内容,请点此提交工单进行举报,一经查实,本站将立刻删除涉嫌侵权内容。

