架构师提供的文本描述。这一项目来自墨西哥整个犹太社区在安全和公共场合保持和保存其历史的必要性。这座新建筑建在墨西哥城复兴的科洛尼亚罗姆人(Colonia)现有的罗德夫·塞德(Rodfe Sedek)犹太教堂旁边,是一小块地方,是通往旧城的通道。这座建筑有一个新的用途,可以作为一个博物馆和一个文件库,展示有关犹太文化的相关信息,尤其是在墨西哥。
Text description provided by the architects. This project comes from the necessity of the whole of the Jewish Community in Mexico to keep and pserve its history in a safe and public place. Built on a small area beside the existing 1930´s Rodfe Sedek Synagogue in the resurgent Colonia Roma in Mexico City, the new building serves as the pathway to enter the old, which gains a new purpose functioning as a museum and a library of documents that show relevant information about the Jewish culture, especially in Mexico.
Text description provided by the architects. This project comes from the necessity of the whole of the Jewish Community in Mexico to keep and pserve its history in a safe and public place. Built on a small area beside the existing 1930´s Rodfe Sedek Synagogue in the resurgent Colonia Roma in Mexico City, the new building serves as the pathway to enter the old, which gains a new purpose functioning as a museum and a library of documents that show relevant information about the Jewish culture, especially in Mexico.
© LGM Studio – Luis Gallardo
LGM工作室-Luis Gallardo
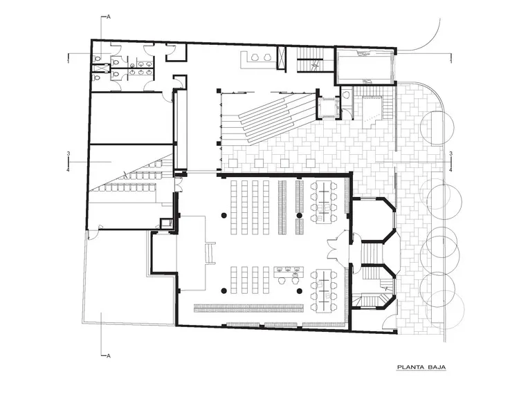
人行道上的任何行人都会不经意地看到这座新大楼的混凝土门面,而是把目光集中在新广场对面的犹太教堂(主面和侧面)的清晰视野上。新广场将建筑物和功能都分隔开来,作为一个主要大厅,每个人都可以进入。
Any pedestrian on the sidewalk takes a careless look at the sober concrete façade of the new building and instead focuses on the clear view of the Synagogue´s façades (both main and side) through the new plaza, which separates both buildings and functions as a main lobby where the entrance is accessible for everyone.
Any pedestrian on the sidewalk takes a careless look at the sober concrete façade of the new building and instead focuses on the clear view of the Synagogue´s façades (both main and side) through the new plaza, which separates both buildings and functions as a main lobby where the entrance is accessible for everyone.
© LGM Studio – Luis Gallardo
LGM工作室-Luis Gallardo
© LGM Studio – Luis Gallardo
LGM工作室-Luis Gallardo
在这一点上,游客可能会注意到新的玻璃建筑反射旧,因为他们两个站在同一高度的广场两侧。在里面,新的建筑与犹太教堂一样,尊重同一楼层,只在一点上干净地连接自己。这个链接是突出的屋顶比例差异,这使任何人敬畏修复后的大厅内的犹太教堂。
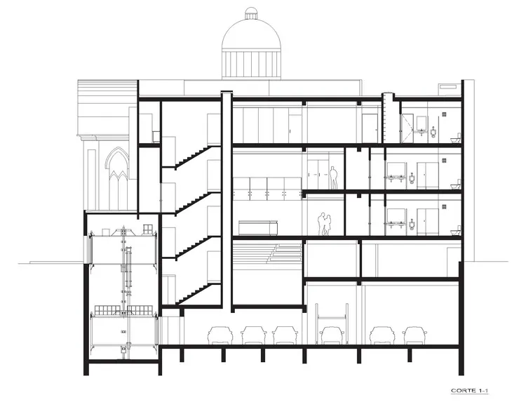
At this point the visitor may notice the new glass building reflecting the old, as both of them stand with the same height on either side of the plaza. Inside, the new building equals itself to the Synagogue by respecting the same floor level, and connecting itself cleanly on one point only. This link is highlighted by the roofing scale difference which makes anybody awe inside the restored main hall of the Synagogue.
At this point the visitor may notice the new glass building reflecting the old, as both of them stand with the same height on either side of the plaza. Inside, the new building equals itself to the Synagogue by respecting the same floor level, and connecting itself cleanly on one point only. This link is highlighted by the roofing scale difference which makes anybody awe inside the restored main hall of the Synagogue.
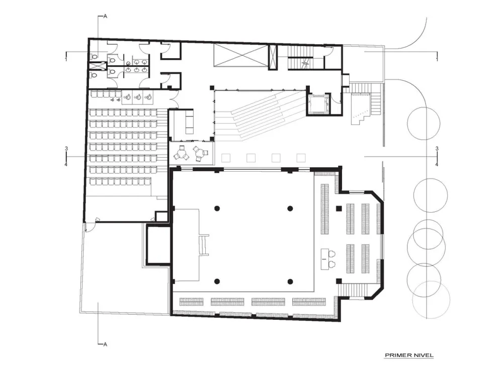
Ground floor plan
Section 1-1
[地名] [美国] 塞克申 1-1
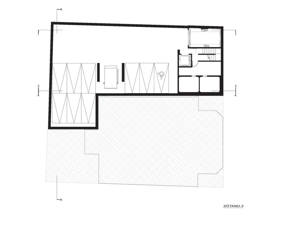
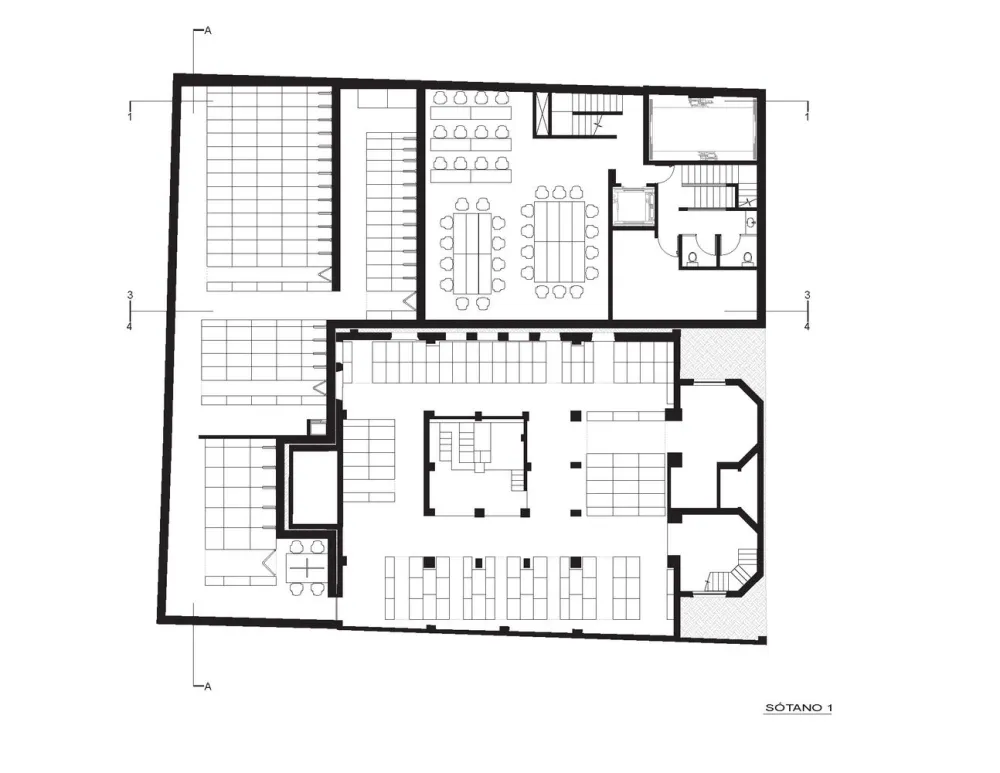
档案、早在17世纪的书籍、旧护照和移民卡、报纸和杂志、照片和视频、重要的社区文件和信件等等,都可供调查人员在墨西哥犹太社区首批宗教场所之一的大吊灯和彩色玻璃窗下进行研究。每一种材料都安全地存放在犹太教堂现有的半地下室的移动式架子中,这也延伸到新的建筑中,这两个空间都受到特殊气候的控制,以保存文件。
Archives, books as old as 17th century, old passports and immigration cards, newspapers and magazines, photographs and videos, important community documents and letters, and more, can be found for investigators to study under the great chandeliers and stained glass windows of one of the first religious sites for the Jewish Community in Mexico. Every material is safe kept in mobile shelving in the existing semi-basement of the Synagogue which also extends into the new building, both spaces controlled with special climate for the pservation of the documents.
Archives, books as old as 17th century, old passports and immigration cards, newspapers and magazines, photographs and videos, important community documents and letters, and more, can be found for investigators to study under the great chandeliers and stained glass windows of one of the first religious sites for the Jewish Community in Mexico. Every material is safe kept in mobile shelving in the existing semi-basement of the Synagogue which also extends into the new building, both spaces controlled with special climate for the pservation of the documents.
© LGM Studio – Luis Gallardo
LGM工作室-Luis Gallardo
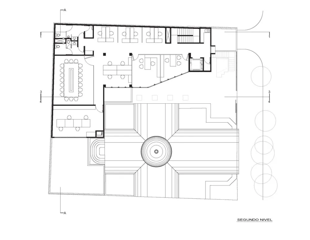
但建筑计划超出了档案范围,目的是通过为85人创建一个学习中心,让这个复杂的活动得以生存和运作,其中包括一个小的阶梯卡。此外,可以提供类的多功能空间,可以保持圆桌会议的讨论,或者甚至可以呈现小的展览。在新大楼的最高水平上,行政办公室通过它的玻璃FA1ADE忽略了犹太教堂,而恢复车间通过一本书电梯将自己与档案联系起来,该电梯一路下降到半地下室。
But the architectural program goes beyond the archives, aiming for the complex to be alive and functioning all year round by creating a learning center with a conference auditorium for 85 people which includes a small terraced café. Also a multifunction space where classes can be imparted, discussions on a round table can be held, or even a small exhibition can be psented. On the highest level of the new building the administrative offices overlook the Synagogue through its glass façade, and the restoration workshop connects itself with the archive through a book elevator that descends all the way to the semi-basement.
But the architectural program goes beyond the archives, aiming for the complex to be alive and functioning all year round by creating a learning center with a conference auditorium for 85 people which includes a small terraced café. Also a multifunction space where classes can be imparted, discussions on a round table can be held, or even a small exhibition can be psented. On the highest level of the new building the administrative offices overlook the Synagogue through its glass façade, and the restoration workshop connects itself with the archive through a book elevator that descends all the way to the semi-basement.
© LGM Studio – Luis Gallardo
LGM工作室-Luis Gallardo
如果没有ComunedMaguenDavid和CDIJUM董事会的成员以及其他人的帮助,这个项目的建设是不可能的。西尔维娅Hamui Sutton是真正的火花,使我们走上这段旅程。
The construction of this project would not have been possible without the help from Comunidad Maguen David and the members of the CDIJUM´s board, among others, nevertheless the vision of Phd. Silvia Hamui Sutton is the true spark that enabled us to take this journey.
The construction of this project would not have been possible without the help from Comunidad Maguen David and the members of the CDIJUM´s board, among others, nevertheless the vision of Phd. Silvia Hamui Sutton is the true spark that enabled us to take this journey.
© LGM Studio – Luis Gallardo
LGM工作室-Luis Gallardo

