位于越南东南沿海的海滨城市芽庄,这个度假别墅有一个非常优越的位置。500平方米的基地被雕刻成小山,享受着独特的海景,可以俯瞰海湾和山脉的背景。我们的目标是在概念的早期找到解决方案,优化这种观景体验,并在未来管理该居住区的高建筑密度。
整体设计强调建筑造型的简单性、原材料和自然材料的使用以及一些创新的室内功能。此外,主要建筑的野兽派影响和精心制作的内部之间的对比是强烈的。当参观者进入博物馆时,他们的体验是真实的。
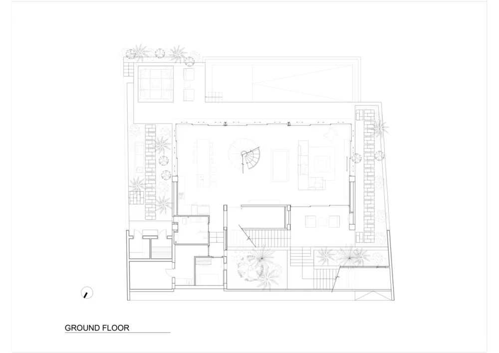
该物业可以从场地上部的后街进入。由粗糙雕刻的石头组成的墙壁,参考了非常多岩石的直接环境,街道上的立面是完全不透明的。它确保了隐私,并从根本上将别墅朝向大海。花岗岩砌块阵列上的阴影和灯光设置增加了戏剧效果,并在街道上产生强烈的印象,无论是白天还是晚上。
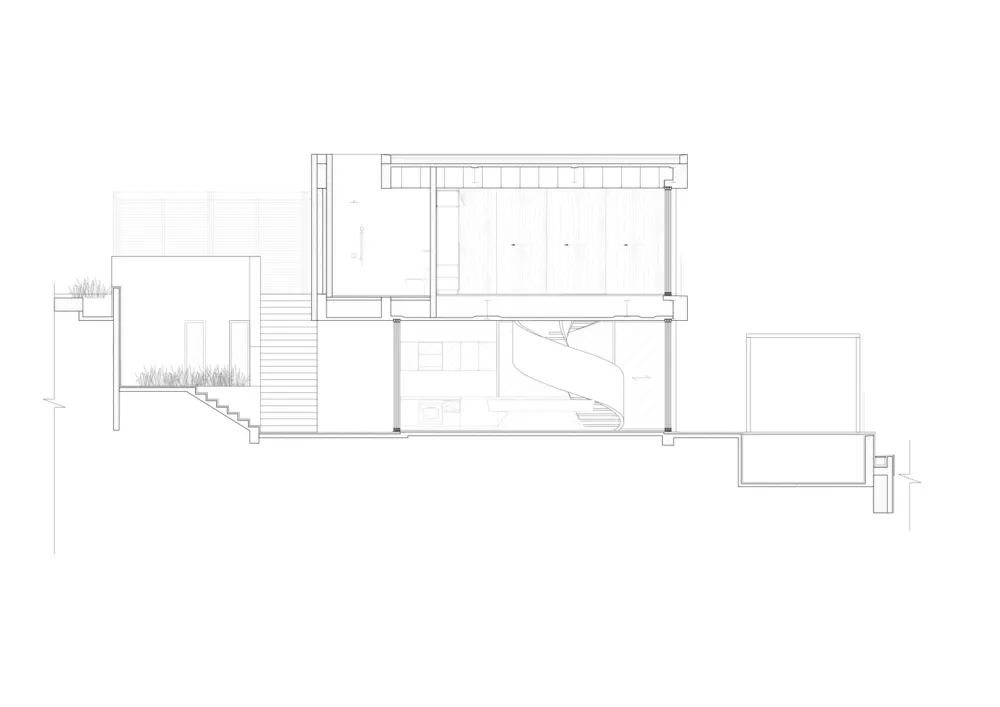
一段室外楼梯通向一楼。该空间是完全开放的,由于结构设计,已允许删除所有前柱,除了2个支持集成到windows框架。厨房和技术空间被保留在后面,全景一览无余。
随着大窗户的打开,室内和室外都处于完美的空间连续性。Sala在一层被凹进来保持视野开阔,而无限的游泳池连接了天空和风景。
雕塑般的螺旋楼梯,位于中心位置,是室内设计的焦点,视觉上足够强大,与海景的自然吸引力做平衡。

根据个人和家庭的需要,一层完全可以通过移动滑动木墙来调节。从一个完全开放的空间到分割成多个组合的地板,最多有3个空调卧室,每个卧室都有敞向天空的浴室。这个有趣的系统是为了能够最大化视图和交互而实现的。涂油的木材是主要的材料,提供舒适和豪华的外观和感觉,相比之下,原始切割的石材浴室。
主卧室设计了可伸缩的电动玻璃凉廊。在延伸的位置,房子消失在后面,在星空下的“海景”观赏体验是完全的。

与简单的建筑形状形成对比,多重的美学效果和功能元素创造了一个强烈的印象,而别墅的第一个价值是美丽的风景,你可以从每个角落享受。



































地址:越南 项目年份:2018 摄影:Hiroyuki Oki
版权声明:本文内容由用户自行发布上传或投稿由设计芝士代为发布,版权归原作者所有,设计芝士不拥有其著作权,亦不承担相应法律责任。如果您发现本站中有涉嫌抄袭或侵权的内容,请点此提交工单进行举报,一经查实,本站将立刻删除涉嫌侵权内容。

