 
 
BAAO Architects
BAAO建筑事务所位于纽约,是一家屡获殊荣的多学科事务所,专注于探索空间和材料实践,以适应居民和建筑环境之间不断变化的关系。
BAAO Architects is an award-winning multidisciplinary practice based in New York with a focus on exploring spatial and material practices that adapt to the evolving relationships between inhabitants and the built environment.
 
 
 
 
这个项目是一对年轻夫妇的三层建筑,他们经常出差,想为他们的新家找到一个安静的避难所。
This project is a triplex for a young couple who travel extensively for business and wanted the feeling of a quiet sanctuary for their new home.
 
 
 
 
 
 
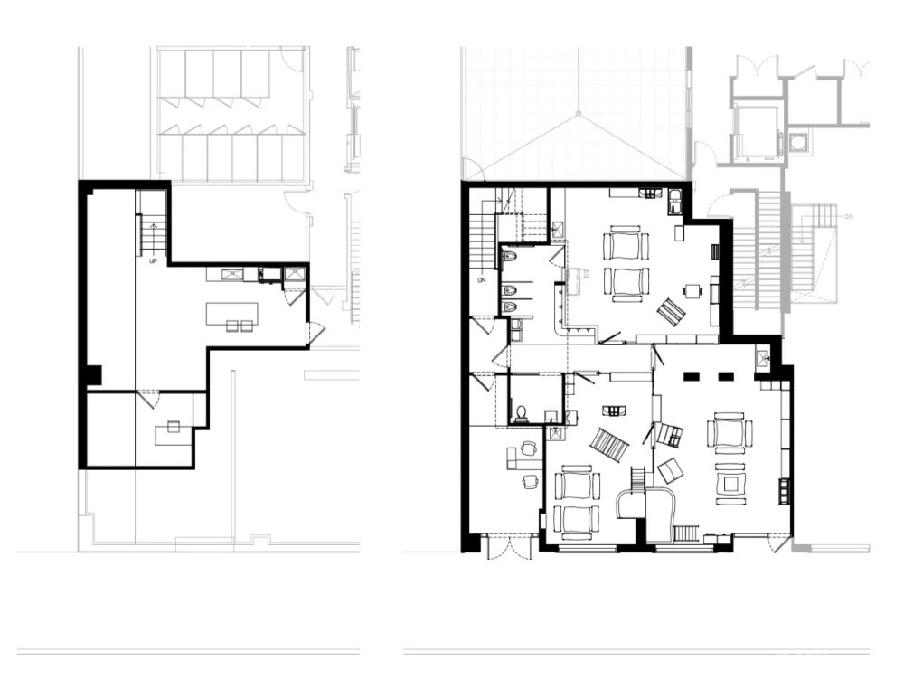
他们与BDDW合作,为整栋房子提供家具。现有的建筑是一个相对紧凑的盎格鲁-意式联排别墅,大约在1860年,增加了三层的扩展以扩大居住空间。
They partnered with BDDW to provide furnishings throughout the house. The existing building is a relatively compact Anglo-Italianate townhouse circa 1860, and a three-story extension was added to expand the living space.
 
 
 
 
 
 
这栋房子标志性的拱形门廊和前窗是大部分翻新空间细节设计的灵感来源。拱形开口连接了餐厅和门厅,以及通过管家的餐具室与厨房。
The house’s signature arched doorway and front window were the inspiration for much of the detailing for the renovated spaces. Arched openings connect the dining space to the foyer as well as to the kitchen through a butler’s pantry.
 
 
 
 
 
 
 
 
 
 
 
 
Mi Casita Preschool and Cultural Center
 
 
Mi Casita幼儿园和文化中心,由Barker Associates建筑事务所和4|Mativ设计工作室共同设计,位于布鲁克林一个新的多功能开发区内。
Mi Casita Preschool and Cultural Center, designed collaboratively by Barker Associates Architecture Office and 4|Mativ Design Studio is located in a new mixed-use development in Brooklyn.
 
 
 
 
 
 
该项目要求三间教室占据建筑一层15英尺天花板的大空间,较低的楼层用于支持编程。空间围绕一个l形的水槽组织,这个水槽成为一个社交聚会场所,也可以用作浴室的水槽。
The program called for three classrooms to occupy a large space with 15 ceilings on the ground floor of the building with a lower level for support programming. The space is organized around an L-shaped trough sink that becomes a social gathering spot and that also functions as a bathroom sink.
 
 
 
 
 
 
房间之间用家具分隔,以提供灵活性,这样空间可以为特殊活动而改变,包括由学校驻馆艺术家组织的表演。
Divisions between rooms are made with furniture to provide flexibility so that the space can be transformed for special events including performances organized by the schools artist-in-residence.
 
 
 
 
 
 
学校注重成为一个“远离家乡的家”,并从共存于布鲁克林的不同文化中学习,这使得设计师在空间设计中融入了与家和城市相关的图形元素。
The school’s focus on being a “home away from home” and learning from the different cultures that coexist in Brooklyn led the designers to incorporate graphic elements relating to home and city in the design of the space.
 
 
 
 


