PETSHOP公司的IT部门办公地点位于圣彼得堡Chkalovsky avenue上,是一座建于20世纪50 - 60年代的苏联工业建筑。山脊天花板和4米多高的混凝土柱,顶楼和巨大的窗户俯瞰彼得格勒一侧——这些都是现代动力公司创意部门的一个很好的空间介绍。
包豪斯美学(德绍高等学校,20世纪前三十年的建筑方向)已经成为风格的基础和灵感的主要来源。简洁的形式、功利主义的方法和功能主义的思想曾经在建筑界掀起了一场革命。现在我们把这种美学运用到室内设计中,但仅仅是它的装饰部分。现代纽约协同办公和办公空间的室内风格也对这种室内组合产生了很大影响。在纽约,工业空间的室内设计早已超越了“同一个阁楼”。
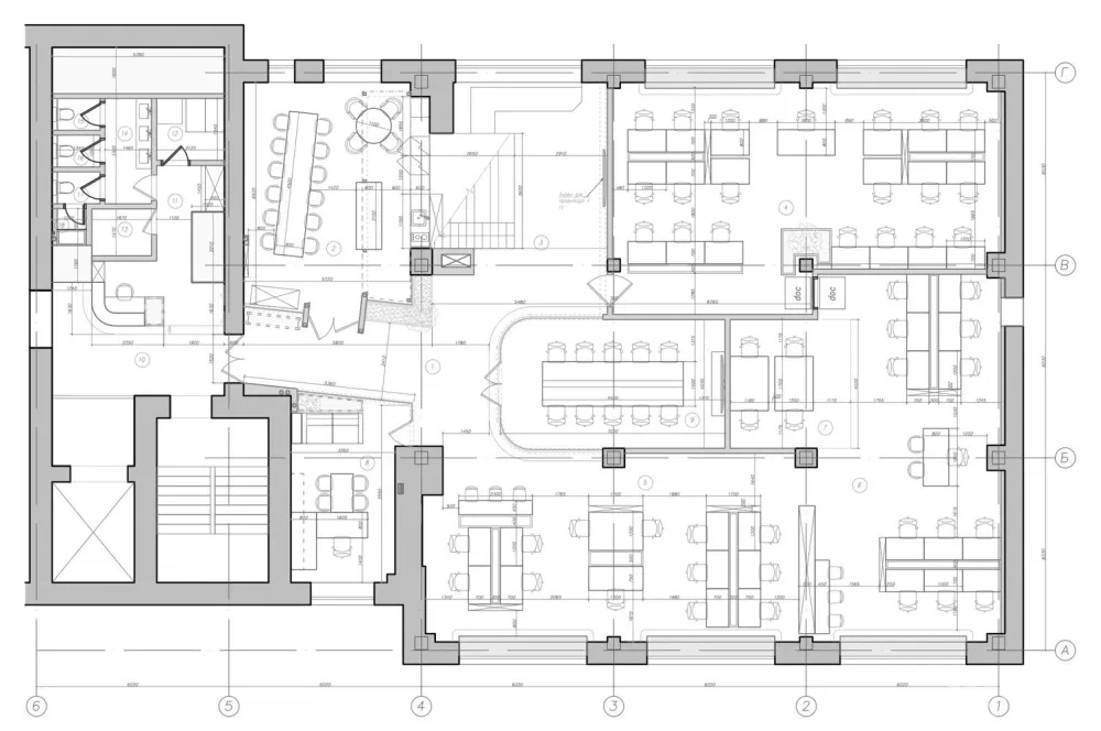
办公空间规划最具代表性的会议室已经成为主要的对象和重点,获得简洁的圆形式和“心”的中心位置,其他开放空间划分成两个“翅膀”——一个区域的平面设计师(20人)和IT专家区(30人)。这些是干净、宽敞的工作空间,没有过多的物品:只有秩序、自由和大量的植物。植物学的,有点南方的动机-一个重要的组成部分,这个内部。植物支撑着室内灰蒙蒙的色调,就像一张老照片。
第二个“关键”物体,圆形剧场,位于会议室附近。它是一个通用的演讲厅,适合短会议,空闲时间,活动和其他。它是“重心”,是所有力量和聚集的地方。这个地方体现的是一种企业精神。它的梯子(带有客人座位)向上引导进入夹层——二层可以工作、休息、玩PS……

在夹层下面有一个厨房和一个员工午餐区,有一个大的单人桌和一个做饭区:在这里可以与同事共进晚餐或举行自助餐。浴室支持一个稍微引人注目的主题,南美洲的阳光和丛林:墙壁的赤陶土颜色,吊灯风扇和播放列表与luk thung和bossa nova。这个美丽而智能的空间,“不像办公室里的项目”,旨在给有创意的员工提供舒适和适当的氛围,让他们能够找到灵感、和谐和新的惊人的想法。

























地址:俄罗斯 年份:2018 摄影:Sergey Melnikov
版权声明:本文内容由用户自行发布上传或投稿由设计芝士代为发布,版权归原作者所有,设计芝士不拥有其著作权,亦不承担相应法律责任。如果您发现本站中有涉嫌抄袭或侵权的内容,请点此提交工单进行举报,一经查实,本站将立刻删除涉嫌侵权内容。

