感谢来自 浙江大学建筑设计研究院 的幼儿园项目案例分享:
导语 Introducer
湖州南浔幼儿园位于南浔城市新区核心区块之中,西临南林路、南临中心街,东侧北侧为规划河道和城市绿化带,北侧为南浔博物馆项目,东北侧为市民广场,东侧为规划的生态儿童公园。设计师以威廉·黑兹利特的“去想、去感觉、去做自己感兴趣的任何事的自由,完全的自由”为设计理念,建设了一座大、中、小班各8班,可容纳约720名幼儿的幼儿园。
Huzhou Nanxun Kindergarten is located in the core area of Nanxun City New Area. It faces Nanlin Road in the West and Central Street in the south. To the east, it is planned river course and urban green belt in the north, Nanxun Museum project in the north, citizen square in the northeast, and ecological children park in the east. With William Hezlitt’s design concept of “freedom to think, feel and do whatever you are interested in, complete freedom”, the designer has built a kindergarten with 8 classes of large, medium and small classes, which can accommodate about 720 children.


景观与建筑的相互渗透——第一活动空间 Interpenetration of Landscape and Architecture: The First Activity Space
建筑总体呈变异的环型,呼应基地的景观格局,建筑整体西南高,东北低,形成起伏的建筑形态,内庭院向东北侧打开,渗透河道和公园的景观。这样的布局和形态呼应城市设计的空间格局特点,向外塑造了相对硬朗的城市界面,向内营造舒适安全的自由环形活动空间。幼儿接送场地结合东侧生态公园统一设计,通过步行桥与基地内主入口广场相连,为幼儿园入口空间增加趣味性。
Architecture generally presents a variable ring pattern, which corresponds to the landscape pattern of the base. The whole building is high in the southwest and low in the northeast, forming an undulating architectural form. The inner courtyard opens to the northeast and permeates the landscape of rivers and parks. Such layout and form echoes the characteristics of the spatial pattern of urban design, shaping a relatively tough urban interface outward, and creating a comfortable and safe free circular activity space inward. The children’s pick-up and delivery site is integrated with the unified design of the eastern ecological park and connected with the main entrance square in the base through the pedestrian bridge, which adds interest to the entrance space of kindergartens.


城市新区中的趣味庭院——第二活动空间 Interesting Courtyard in New Urban Area:The Second Activity Space
内庭院作为整个建筑的核心,连接普通教室、各专业教室、办公楼、门厅、多功能教室和食堂。庭院内部设置不同的植被,景观,游戏场地,塑胶跑道等,形成多元化的互动空间,为幼儿园内的大型交流活动提供了场所。设计者希望儿童能够尽可能的交流玩耍,同时也希望老师在带领儿童体验生活的时候没有安全死角,场地内部的主要视野范围内避免了高大的乔木,同时结合地形做了许多缓坡,丰富的曲面地形给幼儿园小朋友带来不同的娱乐体验。
As the core of the whole building, the inner courtyard connects ordinary classrooms, professional classrooms, office buildings, lobbies, multi-functional classrooms and canteens. The courtyard has different vegetation, landscape, game venues, plastic runway and so on, which forms a diversified interactive space and provides a place for large-scale communication activities in kindergartens. Designers hope that children can communicate and play as much as possible, but also hope that teachers can lead children to experience life without safety corner, the main field of vision within the venue to avoid tall trees, while combining with the terrain made many gentle slopes, rich surface topography to kindergarten children bring different entertainment experience.


如果说第一空间是建筑环境对于建筑的渗透,那么第二空间则是建筑设计自身营造的内聚空间,整个院落空间将专业教室,公共活动空间和室外庭院完美地结合为一体。
If the first space is the infiltration of the architectural environment into the building, the second space is the cohesive space created by the architectural design itself. The whole courtyard space integrates the professional classroom, public activity space and outdoor courtyard perfectly.




起伏的绿色屋顶——第三活动空间 The undulating green roof:The Third Activity Space
起伏的屋顶活动平台有极佳的景观视野,在保证安全的前提下,结合屋顶花园打造空中的游乐活动场地,充分发挥地块沿河毗邻公园的景观优势。并设置不同的植被,景观,游戏场地,塑胶跑道,突出幼儿园建筑童心童趣的特点。
The undulating roof platform has an excellent landscape view. On the premise of ensuring safety, it combines roof garden to create an aerial playground, giving full play to the landscape advantage of the land adjacent to the park along the river. And set up different vegetation, landscape, game venues, plastic runway, highlighting the characteristics of kindergarten buildings childlike fun.



自由斑斓的立面设计 Free and colorful facade design
建筑立面采用水平向自由开窗形式,保证最大限度地采光。通过不同的颜色釉面玻璃板的搭配,塑造幼儿园建筑的可爱活泼的形象气质。内院自由活动场地的立面采用水平向栏板,层层错动形成多层级的活动平台。
The facade of the building adopts the form of horizontal free window opening to ensure maximum lighting. Through the matching of glazed glass panels of different colors, the lovely and lively image temperament of kindergarten buildings is shaped. Horizontal balustrade is used in the interior yard, which staggers layer by layer to form a multi-level platform.



在建筑单体色彩上,使用白色作为建筑立面的主要底色,以橙色和绿色的玻璃板作为点缀,而幼儿教学空间和配套建筑的立面色彩,使用分楼层附色的方法,加强各个楼层的可识别度,部分贴面木板,给幼儿亲切的使用感受。
In building monomer color, white is used as the main background color of building facade, orange and green glass plate is used as ornament, while the elevation color of children’s teaching space and supporting buildings is used to separate floors and add color to enhance the recognizability of each floor, and some veneer boards are used to give children a kind feeling of use.


结语 epilogue
幼儿园是幼儿在成长的过程中接触到的第一个公共空间。幼儿园建筑整体氛围对于幼儿的感知与认识都有很大影响,幼儿园的活动空间不应该仅仅局限于物理空间,更应该通过空间的营造与拓展去体现一种教育体质与教育观念,这对于建筑师也是一个挑战。如何通过寻找建筑与环境的关系,建筑庭院空间的营造以及对于幼儿园建筑 “第三空间”的探索,从而去拓展丰富的活动空间是本案在设计上探寻的核心议题。
Kindergarten is the first public space that children come into contact with in the process of growing up. The overall atmosphere of kindergarten architecture has a great impact on children’s perception and understanding. The activity space of kindergarten should not only be limited to physical space, but also reflect an educational constitution and concept through the construction and expansion of space, which is also a challenge for architects. How to explore the relationship between architecture and environment, the construction of courtyard space and the exploration of “the third space” in kindergarten architecture, so as to expand the abundant activity space is the core issue in the design of this case.
∇ 模型照片1 Model Photo1

∇ 模型照片2 Model Photo2

∇ 一层平面图 1F plan

∇ 二层平面图 2F plan

∇ 三层平面图 3F plan

∇ 南立面图,北立面图 South elevation map, north elevation map

∇ 东立面图,西立面图 East elevation map, west elevation map

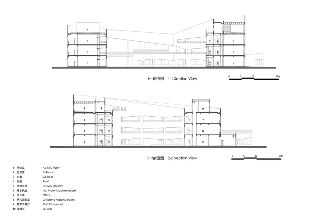
∇ 1-1-剖面图,2-2剖面图 1-1 sectional view,2-2 sectional view

∇ 体块生成动图 Body block generation

完整项目信息
项目名称:南浔镇中心幼儿园新址扩建工程
项目位置:浙江省湖州市南浔区嘉风路
建筑面积:10030㎡
完工日期:2017.09.29
立面材料:白色和彩色高级外墙涂料,铝合金窗,釉面玻璃板
设计单位:浙江大学建筑设计研究院有限公司(www.zuadr.com)
设计总负责:王玉平
工程负责人:莫洲瑾
设计师:苏仁毅,宣万里
结构:张杰,曾凯,吴杰
电气:沈月青,冯百乐
给排水:易家松,陈飞
暖通:潘大红,丁德
弱电:江兵,张武波
摄影:金伟琦,章勇
Project Name: Nanxun Town Center Kindergarten New Site Extension Project
Location of the project: Jiafeng Road, Nanxun District, Huzhou City, Zhejiang Province
Building area: 10030m2
Date of completion: 2017.09.29
Facade materials: white and color high-grade exterior wall paint, aluminium alloy windows, glazed glass panels
Architectural design company: The Architectural Design & Research Institute of Zhejiang University Co., Ltd(www.zuadr.com)
General Responsibility for Design: Wang Yuping
Project Leader: Mo Zhoujin
Designer: Su Renyi, Xuan Wanli
Structure: Zhang Jie, Zeng Kai, Wu Jie
Electric:Shen Yueqing, Feng Baile
Water supply and drainage: Yi Jiasong, Chen Fei
HVAC: Pan Dahong, Ding De
Weak electricity: Jiang Bing, Zhang Wubo
Photography:,Jin Weiqi ,Zhang Yong

