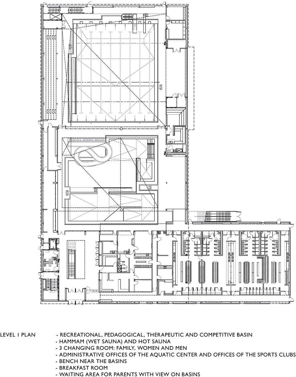
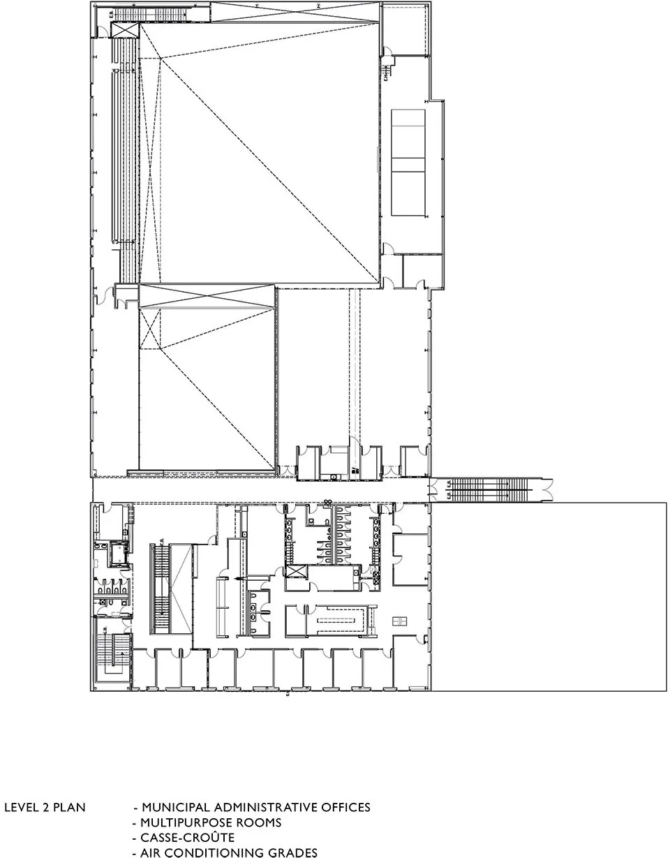
为紧张比赛与轻松水上游戏服务的场所:介绍|PROGRAM 以比赛休闲为目的建造的St. Hyacinthe’s水上运动娱乐中心包含一个8赛道25m长的泳池、一块1米跳水板和一个3m跳水平台,内部配置符合FINA的规定。中心还设有为社区服务的水上游戏池、5m滑水道、水疗池和桑拿室。泳池旁的座位最多可容纳450名观众,同时中心内还配备有4个更衣室和215个储物柜。二层设有一个可以举办社区活动的大型多功能厅。员工管理区、咖啡厅和其他公共区域都可以俯瞰泳池。
预算与工程时间表|BUDGET AND TIMETABLE 工程造价控制在预算之内。为了符合联邦政府严格的拨款期限,工程建造速度非常快。
可持续性|SUSTAINABILITY 为了节约能源,建筑师将紧凑的建筑体量设计的尽可能高效节约。建筑外表采用了造价低且便于快速施工的材料。水平向大量的开口和头顶天窗使室内自然光线充足,不需要增加额外人工光源。窗户使内部空间与公园周边环境联系紧密。
技术挑战|TECHNICAL CHALLENGE St. Hyacinthe是ACDF建造的第一个水上运动中心项目。在不到18个月的工期内,建筑师设计建造的运动中心需要在满足FINA一系列比赛技术要求的同时安装严格保证水质和安全要求的先进机械及电力设施。




一层平面/二层平面


Location: Saint-Hyacinthe, Québec (Canada) Client: Ville de Saint-Hyacinthe Architects: ACDF ARCHITECTURE-URBANISME-INTÉRIEUR – TLA Structure: SDK M/E : Dupras Ledoux Consultant: Inneauve Photographs: James Brittain except image named ACDF Year: 2011 Costing: 18.0M $ Area : 3600 sq. m.
版权声明:本文内容由用户自行发布上传或投稿由设计芝士代为发布,版权归原作者所有,设计芝士不拥有其著作权,亦不承担相应法律责任。如果您发现本站中有涉嫌抄袭或侵权的内容,请点此提交工单进行举报,一经查实,本站将立刻删除涉嫌侵权内容。

