坐落在新斯科舍省南岸的金斯堡海滩的野生景观旁边,在高大的草丛中,漫步的鹿和大海的原始气味。这座堡垒般的建筑的黑色剪影,是透过浓雾能看到的为数不多的东西之一。住宅前倾,倾斜的后壳灵感来自当地gambrelro – roons谷仓,住宅为新斯科舍省不可预测的天气做好了准备。
住宅由两层和一个空间间隔组成,空间围绕着沉重的钢背墙,充分利用了迷人的海滨景色,同时保持了与邻近邻居和行人的高度隐私。深窗和brise soleil以及后斜墙都有助于控制太阳能增益。一个大的地面平台被倾斜的墙壁和板条屏风围起来,包括一个跳水池和壁炉——所有这些都面向海滩的正面景观。
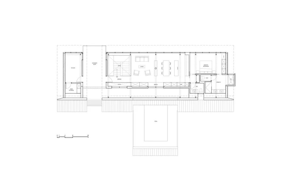
较低的一层包括车库和迎宾翼,两翼都在内部的凉风道两侧,以及覆盖胡桃木和黑色钢材的钢楼梯。二楼的起居空间出奇地丰富和温暖,有淡淡的色彩、黄铜固定装置和暖色调的明暗木色。房间的中心是一个线性壁炉。户外空间用木质遮阳板保护隐私和强烈的夏日阳光。甲板悬臂从房子伸出,向海滩和周边景观突出。
住宅临海一侧有一面墙的窗户,提供了不受打扰的海滩和景观的声音。入口侧是超最小的和神秘的轻微一瞥,从内部,只提供了一个挑逗从道路。
沉重的黑色钢框架重复从一端到另一端的结构,为其动态形式提供电枢。沉重的,黑暗的外壳是覆盖在超黑暗的青铜,铝立缝。



位置:加拿大
设计师:Omar Gandhi, Jeff Shaw, Karl Gruenewald
年份:2018
摄影师:Ema Peter

