Yvonne design是一间集展厅与秀场于一体的私人预约制婚纱店,设计面积为600平方米,坐落于市中心历史悠久的故宫旁。
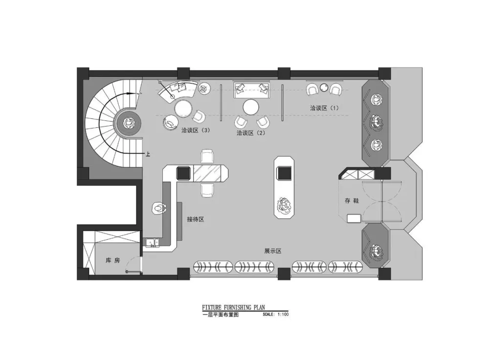
本案一层空间的主要功能为婚纱展示,服务引导及洽谈区域。设计师运用可移动屏风使得功能不同的洽谈空间,因屏风而分隔,以回廊相接为每个空间都设计不止一种的打开方式,这是赋予空间的独特节奏。立体干净的结构是该空间诉说的主题,一切刻意的痕迹被隐藏,人的感受体验被放大。

作为一至三层的垂直交通,沿着如雕塑般盘旋流转的楼梯拾级而上,行至二楼来到礼服展示区域。专属的陈列装置,模块化的立方体框架像乐高积木一样满足礼服区域是展示功能的同时,东方雅韵与西方古典情致在此碰撞融合,让置身其中者清晰地感受到空间的沉静魅力,同时着重强调材料的机能与质感,余留下空间的纯粹和品味。


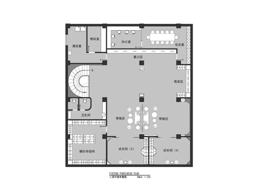
三层空间的主要功能为婚纱展示VIP试衣间及办公区域。设计师化繁为简,仅施于简洁凝练的线条和留白处理,加上设计师对光影的精准把握,使空间丰富灵动,简约而华丽。材质、留白、空间的节奏感,能让人们忘记空间的存在,去感受氛围的幸福状态。一束光打在新人的脸庞某一瞬间的感动勾勒的自然气息,肆意浸染着每一个置身其间的人。






婚纱是一件有生命的商品,“主角”在道具灯光色调的衬托下,把主题剧表演的淋漓尽致,身处其中发现最美自己,在一生一次的幸福时刻,实现爱与美的梦想。相信这是很多人梦寐以求的场景,每一份真诚的爱情都应配得一件独特的嫁衣。


好的空间设计应该是用最少的词汇,去诉说最有力量的话语。这是王与先生当下的设计观与生活观的深度实践。





项目名称丨YVONNE DESIGN设计师婚纱集合店 设计单位丨普斯格睿空间设计 主创设计丨王与 设计团队丨霍东、雷金闯、王宏 项目摄影丨鲁哈哈 项目地址丨辽宁 沈阳 项目面积丨约 600 平方米 竣工日期丨2018.4 主要材料丨水磨石、石材、黄铜、长虹玻璃、黑色氟碳漆
版权声明:本文内容由用户自行发布上传或投稿由设计芝士代为发布,版权归原作者所有,设计芝士不拥有其著作权,亦不承担相应法律责任。如果您发现本站中有涉嫌抄袭或侵权的内容,请点此提交工单进行举报,一经查实,本站将立刻删除涉嫌侵权内容。

