
梧州,小城也。武德四年平肖铣而置梧州。梧州始成梧州。
中国处于传统农业社会的时期,于交通一层,素有“北人骑马,南人使船”的说法。而无论南北,在火车、飞机未肇兴之前,行船必为首选。因此,迄至明清,水运发达之处,通常是辐辏繁华之地。梧州虽僻处西南一隅,却为一水运枢纽,加之物阜,固然民丰。
城市处山水之间,自然天赋,秀色可餐。如青莲所谓“水荡漾兮碧色,兰葳蕤兮红芳。试登高而望远,极云海之微茫……”又如“春草罢绿,秋萤乱飞。听江风之袅袅,闻岭狖之啾啾……”之谓。美则美矣,其名未必远扬。盖以中国幅员,胜景为城者不知千百。
然则以地理言,处胜景处常为要隘。于一相当的历史时期,必然会声名在外。梧州即是如此——扼西江为西南通粤之门户。民国初期,从中山经略两广,到李、白、黄正式将八桂归于国民政府,再到李氏赴穗,怂恿北伐。于中国近现代史的波澜之中,梧州虽小,却见过大世面,坐看过风起云涌,不遑多让,为中国近现代史不可回避遗忘之一域。
▼
接待区



美的梧州项目的设计,业主方希望通过人文的魅力传达项目对地域文化的认知和在此基础上对该地区城市未来状态的展望,并期望得到当地社会群体的认可。因此,该项目的设计便带有叙事的特性。
▼
展示区





▼
中庭区




▼
二层中庭






作为项目设计方,自然会首先敏感于项目所处地域的自然和人文气质,并以此为设计的切入点。即所处者为“门户”,便不妨开门见山;建筑的体量和白色,让设计师生出“清净”的“望云爬坡”意念。将此作为具有独特人文性质的具象表述和精神层面的抽象暗喻,形成项目设计中两条线索贯穿始终——将城市的过去、今生与未来以带有解剖意义的手法作有机的呈现。




在空间的处理上,设计师着眼于明确空间秩序的建立和动线的清晰,去黼黻而存朴素,利用材质在自然光照射下的不同状态、颜色的对比,以及通过材质对自然光进行雕刻,既丰富空间的层次,又在心理层面上弱化了建筑体量产生的影响,将人的视线由内及外时,产生置身山水,开门见山,无论身处何处,皆与自然有交集的状态。
如果从历史的角度,会注意到中国的一些地域、城市通常会有一个有意思的现象——纷乱之时,天下瞩目;承平之时,隐如潜龙。梧州大抵如此。
▼
二层洽谈区



作为项目设计方,自然会首先敏感于项目所处地域的自然和人文气质,并以此为设计的切入点。即所处者为“门户”,便不妨开门见山;建筑的体量和白色,让设计师生出“清净”的“望云爬坡”意念。将此作为具有独特人文性质的具象表述和精神层面的抽象暗喻,形成项目设计中两条线索贯穿始终——将城市的过去、今生与未来以带有解剖意义的手法作有机的呈现。




作为美的在梧州的项目,设计师在设计叙事过程中,领悟到两个问题——不能将设计本身作为设计的亮点,以致弱化要呈现的叙事主体;不能过于“现代”,以致在叙事中,在观者心理层面本应是循序渐进的递进状态,却成凿枘不投的结果。因此,设计师在材质上只利用简洁的方式,以石材的原有肌理稍作变化,将原木色融于自然光和人工光源混元之中,将观者的注意力引向表达叙事之物,而将设计本身尽量弱化。
“太多的眼泪,是没有教养的表现。”这是英国旧式贵族斯巴达似的看法。话不好听,仔细一想的确有理。设计叙事性的空间,只应娓娓道来便好,不必慷慨激昂的。
▼
建筑外观





▼
施工现场记录


↑ 施工记录

↑ 总平面图

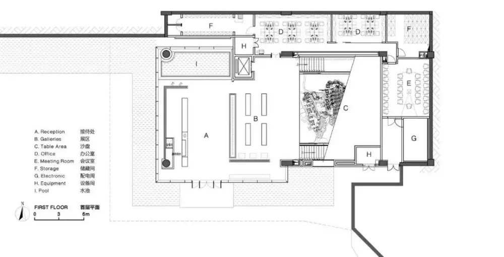
↑ 首层平面

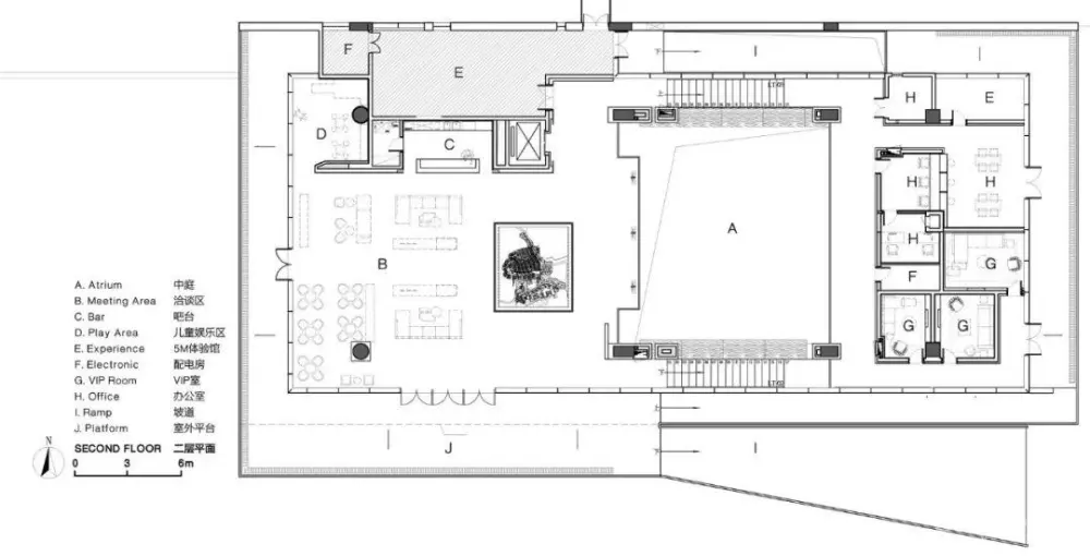
↑ 二层平面

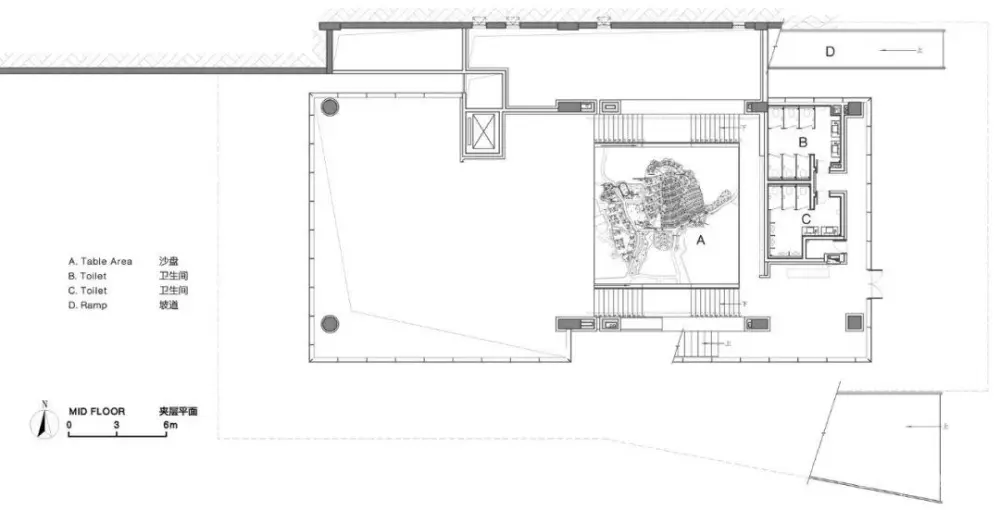
↑ 夹层平面

↑ 剖面图
项目名称:梧州美的城市展厅
设计总监:彭征
主案设计:杨东龙,陈泳夏
设计团队:林俊武,朱国光,朱云锋,许秋怡,李永华,蔡文姫,李露
室内设计:广州共生形态工程设计有限公司
软装设计:广州共生形态工程设计有限公司
项目业主:美的置业
美的置业产品管理团队:佘佐均,胡文强,罗跃平,方顺,徐海华,何斌毅,任纪彬,刘寅,林凯佳
建筑设计:XAA建筑事务所詹涛工作室
景观设计:WEDO域道景观
项目地点:广西 梧州
设计时间:2018年05月
竣工时间:2018年10月
占地面积:3946.6M²
设计面积:1000M²
主要材料:啡色木饰面、灰色大理石、铝单板、不锈钢、透光膜
摄影师:李开建,陈逸飞
原文始发于微信公众号( 室内设计师 ):地域与人文的叙事 | 梧州美的城市展厅

