格里姆斯塔德(Grimstad)新图书馆坐落于中心滨河带,处于新城中心与老城之间。图书馆的设计意图是不仅为阅读、借书提供场所,并且为举办多种文化活动创造社交据点。图书馆对所有人都开放。

场地上原有的建筑及有限的预算为项目带来限制,但设计师将限制转化为了积极因素。原有结构被部分保留,并作为轻木新结构的基础支撑。图书馆紧凑的小体量合理采用木结构,间距3m的木架被放置在原有的混凝土建筑之上。

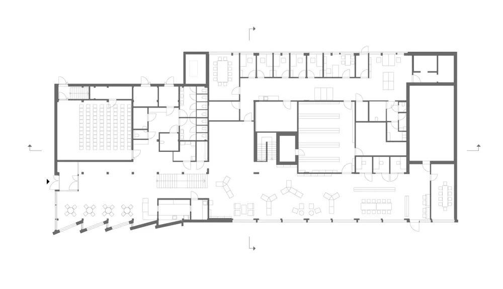
图书馆共有三层,二层为图书馆主要功能,三层为一个僻静的儿童天地,行政办公区在一层。建筑还包含了一个咖啡厅、一个报告厅和多处展览空间。这些功能空间均离卫生设施很近,开展夜间活动时方便单独封锁。
通过竖向开口的北立面、预置的东立面和格栅嵌板的西立面,设计者创造了立面的多变和活力。这些立面向城市描绘着室内的活动,为建筑沟通新旧城区提供可能。


















建筑师 : Helen & Hard 地址 : 格里姆斯塔德,挪威 主创建筑师 : Reinhard Kropf, Njål Undheim, Jana Kocjan 建筑面积 : 2200.0 平方米 项目年份 : 2017 摄影师 : Helge Eek, Sindre Ellingsen
版权声明:本文内容由用户自行发布上传或投稿由设计芝士代为发布,版权归原作者所有,设计芝士不拥有其著作权,亦不承担相应法律责任。如果您发现本站中有涉嫌抄袭或侵权的内容,请点此提交工单进行举报,一经查实,本站将立刻删除涉嫌侵权内容。

