有的设计师根本不会设计饭店
怎么快速设计饭店餐厅?
需要学习大量的餐厅平面布置图案例
看得多了才能成熟运用
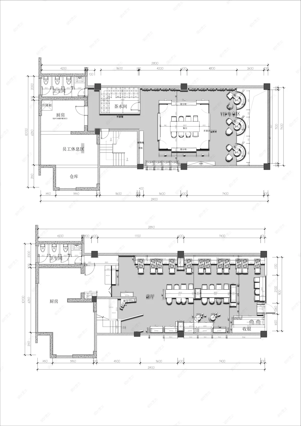
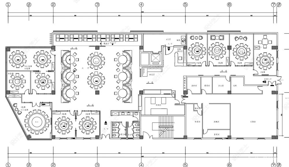
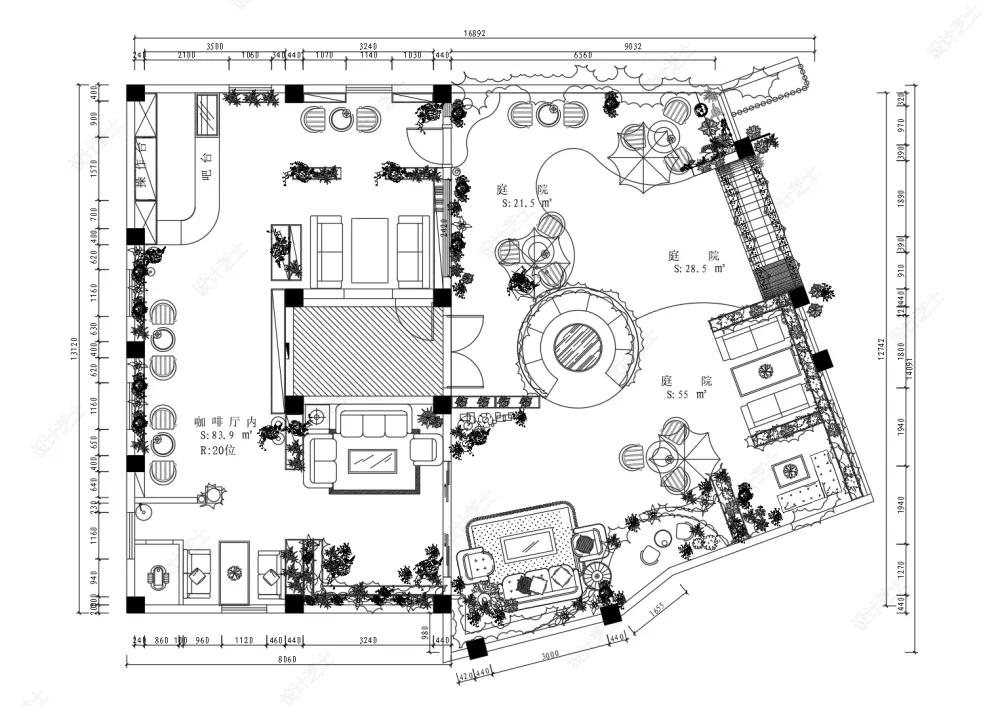
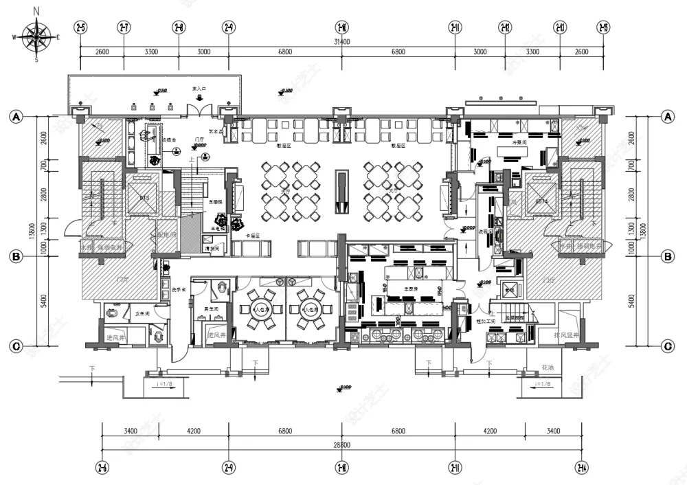
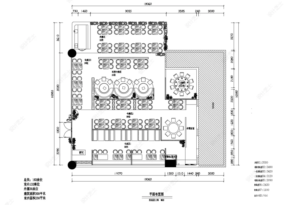
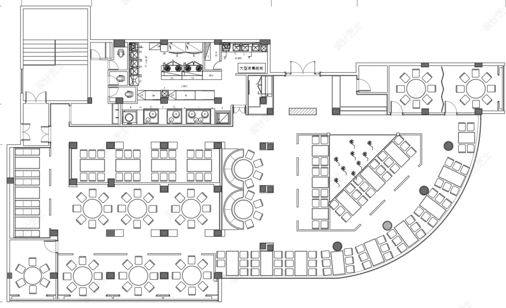
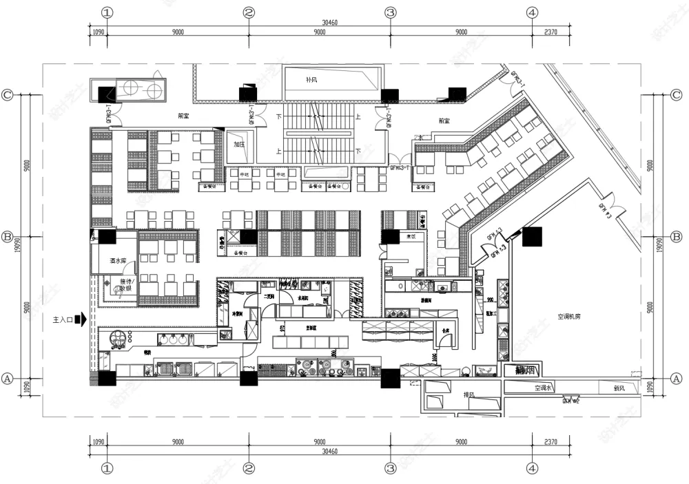
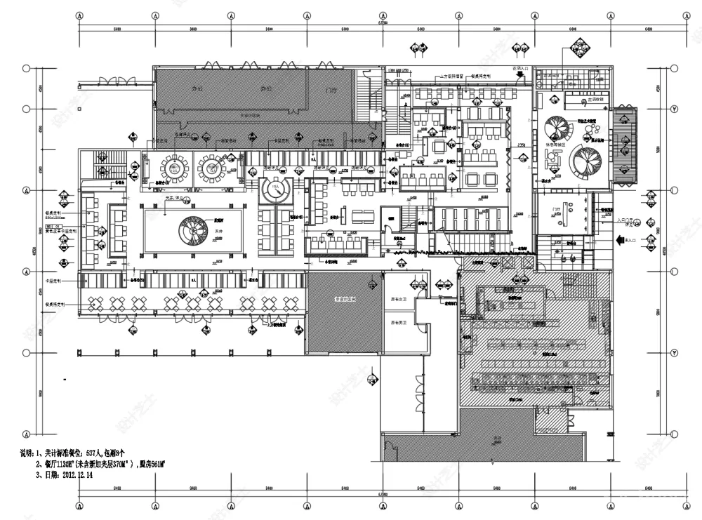
这套资料内含70套餐饮空间的CAD平面布置图
有中式港式
火锅中餐
包间卡座
快餐厅等等
各类餐饮空间
相信对你设计餐厅一定很有帮助
这套
《饭店餐厅CAD平面布置图合集中西餐厅港式茶餐快餐厅火锅店平面布置图布局图CAD源文件》
DWG格式丨40套丨70M
希望对你有所帮助


有的设计师根本不会设计饭店
怎么快速设计饭店餐厅?
需要学习大量的餐厅平面布置图案例
看得多了才能成熟运用
这套资料内含70套餐饮空间的CAD平面布置图
有中式港式
火锅中餐
包间卡座
快餐厅等等
各类餐饮空间
相信对你设计餐厅一定很有帮助
这套
《饭店餐厅CAD平面布置图合集中西餐厅港式茶餐快餐厅火锅店平面布置图布局图CAD源文件》
DWG格式丨40套丨70M
希望对你有所帮助


受用,謝謝
很好